Drohne
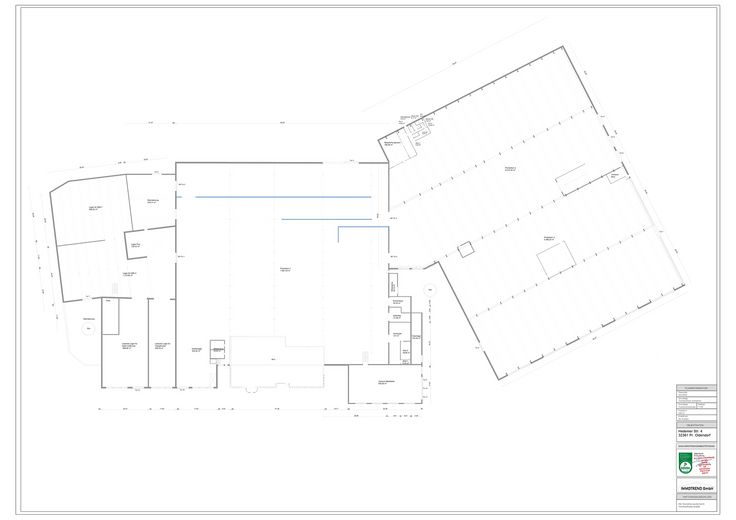
GrundrissLiegenschaft
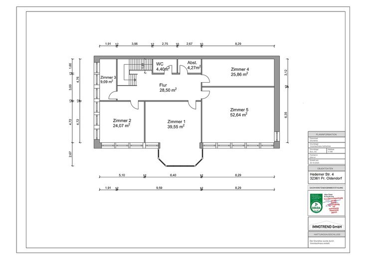
Grundriss_BüroOG
Lager für DBS 2
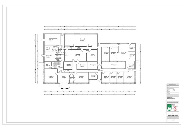
Grundriss_BüroEG
Lager für DBS 1
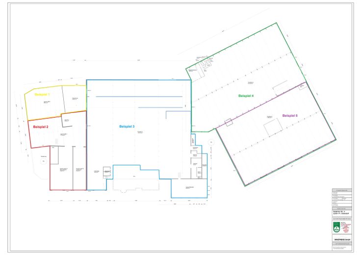
Grundriss_Mietbeispiele

Flexible Produktions- und Lagerhalle in Pr. Oldendorf zur Vermietung (bis ca. 12.500m² möglich)

Die vollständige Adresse erhalten Sie vom Anbieter
32361 Pr. Oldendorf
Nordrhein-Westfalen
6500 €
Kaltmiete
TraumImmo-ID: 7Q4WTKV
Partner-ID: 400772
Partner-Objekt von: ohne-makler.net
Anbieter:
Angebot vom Eigentümer

Anbieter kontaktieren

Information

  • Typ: Lagerhalle
  • Etage: 0
  • Bezugsfrei ab: sofort

  • Grundstücksfläche: 48311.0
  • Zustand: PropertyConditionNegotiable
  • Stockwerke: 1

Miete & Nebenkosten

Miete6500 €
Provisionkeine Provision für Käufer

Über dieses Traum-Industrieobjekt

Objektbeschreibung

Die Immobilie wird derzeit teilweise vom Eigentümer selbst genutzt.
Die verfügbaren Verwaltungs- und Hallenflächen können in Absprache flexibel ab einer Größe von ca. 2.000 m² bis maximal etwa 12.500 m² angemietet werden (Beispiele siehe Fotos /Zeichnung). Die hier angegebene Mietfläche entspricht dem Beispiel 2.

Die Flächen eignen sich hervorragend für Lager-, Logistik- oder Produktionszwecke und lassen sich individuell an die Anforderungen des Mieters anpassen.
Zusätzlich besteht die Möglichkeit, Stellplätze für Pkw oder Lkw auf dem großzügigen Grundstück mit anzumieten.

Der Mietzins richtet sich nach der angemieteten Fläche, der Laufzeit und den individuellen Anforderungen. Insgesamt bieten wir ein sehr gutes Preis-Leistungs-Verhältnis und äußerst attraktive Konditionen.
Gegebenenfalls kann auch eine Bewirtschaftung durch den Eigentümer erfolgen – beispielsweise das Be- und Entladen von Lkw, die Einlagerung von Waren oder die Nutzung als Außenlager.

Das angebotene Gewerbeobjekt befindet sich in Preußisch Oldendorf und umfasst ein großzügiges Grundstück von ca. 48.311 m².
Die Liegenschaft besteht aus mehreren Hallenabschnitten mit einer Gesamtfläche von rund 24.000 m² sowie einem separaten Verwaltungsgebäude mit etwa 900 m² Büro- und Sozialflächen.

Die Erschließung erfolgt über eine 30 Meter breite Einfahrt an der „Hedemer Straße“. Von hier aus sind die Hallenbereiche sowohl nördlich als auch südlich befahrbar.
Der Verladehof im Bereich der Produktionshallen 2 und 3 bietet vier Rolltore, eine integrierte Lkw-Rampe sowie rund 58 Pkw-Stellplätze.
Weitere ca. 40 Stellplätze befinden sich auf einem separaten Parkplatz im nördlichen Grundstücksbereich.
Eine Umfahrung des gesamten Gebäudekomplexes ermöglicht die beidseitige Andienung und sorgt für eine optimale Logistikstruktur.

Das Verwaltungsgebäude im westlichen Teil der Liegenschaft verfügt über 24 Büros und Besprechungsräume auf zwei Etagen (Erd- und Obergeschoss).
Vor dem Gebäude stehen zusätzliche 12 Pkw-Stellplätze zur Verfügung.


Ausstattung

Gesamtgrundstück: ca. 48.311 m²
Hallenfläche: ca. 24.000 m², aufgeteilt in mehrere Segmente
Büro-/Sozialflächen: ca. 900 m² (zwei Geschosse, ca. 24 Büros und Besprechungsräume)
Bodenbelastbarkeit: ca. 6 t/m² (Betonboden)
Heizung: moderne Holzhackschnitzelanlage (in Planung)
Sprinkleranlage in allen Hallenbereichen
Andienung: 4 Rolltore, 3 Lkw-Rampen (mit Überladebrücken)
Außenflächen: befahrbarer Verladehof, Umfahrung des gesamten Gebäudes
Stellplätze: ca. 110 Pkw-Stellplätze (aufgeteilt auf mehrere Bereiche)
Nutzung: teilweise Eigennutzung, freie Flächen zur Vermietung verfügbar
Zufahrt: 30 Meter breite Einfahrt von der „Hedemer Straße“

Die Beheizung der Liegenschaft erfolgte bisher über eine Späneheizung. Diese ist derzeit außer Betrieb; die Planung einer neuen, energieeffizienten Heizlösung wird aktuell durch Fachunternehmen vorbereitet.
Ein Energieausweis ist in Bearbeitung und liegt spätestens zur Besichtigung vor.


Sonstiges

Paramos Immobilien GmbH
Ellerkampstr. 75
32609 Hüllhorst
Registergericht: Bad Oeynhausen
Registernummer: HRB 20183
Geschäftsführer: Kai Helweg
Wir sind zur Teilnahme an einem Streitbeilegungsverfahren vor einer Verbraucherschlichtungsstelle weder verpflichtet noch bereit.


Lage

Lagebeschreibung

Die Immobilie liegt in Preußisch Oldendorf im Kreis Minden-Lübbecke, im Herzen der Wirtschaftsregion Ostwestfalen-Lippe.
Die Stadt gehört zum Verdichtungsraum zwischen Gütersloh, Bielefeld, Herford und Minden und befindet sich nördlich des Wiehengebirges.

Die Verkehrsanbindung ist sehr gut:
Über die B65 und die Landesstraße 557 erreicht man in ca. 17 km die Autobahn A30 (Anschlussstelle Bünde).
Die B239, eine der wichtigsten Nord-Süd-Verbindungen der Region, liegt nur etwa 8 km entfernt.

Die A30 verbindet die Autobahnen A1 und A2, kreuzt bei Osnabrück die A33 und ist Teil der europäischen Verkehrsachse Warszawa–Berlin–Amsterdam (Europastraße 30).
Dadurch bestehen hervorragende Verbindungen in Richtung Osnabrück, Hannover, Münster und in die Niederlande.

ohne-makler.net
Anbieter:
Angebot vom Eigentümer

Anbieter kontaktieren