| Kaufpreis | 939.000 € |
|---|---|
| Provision | keine Provision für Käufer |
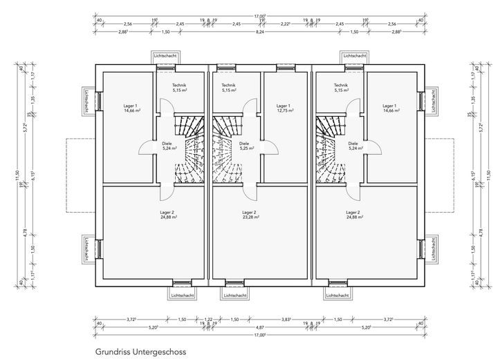
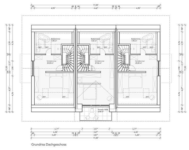
In zentraler Lage von Wolfratshausen entsteht in diesem Jahr ein hochwertiger Dreispänner in massiver Ziegelbauweise. Die drei Häuser bieten jeweils ca. 135–142 qm Wohnfläche auf realgeteilten Grundstücken und überzeugen durch eine durchdachte Raumaufteilung mit bis zu 7 Zimmern auf vier Ebenen.
Die Häuser werden schlüsselfertig mit gehobener Ausstattung übergeben. Eine moderne Wärmepumpe, Fußbodenheizung in allen Geschossen (inklusive Keller) sowie 3-fach verglaste Fenster sorgen für zukunftssicheren Wohnkomfort.
Großzügige Deckenhöhen von über 2,50 m, hochwertige Sanitärausstattung und die Möglichkeit individueller Bemusterung bieten Ihnen die Freiheit, Ihr neues Zuhause aktiv mitzugestalten.
Der Erstbezug ist für den 01.10.2027 geplant.
Als regional verwurzeltes Familienunternehmen realisieren wir unsere Bauvorhaben gemeinsam mit eigenen Mitarbeitern und ortsansässigen Meisterbetrieben – persönlich, transparent und zuverlässig.
Detaillierte Grundrisse und Preisübersicht erhalten Sie im Exposé als Download.
Wir bieten eine Vielzahl von kostenneutralen Ausstattungsbemusterungen und Grundrissänderungen vor Baubeginn an, wodurch das Haus erst zum eigenen Zuhause wird.
- massive Ziegelbauweise
- Echtholzparkett
- Hochwertige Sanitärausstattung
- 2,50m Deckenhöhe
- Fußbodenheizung im gesamten Haus (auch Keller)
- hochwertige und leise Luft Wärmepumpe
- individuelle Bemusterungen
Einen Auszug unserer Referenzen stellen wir auf unserer Website gerne zur Verfügung. Der Verkauf erfolgt provisionsfrei direkt vom Eigentümer!
beck-wohnbau.de
Wolfratshausen, gelegen im bayerischen Voralpenland, besticht durch seine attraktive Lage an der Loisach. Die Stadt bietet eine hervorragende Infrastruktur mit zahlreichen Einkaufsmöglichkeiten, Ärzten und Schulen. Die Anbindung an öffentliche Verkehrsmittel ist gut, mit regelmäßigen Zug- und Busverbindungen nach München und in die umliegenden Gemeinden. Zahlreiche Freizeitmöglichkeiten wie Wanderwege, Radwege entlang der Loisach laden zur Erholung ein. Die Nähe zur Natur und die charmante Altstadt machen Wolfratshausen zu einem lebenswerten Ort.