| Miete | 1153 € |
|---|---|
| Nebenkosten | 225 € inkl. Heizkosten |
| Heizkosten | 70 € |
| Kaution | 3459€ |
In der ruhigen, aber gut angebundenen Ortschaft Berge bei Nauen entsteht auf einem ehemaligen Dreiseithof ein Neubau mit zwölf 3-Zimmer-Wohnungen, die durch ihre moderne, barrierefreie Bauweise und ihre energieeffiziente Ausstattung überzeugen. Besonders Senioren und Menschen mit eingeschränkter Mobilität finden hier ein komfortables Zuhause, das keine Wünsche offenlässt. Alle Wohnungen haben eine Terrasse oder einen Balkon in Südausrichtung. Das hier noch im Bau befindliche dritte Gebäude (Haus C) stellt das letzte Haus im Dreiseitenhof dar.
Hervorragend geeignet für Senioren oder Menschen mit eingeschränkter Mobilität durch barrierefreies Wohnen mit moderner Ausstattung und hoher Lebensqualität
Moderne Einbauküche: Jede Wohnung wird mit einer wertigen Einbauküche eines regionalen Anbieters ausgestattet
Fußbodenheizung: In allen Räumen sorgt eine Fußbodenheizung für angenehme Wärme und Komfort
Bodengleiche Dusche: Das Badezimmer ist mit einer bodengleichen Dusche ausgestattet – pflegeleicht & komfortabel
Aufzug: Der Aufzug ermöglicht barrierefreien Zugang zu allen Etagen
Parkplatz: Jede Wohnung verfügt über einen eigenen Fahrrad- und PKW-Parkplatz direkt am Gebäude
Energieeffizienter Neubau mit niedrigen Betriebskosten
Fertigstellung und Bezugsfertigkeit:
Die Wohnung befindet sich derzeit noch im Bau und wird voraussichtlich im März 2026 fertiggestellt und ab Mitte/Ende März bezugsfertig sein.
Aktuelle Verfügbarkeiten:
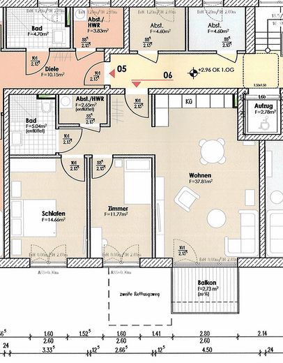
WE 06: erstes Obergeschoss (rechtsseitig), 79,5m² Wohnfläche, Balkon, Einbauküche. 1153€ Nettokaltmiete zzgl. 225€ Nebenkosten, 40 EUR Autostellplatz, 60 EUR für die neue Einbauküche (insgesamt 1478EUR pro Monat).
Ruhige Lage in Berge bei Nauen, dennoch gut an die Umgebung angebunden
Die Wohnungen befinden sich derzeit noch im Bau und eine Bezugsfertigkeit ist für März 2026 geplant.