Hausansicht
offener Grundriss
Fliesen Badezimmer
3D 3
3D 4
Hausansicht Südseite
Loggia
3D 1
3D 2
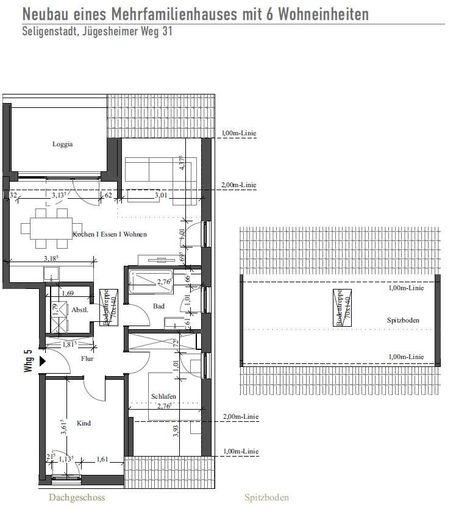
Grundriss DG rechts

Erstbezug: stilvolle DG Wohnung mit großzügiger Loggia

Jügesheimer Weg 31
63500 Seligenstadt – Froschhausen
Hessen
1200 €
Kaltmiete
72 m²
Wohnfläche
3
Zimmer
TraumImmo-ID: 9JT4J9M
Partner-ID: 420763
Partner-Objekt von: ohne-makler.net
Anbieter:
Angebot von Kronenberger Liegenschaften

Anbieter kontaktieren

Information

  • Typ: Etagenwohnung
  • Etage: 2
  • Wohnfläche ca.: 72 m²
  • Bezugsfrei ab: Nach Vereinbarung
  • Zimmer: 3
KellerBarrierefreiGäste-WCBalkon

  • Baujahr: 2026
  • Zustand: FirstTimeUse
  • Heizart: FloorHeating
  • Brennart: Electricity
  • Stockwerke: 2
  • Badezimmer: 1.0
  • Heizkosten in Nebenkosten enthalten: True

Miete & Nebenkosten

Miete1200 €
Nebenkosten240 € inkl. Heizkosten
Kaution3600€

Über dieses Traum-Apartment

Objektbeschreibung

Entdecken Sie diese stilvolle 3-Zimmer-Wohnung im Dachgeschoss eines exklusiven Mehrfamilienhauses mit nur sechs Wohneinheiten. Hier vereinen sich hochwertige Architektur und pure Ruhe zu einem harmonischen Lebensgefühl. Das gesamte Haus gehört einer einzigen Eigentümerfamilie – ein Garant für sorgfältige Pflege und ein freundschaftliches Miteinander.

Das Herz der Wohnung:
Ein atemberaubend gemütlicher Wohn- und Essbereich mit integrierter Open-Küche – für gemütliche Abende, kreatives Kochen und pure Entspannung. Die breite Fensterfront der Loggia sowie ein zusätzliches Dachfenster und ein Wandfenster schaffen ein helles, offenes Ambiente. Der sonnige Westbalkon lädt bis in den Abend ein, um den Tag ausklingen zu lassen.


Ausstattung

Die Ausstattung ist modern und durchdacht:

- Hochwertiger Vinylboden in trendiger Eicheoptik
- Wärmepumpe mit Kühlfunktion – nachhaltig und komfortabel
- Stilvolles Bad mit modernen Armaturen
- Separates Gäste-WC
- Walk-in Dusche
- Badewanne
- Praktischer Abstellraum mit Platz für Waschmaschine und Trockner
- Aufzug im Haus für bequemen Zugang
- bei Bedarf kann auch ein 2. Parkplatz angemietet werden
- Satelittenempfang
- Glasfaseranschluss
- großer Mieterkeller von knapp 4m²
- abschließbare Fahrradgaragen auf dem Grundstück, auch für E-Bikes
- Hausmeisterdienst inklusive - Sie müssen sich um nichts kümmern


Sonstiges

Wir freuen uns über Ihr Interesse an der Wohnung. Damit wir uns ein besseres Bild machen können, bitten wir Sie, in Ihrer Anfrage ein paar Worte über sich zu schreiben (z. B. Beruf, Lebenssituation, Anzahl der einziehenden Personen, etc.). So können wir schneller einschätzen, ob die Wohnung gut zu Ihnen passt.

Vielen Dank für Ihre Mühe!


Lage

Lagebeschreibung

Das Objekt befindet sich in einer ruhigen Sackgasse in Seligenstadt Froschhausen. Die Anbindung zur Autobahn ist ideal.

Die Buslinien 58 und OF-85 sind fußläufig zu erreichen.

In Laufnähe gibt es einige Restaurants, ein Café und einen Arzt. Eine Grün- und Parkanlage, eine Postannahmestelle, eine Apotheke und einen Friseur finden Sie ebenfalls vor Ort.

ohne-makler.net
Anbieter:
Angebot von Kronenberger Liegenschaften

Anbieter kontaktieren