Dachterrasse Süd/West Seite
Hausansicht
Schlafzimmer mit gr. Schrank
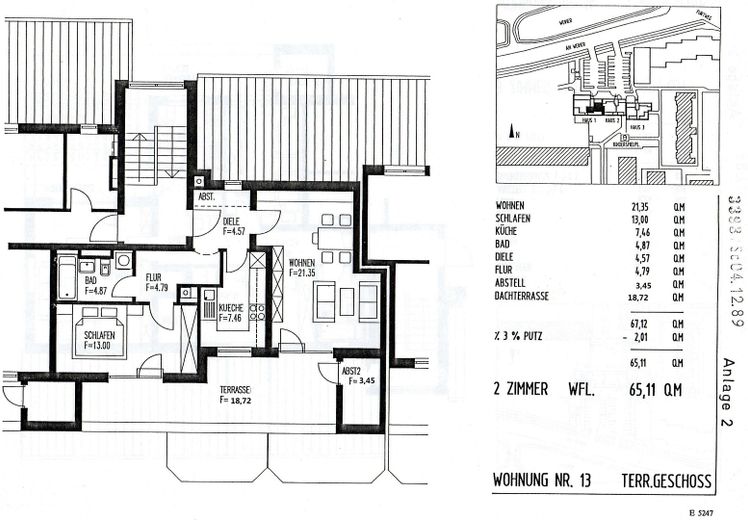
Grundrissplan
Küche
Küche
Wohnbereich zur Terrasse
Lellerabteil
Dachterrasse Süd/Ost Seite
Küche
Essbereich

Exklusive Dachterrassen Wohnung, Alno Küche, Bad, TG-Einzelstellplatz, Kellerabteil

Am Weiher
85716 Unterschleißheim – Unterschleißheim
Bayern
399.500 €
Kaufpreis
65 m²
Wohnfläche
2
Zimmer
TraumImmo-ID: 9RFG9Z6
Partner-ID: 415488
Partner-Objekt von: ohne-makler.net
Anbieter:
Privat von Maximilian

Anbieter kontaktieren

Information

  • Typ: Terrassenwohnung
  • Etage: 3
  • Wohnfläche ca.: 65 m²
  • Bezugsfrei ab: sofort
  • Zimmer: 2
KellerKüche

  • Baujahr: 1990
  • Zustand: WellKept
  • Heizart: CentralHeating
  • Brennart: Gas
  • Stockwerke: 3
  • Nutzfläche: 78.0
  • Badezimmer: 1.0

Kaufpreis & Kosten

Kaufpreis399.500 €
Provisionkeine Provision für Käufer

Über dieses Traum-Apartment

Objektbeschreibung

Gesamtfläche 78,2 m² Dachterrasse u. Abstellraum zur Hälfte gerechnet,
entspricht 65,11m² Wohnfläche.

Kaufpreis VB 399.500,- Hausgeld Whg. 362€
TG-Stellplatz 25.500,- Hausgeld TG. 26€
Neu sanierte Tiefgarage
Energieverbrauchskennung 135.4 kWh

Die 2-Zimmer Wohnung befindet sich in der 3.von 3 Etagen eines gepflegten Mehrfamilienhaus mit 34 Wohnungen, Baujahr 1990.
Nähe Naherholungsgebiet/Badesee.

Wohnbereich und Schlafzimmer mit direktem Zugang zur Dachterrasse

Küche: die hochwertige ALNO Einbauküche in U-Form ist ausgestattet mit Elektroherd / Ceranfeld, Abzugshaube, Geschirrspüler, Kühl/Gefrierkombination,
großes Fenster zur Terrasse.

Schlafzimmer ca. 13m² mit großem Kleiderschrank (B/H/T ca. 240/230/60 cm)

Bad: Badewanne, Waschbecken, WC, Waschmaschinenanschluss.

Wohnzimmer ca. 22m²

eigenes Kellerabteil ca. 6m²

Die sehr sonnige Dachterrasse ca. 22m² ist nach Süd/West ausgerichtet und hat einen extra Abstellraum.

Sämtliche Fenster haben Jalousien.

Gemeinschaft Fahrradkeller, Münz-Waschmaschinen und Trocken


Lage

ohne-makler.net
Anbieter:
Privat von Maximilian

Anbieter kontaktieren