| Kaufpreis | 568.000 € |
|---|---|
| Provision | keine Provision für Käufer |
Gerne präsentieren wir Ihnen ein gepflegtes und modernisiertes Reihenmittelhaus in Bad Friedrichshall-Jagstfeld in einem ruhigen Wohnviertel. Auf rund 161 m² Wohnglück erwartet Sie ein durchdachtes Wohnkonzept mit sechs Zimmern auf mehreren Ebenen – ideal für Familien mit Platzbedarf. Im Dachgeschoss ist ein eigenes Reich mit Badezimmer & WC für Eltern möglich, oder auch als separate Wohneinheit denkbar.
Das Grundstück umfasst ca. 216 m² und bietet eine Terrasse mit Gartenanteil sowie eine Einzelgarage, mit Zugang direkt über das eigene Grundstück.
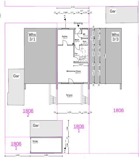
Im Erdgeschoss befindet sich der helle Wohnbereich mit offener Küche. Große Fenster sorgen für eine angenehme Wohnatmosphäre. Von hier gelangen Sie direkt auf die Terrasse – ideal für entspannte Stunden im Freien. Ein Gäste-WC ergänzt diese Ebene.
Im Obergeschoss stehen drei Schlafzimmer zur Verfügung, eins davon mit Zugang zum Balkon. Das Tageslichtbad ist mit Badewanne und Dusche ausgestattet und bietet ausreichend Platz.
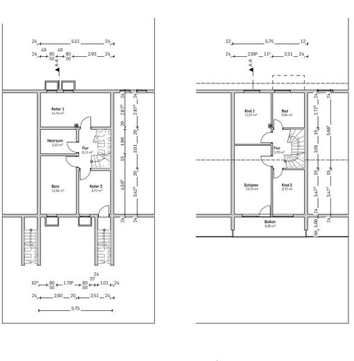
Das Kellergeschoss verfügt über drei Nutzräume sowie einen großzügigen Hobbyraum mit Tageslicht – nutzbar als Fitnessbereich, Büro oder Spielzimmer. Ein Nutzraum mit Zugang zur Terrasse kann als Sommerküche genutzt werden.
Das Dachgeschoss bietet auf 43 qm² ein eigenes Reich mit Badezimmer und Gäste-WC.
Die Lage in Bad Friedrichshall überzeugt durch eine ruhige Wohnstraße, gute Anbindung, kurze Wege zu Einkaufsmöglichkeiten, Schulen und Kindergärten – ideal für den Familienalltag.
Treten Sie ein in Ihr neues, komfortables und geräumiges Heim! Das Haus öffnet sich mit einem einladenden Flur, der Sie direkt zum Gäste-WC und einer Garderobenecke führt. Die großzügige Küche bietet genug Platz, um Ihre kulinarischen Fähigkeiten zu entfalten. Der Wohn- und Essbereich mit direktem Zugang zur Terrasse lädt zu geselligen Abenden mit der Familie oder Freunden ein.
Im Obergeschoss erwarten Sie drei geräumige Schlafzimmer, von denen eini Zimmer über einen eigenen Zugang zum Balkon verfügt und somit einen schönen Rückzugsort bieten. Das Badezimmer mit Tageslicht ist sowohl funktional als auch gemütlich gestaltet und bietet Platz für Entspannung nach einem langen Tag.
Das Dachgeschoss bietet einen weiteren Wohnraum mit eigenem Badezimmer und WC.
Das Kellergeschoss bietet zusätzlichen Stauraum und viele Nutzungsmöglichkeiten. Hier finden Sie ausreichend Platz für Hobbys oder als Abstellfläche. Ein separater Hobbyraum, Technikraum und ein Heizraum runden das Angebot ab.
+++ Energieausweis liegt zur Besichtigung vor +++ +++ Bitte geben Sie bei Anfragen Ihre Adresse und Telefonnummer an, um eine schnelle Kontaktaufnahme zu ermöglichen. +++
Die Wohnfläche wurde gemäß der Verordnung DIN 277 ermittelt.
Makleranfragen unerwünscht! Nach § 7 UWG sind unaufgeforderte Kontaktaufnahmen durch Makler ohne ausdrückliche Einwilligung des Empfängers verboten!
Angaben gemäß § 5 DDG
KVLB Invest GmbH
Allee 40
74072 Heilbronn
Tel.: 07131/6188375
Registereintrag:
Eintragung im Handelsregister.
Registergericht: Amtsgericht Stuttgart
Registernummer: B 783884
Bad Friedrichshall-Jagstfeld ist eine gewachsene und gut angebundene Stadt im Landkreis Heilbronn. Der Standort bietet eine vollständige Infrastruktur mit Schulen, Kindergärten, Ärzten und Einkaufsmöglichkeiten sowie vielfältigen Sport- und Freizeitangeboten. Die Nähe zum Naherholungsgebiet Kocher- und Neckartal, kurze Wege zu den Stadtteilen Kochendorf sowie eine gute Anbindung an den öffentlichen Nahverkehr prägen die Wohnqualität. Auch die Bundesstraßen und die Autobahnanschlüsse in Richtung Heilbronn und Neckarsulm sind schnell erreichbar – attraktiv für Familien und Berufstätige.