| Kaufpreis | 249.000 € |
|---|---|
| Provision | keine Provision für Käufer |
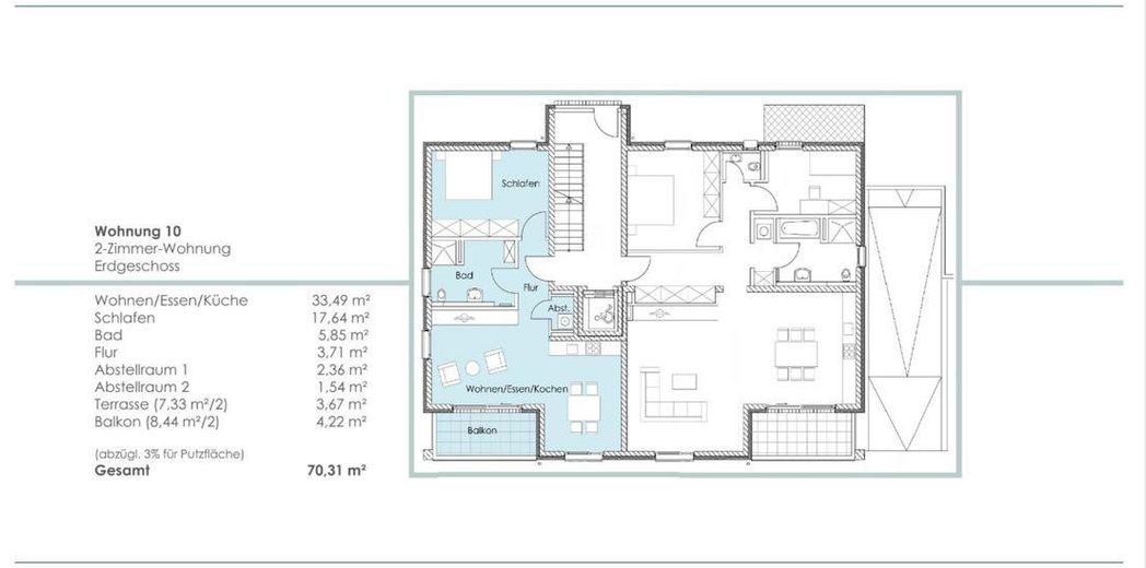
Neuwertige zentrale 2,5-Zimmer-Erdgeschosswohnung mit qualitätsvoller Ausstattung.
HIGHLIGHTS:
Neubau 2016
4,2% Rendite
Provisionsfrei
Erdgeschosswohnung
Barrierefrei
Balkon
Fahrstuhl
Hauseigene Tiefgarage
TG-Stellplatz
Vermietet seit 12.2020
Haus&Grund Mietvertrag
aktuell 960 € Kaltmiete
Staffelmietvertrag
- ab 12.2028 Kaltmiete 1.008 €
- ab 12.2030 Kaltmiete 1.059 €
Hausverwaltung
Hausmeister Service
Winterdienst
Echtholz-Fußböden
Fußbodenheizung
Schönes großes Tageslicht-Bad mit ebenerdiger Dusche
Videosprechanlage
1-Schlüssel-Schließsystem
Bodentiefe Fenster
3-fach-Verglasung
Elektrische Jalousien
Schiebetüre Balkon
Vereinbaren Sie einen Besichtigungstermin. Ich freue mich auf Ihre Kontaktaufnahme!
Kontakt:
Valentin Kosterin
0176 46058085
Die Wohnung befindet sich in zentraler Innenstadtlage.
Das Stadtzentrum mit Deutschlands größtem Marktplatz und einer Vielzahl an kulturellen Angeboten ist nur etwa 300 m entfernt. Zahlreiche Einkaufsmöglichkeiten sind fußläufig erreichbar.
In direkter Umgebung befinden sich Schulen und Kindergärten.
Arztpraxen und Apotheken sind vor Ort. Dei zentrale Wohnlage eignet sich ideal zur Vermietung.