Exklusive kernsanierte Wohnung in Jugendstilhaus Nähe Kudamm in Charlottenburg-Wilmersdorf

Die vollständige Adresse erhalten Sie vom Anbieter
10709 Berlin – Wilmersdorf
Berlin
1.795.000 €
Kaufpreis
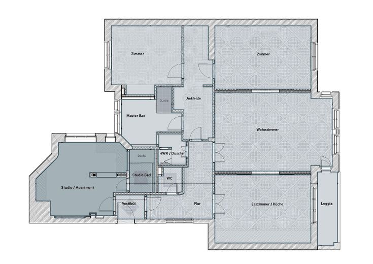
160 m²
Wohnfläche
5
Zimmer
TraumImmo-ID: B88HAQN
Partner-ID: 375567
Partner-Objekt von: ohne-makler.net
Anbieter:
Privat von Alexander M.

Anbieter kontaktieren

Information

  • Typ: Etagenwohnung
  • Etage: 1
  • Wohnfläche ca.: 160 m²
  • Bezugsfrei ab: Nach Vereinbarung
  • Zimmer: 5
KellerGäste-WCKücheBalkon

  • Baujahr: 1912
  • Zustand: MintCondition
  • Heizart: CentralHeating
  • Brennart: FiringTypeDistrictHeating
  • Stockwerke: 4
  • Nutzfläche: 165.0
  • Badezimmer: 3.0

Kaufpreis & Kosten

Kaufpreis1.795.000 €
Provisionkeine Provision für Käufer

Über dieses Traum-Apartment

Objektbeschreibung

Diese außergewöhnliche Wohnung vereint historischen Charme mit modernstem Luxus – eine stilvolle neu erstellte Wohnung hinter prachtvoller Jugendstilfassade. Fünf elegant gestaltete Räume, inklusive separatem Studio-Apartment, zwei Designer-Küchen und Kochinsel sowie edlem Carrara-Marmorkamin, bieten höchsten Wohnkomfort. Die sonnige Süd-Loggia, originalgetreuer Stuck, hohe Kassettentüren und maßgefertigte Einbauten schaffen ein einzigartiges Wohngefühl. Modernste Haustechnik, integriertes Heimkino und ein ausgeklügeltes Schallschutzkonzept garantieren Ruhe, Funktionalität und Atmosphäre auf höchstem Niveau. Ideal für Familien, Homeoffice oder stilvolles Arbeiten von zuhause – mit optionalem Tiefgaragenstellplatz und großzügigem Kellerabteil.


Ausstattung

Allgemein

- Versailles-Tafel-Parkett, massive Eiche
- Neue Böden, Decken, Wände, Fenster
- Dekorativer Kamin aus Carrara Marmor
- Decken- und Wandstuck
- Holzwandtafeln
- Neue einheitliche, hohe Türen mit Profilelementen, teilweise mit Glaselementen
- Beleuchtbares Kassetten-Buntglasfenster
- Hauswirtschaftsraum
- Loggia (Südlage)

Möbel

- Diverse Kleiderschränke (Einbaumöbel) in Nussbaumfurnier mit Beleuchtung
- Bücherregal mit Schubladen
- Hochwertige Badmöbel

Küchen

- 2 hochwertige Einbauküchen
- Kochinsel
- 2 Weinkühlschränke
- Induktionsfelder, automatischer Abzug (Bora)
- 2 Spülmaschinen
- Backofen, Mikrowelle, Geschirrwärmfach
- 2 Kühlschränke

Bad

- Hochwertiges Sanitär, Armaturen
- Badmöbel
- Handtuchtrockner (elektrisch)
- Bioethanolkamin

Haustechnik (manuell und über Apps steuerbar)

- Fußbodenheizung
- Hochwertige Alarmanlage mit Bewegungsmelder
- Sicherheitskamera (Eingangsbereich)
- Home-Cinema mit ausfahrbarer Leinwand und Dolby Surround, integrierter Mediaplayer
- Einheitliches Schalterprogramm (Gira)
- Premium Deckenlautsprecher in allen Räumen
- Dimmbare Deckenbeleuchtung in allen Räumen, Wandbeleuchtung
- Automatische Temperaturregelung über Thermostate


Lage

Lagebeschreibung

In unmittelbarer Nähe befinden sich u.a. der Hochmeisterplatz, der Olivaer Platz und der Preussen Park.
In Gehweite befinden sich u.a. derKu´Damm, Lehniner Platz, Schaubühne Theater, Adenauer Platz sowie zahlreiche Lebensmittelgeschäfte, Arztpraxen, Restaurants und vieles mehr.
Sehr gute Anbindung an öffentliche Verkehrsmittel in unmbittelbarer Umgebung (U-Bahn, S-Bahn, Busse).

ohne-makler.net
Anbieter:
Privat von Alexander M.

Anbieter kontaktieren