Neubauprojekt in Treuchtlingen: 46 moderne Wohn- und 2 attraktive Gewerbeeinheiten

Die vollständige Adresse erhalten Sie vom Anbieter
91757 Treuchtlingen – Treuchtlingen
Bayern
TraumImmo-ID: BRWR2JQ
Partner-ID: 378777
Partner-Objekt von: ohne-makler.net
Anbieter:
Privat von Arte Immobilien VV2 GmbH

Telefon:
0170 4093403
Mobil:
0170 4093403

Anbieter kontaktieren

Information

    • Bezugsfrei ab: sofort

    • Grundstücksfläche: 4611.0

    Kaufpreis & Kosten

    Provisionkeine Provision für Käufer

    Über dieses Traum-Wohngrundstück

    Objektbeschreibung

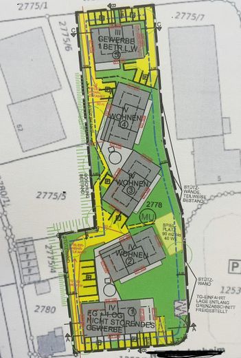
    In zentraler Lage von Treuchtlingen bietet sich die Möglichkeit zur Errichtung eines modernen Wohn- und Gewerbeensembles. Das Neubauprojekt besteht aus vier Wohngebäuden mit insgesamt 46 Wohneinheiten auf rund 3.900 m² Wohnfläche sowie einem separaten Gewerbegebäude mit zwei Einheiten auf ca. 450 m² Gewerbefläche.
    Das Gewerbegebäude umfasst eine ca. 108 m² große Betriebsleiterwohnung. Alle Gebäude sind über vier Geschosse geplant. Zum Projekt gehören weitere 55 Tiefgaragenstellplätze, 30 Außenstellplätze und 70 Fahrradstellplätze.
    Der relevante vorhabenbezogene Bebauungsplan liegt bereits vor, sodass eine zügige Projektumsetzung möglich ist. Darüber hinaus erlaubt die Planung eine flexible und individuelle Gestaltung der Grundrisse, wodurch gezielt auf Anforderungen potenzieller Mieter oder Käufer eingegangen werden kann.
    Die Planung kann auf dem bestehenden Grundstück realisiert werden, auf dem sich derzeit ein Bestand befindet.


    Lage

    Lagebeschreibung

    Treuchtlingen liegt im Herzen des Altmühltals in Bayern und bietet eine ausgezeichnete Lebensqualität. Die Stadt verbindet eine idyllische Naturlandschaft mit einer guten Infrastruktur. Durch die direkte Anbindung an die B2 und den Bahnhof, ist Treuchtlingen verkehrstechnisch sehr gut erschlossen. Schulen, Einkaufsmöglichkeiten und Freizeiteinrichtungen befinden sich in unmittelbarer Nähe.
    Die Region ist besonders für Pendler nach München, Nürnberg, Ingolstadt zum Wohnen ideal. Gleichzeitig ist sie für Naturliebhaber und Erholungssuchende attraktiv und bietet zahlreiche Wander- und Radwege.

    ohne-makler.net
    Anbieter:
    Privat von Arte Immobilien VV2 GmbH

    Telefon:
    0170 4093403
    Mobil:
    0170 4093403

    Anbieter kontaktieren