| Kaufpreis | 850.000 € |
|---|---|
| Provision | keine Provision für Käufer |
In der Stadt und doch im Grünen
Dieses außergewöhnliche Endreihenhaus einer 3er-RH-Zeile, bei dem sich jedes Haus in einem anderen Erscheinungsbild präsentiert - nicht wiederholend langweilig wie üblich, verbindet moderne Architektur, hochwertige Ausstattung und eine seltene Ruhe-Lage - unmittelbar am Öjendorfer Park. In nur zwei Gehminuten erreichen Sie den Park und den Badesee - ein echtes Privileg im urbanen Raum von Hamburg.
Das südlich ausgerichtete Haus liegt in einer verkehrsberuhigten kleinen Sackgasse von der Straße zurückgesetzt, und bietet ein hohes Maß an Privatsphäre. Die Kombination aus Endlage, gepflegtem Grundstück und hochwertiger Bauausführung, macht diese Immobilie zu einer echten Rarität. Ideal für Paare oder Eigennutzer, welche großzügiges offenes Wohnen schätzen und Wert auf Qualität, Ruhe und Natur legen – ohne auf die Nähe zur Stadt zu verzichten.
Objektbeschreibung
Das Haus wurde 2015 errichtet und überzeugt durch ein lichtdurchflutetes Raumkonzept über drei Ebenen, mit Galerie und außergewöhnlichen Raumhöhen.
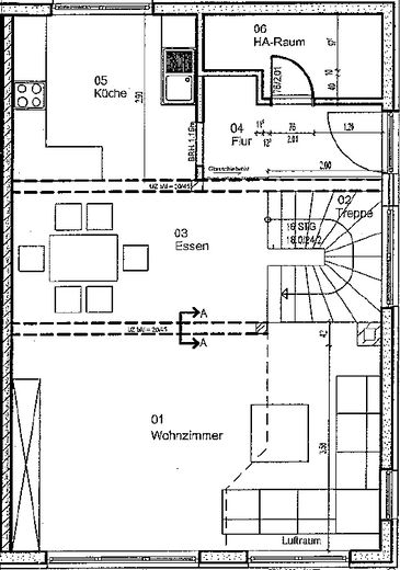
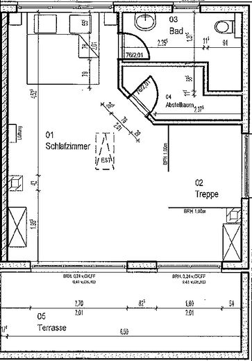
Raumaufteilung
- Erdgeschoss:
Großzügiger Wohn- und Essbereich mit offener Küche, raumhohe Faltglaswand, Deckenhöhe bis 5,50 Meter, direkter Zugang zur Süd- und Nordterrasse
- Obergeschoss:
Gäste-/Arbeitszimmer, Galerie, sowie großzügiges Tageslichtbad von 20 m²
- Staffelgeschoss:
Schlafzimmer mit Zugang zur verglasten Dachterrasse, begehbarer Kleiderschrank und WC
Zusätzlich: Ausbaureserve im Dach als Speicher/Kammer
Flächen
- Wohnfläche: 163 m² (WoFlV)
- Nutzfläche: 25 m² (DIN 277)
- Grundstück: 399 m²
Ausstattung (Auszug)
- Energieeffizienz 53,36 kWh (nur 3,36 kWh über Klasse A)
- Fußbodenheizung in allen Etagen
- Fugenlose Fußböden (Pandomo)
- Kontrollierte Be- und Entlüftung
- Nahwärmeversorgung (Danfoss-Übergabestation)
- Solarvorbereitung, großer Warmwasserspeicher
- Designer-Kaminofen (Fayko)
- Hochwertige Einbauküche (Nobilia) mit Siemens-Geräten & Dekton-Arbeitsplatte
- Raumhohe Fenster- & Türöffnungen (2,26 m), 3-fach-Verglasung, Sicherheitsglas
- Große Glasfront vor der Treppe (7,90 x 1,80 M) mit Sicherheitsverglasung 2 x 8 mm
- Elektrische Rollläden & Raffstores (Alu + Somfy-Flüstermotoren, Schalter-, App- & Sprach-Steuerung)
- Galerie mit Deckenhöhe bis ca. 5,50 m
- Zwei Terrassen (Süd & Nord) mit Strom- und Lichtanschlüssen
- Dachterrasse mit Sicherheitsverglasung + Strom- und Lichtanschlüssen
- Doppelcarport mit Vorbereitung für 2 E-Fahrzeuge
- Insgesamt 3 Stellplätze
- Hochwertige Außenanlagen, elektrisches Schiebetor
- Umfangreiche Ambientebeleuchtung innen & außen
(Vollständige Ausstattungsdetails auf Anfrage oder bei Besichtigung.)
Bitte Hinweis zum Verkauf unter "Sonstiges" beachten!
Nacharbeiten:
Durch einen schweren Unfall unseres Sohnes stand die Immobile die ersten 5 Jahre leer, wurde jedoch regelmäßig gepflegt und beheizt - keine Standschäden. Zu dieser Zeit waren noch Restarbeiten offen, welche, da wir seither mit privaten Veränderungen planen, noch erledigt werden müssen. Kosten, je nach Ausführung und Material (Holz, Glas Edelstahl), ab ca. 25.000 Euro. Kleine Wohnabnutzungen werden vor Übergabe von uns beseitigt – Fußböden werden neu versiegelt.
(Vollständige Details auf Anfrage oder bei Besichtigung.)
Hinweis zum Verkaufsverfahren
Der erwartete Kaufpreis für diese Immobilie liegt ab 850.000 €.
Wir bitten um schriftliche Kaufpreisangebote, die erst nach erfolgter Besichtigung abgegeben werden sollen. Letzte Preis-Anfragen werden nicht beantwortet - Sie entscheiden, welchen Wert diese Immobilie für Sie hat.
Das Verkaufsverfahren stellt keine Auktion dar.
Alle Kaufpreisangebote sind freibleibend und unverbindlich.
Ein Verkauf erfolgt ausschließlich nach individueller Entscheidung der Eigentümer und nur im Rahmen eines notariellen Kaufvertrages.
- Direkte Park- und Seenähe (Öjendorfer Park, ca. 140 ha)
- Ruhige Wohnsiedlung (erschlossen ca. 2012)
- Busanbindung fußläufig, U-Bahn ca. 3,5 km (mit Bus erreichbar)
- Innenstadt ca. 13 km
- A24 ca. 2 km, A1 ca. 4 km
- Kitas, Schulen, Ärzte, Einkaufsmöglichkeiten im näheren Umfeld