20 qm große Sonnenterrasse
großes Ess- und Wohnzimmer
großes Schlafzimmer
Modernes Bad mit Badewanne
Moderne,voll ausgestatte Küche
Flur
Außenansicht
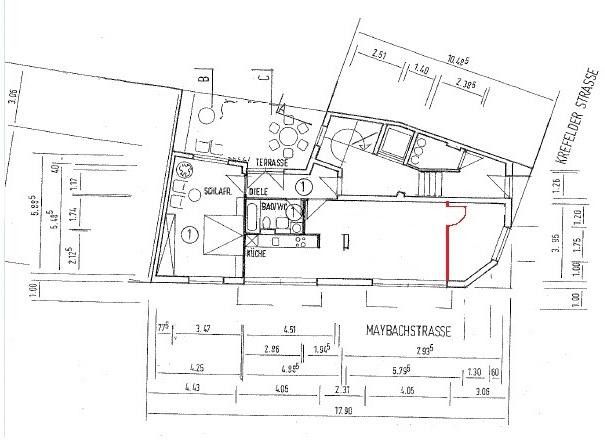
Aktueller Grundriss 2 ZKDB
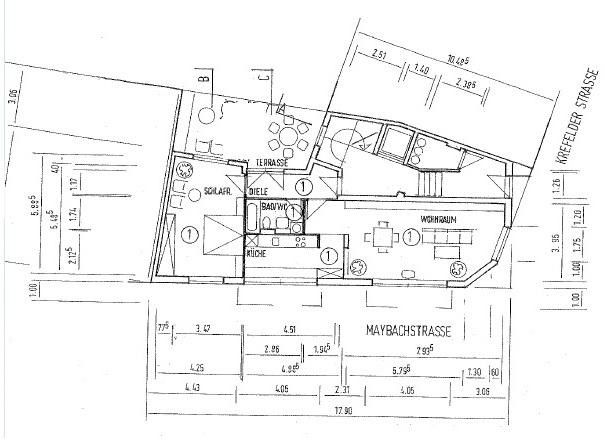
Möglicher Grundriss 3 ZKDB

Modernisierte, helle 2 Zi.-Wohnung mit 20 qm Sonnenterrasse mitten im Agnesviertel

Krefelder Str. 10
50670 Köln – Innenstadt
Nordrhein-Westfalen
1650 €
Kaltmiete
79 m²
Wohnfläche
2
Zimmer
TraumImmo-ID: DE94JT6
Partner-ID: 427507
Partner-Objekt von: ohne-makler.net
Anbieter:
Privat von Familie Schmitt

Anbieter kontaktieren

Information

  • Typ: Etagenwohnung
  • Wohnfläche ca.: 79 m²
  • Bezugsfrei ab: 01.03.2026
  • Zimmer: 2
KellerKüche

  • Baujahr: 2002
  • Zustand: Modernized
  • Heizart: FloorHeating
  • Brennart: FiringTypeDistrictHeating

Miete & Nebenkosten

Miete1650 €
Nebenkosten325 €
Heizkosten130 €

Über dieses Traum-Apartment

Objektbeschreibung

Modernisierte, helle und energieeffiziente 2 Zimmer - Wohnung mit schicker Einbauküche und 20 qm Sonnen-Terrasse in ruhiger, aber sehr zentraler Lage des beliebten Kölner-Agnesviertels.

Die Wohnung befindet sich in einem sehr gepflegten Mehrfamilienhaus (Baujahr 2002) mit niedrigen Energiekosten und guter Klimabilanz (Anschluss an das Fernwärmenetz).

Derzeit ist die Wohnung als 2 Zimmer-Wohnung aufgeteilt. Auf Wunsch kann vermieterseits jedoch ein weiteres Zimmer im Wohnzimmer abgetrennt werden, so dass die Wohnung auch als 3 Zimmer-Wohnung nutzbar wäre.


Ausstattung

Die Wohnung lässt keine Wünsche offen:

-Komplette Modernisierung der Wohnung
-Gehobene Ausstattung mit Echtholzdielen, Fußbodenheizung in der gesamten Wohnung, renoviertem Badezimmer mit Badewanne
-20 qm Terrasse ruhig gelegen im Innenhof zur alleinigen Nutzung
-sehr schöne Einbauküche mit modernen Geräten (in der Miete bereits enthalten)
-eigener Kellerraum durch Aufzug erreichbar und großer Gemeinschaftsraum für Fahrräder, Kinderwagen etc.
-sehr nette Nachbarschaft
-ideale Anbindung an ÖPNV, Restaurants und alle Einkaufsmöglichkeiten
-niedrige Heizkosten durch Fußbodenheizung, modernes Baujahr (2002) und Anschluss an das Fernwärmenetz
-schnelles Internet (bis zu 1.000 Mbit/s), ideal für Homeoffice
-Ein weiteres Highlight ist die durch einen renommierten Kölner Künstler neu gestaltete Fassade des Hauses.


Sonstiges

Die Wohnung wird von privat vermietet. Es fallen keine Maklergebühren an.

Die Wohnung ist ab dem 01.03.2026 verfügbar, aber auch ein späterer Einzugstermin ist möglich.

Wohnfläche: ca. 79 qm
Kaltmiete: 1.650,00 Euro
Nebenkosten: 195,00 Euro
Heizkosten: 130,00 Euro
Gesamtmiete: 1.975,00 Euro

Sehr gerne vereinbaren wir kurzfristig einen Besichtigungstermin mit Ihnen, beispielsweise am 11.02.2026 oder am 13.02.2026. Wir freuen uns auf Ihre Anfrage.


Lage

Lagebeschreibung

Die Wohnung ist sehr zentral im beliebten Agnesviertel in fußläufiger Nähe zur Haltestelle Hansaring gelegen (jedoch keine Lärmbelästigung durch Züge!) und damit unter anderem auch für Pendler sehr gut geeignet. Zu Fuß erreichen Sie mehrere Restaurants, Cafés, Supermärkte, Bäckereien und Ärzte. Nur ca. 1 Minute von der Wohnung entfernt ist eines der beliebtesten italienischen Restaurants Köln´s gelegen. Außerdem gibt es verschiedene Grün- und Parkanlagen, Bars, Modegeschäfte, Fitnessstudios und Buchhandlungen. Die Wohnung ist dennoch sehr ruhig gelegen, so verfügt sie über ein ruhiges Schlafzimmer zum Innenhof und eine große Terrasse, ebenfalls im Innenhof.

Die Verkehrsanbindung ist ideal. In fußläufiger Nähe befinden sich die S-Bahn-Haltestelle Hansaring der deutschen Bahn mit zahlreichen S-Bahn- und Regionalbahnlinien sowie die nahe gelegenen KVB-Linien 12, 15, 16 und 18 und zahlreiche Buslinien. Der Kölner Hauptbahnhof ist in ca. 10 Minuten fußläufig erreichbar. Mit dem PKW erreichen Sie in 2 Minuten die Zoobrücke nebst den nahegelegenen Autobahnanschlüssen.

ohne-makler.net
Anbieter:
Privat von Familie Schmitt

Anbieter kontaktieren