| Kaufpreis | 930.000 € |
|---|---|
| Provision | keine Provision für Käufer |
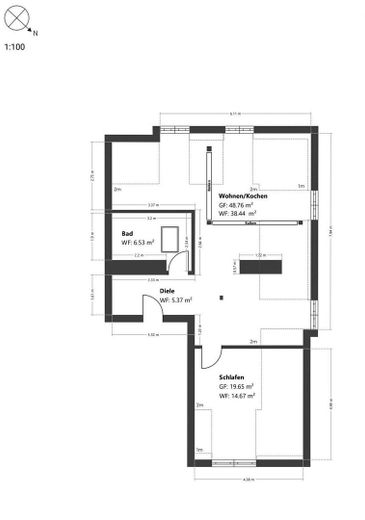
Diese helle, lichtdurchflutete Wohnung im Loftstil lieg unter dem Dach eines charmanten Altbaus
Ein echtes Glanzlicht sind die großen Dachgauben sowie der offene optisch durch Balken und Kamin abgegrenzte Wohn- und Essbereich, . Die maßgeschneiderte Küche bestehend aus weißen Einbauelementen kombiniert mit schwarzer Granitarbeitsplatte bzw. -boden wirkt zeitlos elegant und fügt sich nahtlos in den Wohnbereich ein.
Das Schlafzimmer mit Sicht auf den Innenhof beherbert einen großen Kleiderschrank welcher in die Dachschräge bündig eingebaut wurde sowie ein großen Fenster.
Außerdem verfügt die Wohnung noch über ein Kellerabteil sowie einem direkt aus der Wohnung zugaenglichen kleinen Speicher in dem man wunderbar kleinere Sachen lagern kann.
Die Wohnung wurde im Februar 2026 komplett frisch gestrichen.
Die moderne Wohnung mit durchdachtem, offenen Raumkonzept befindet sich im vierten Stock eines wunderschönen Altbaus. Die Fenster wurden 2012 im Sinne des Denkmalschutzes durch neue Holzfenster (zweifach verglast) erneuert.
Das Bad wurde 2015 komplett erneuert und mit einer großen Regendusche ausgestattet, außerdem ist ein Wasseranschluss für eine Waschmaschine vorhanden. Ein automatisch schließendes Dachfenster wurde ebenfalls eingebaut.
Das Objekt ist bezugsfertig und kann provisionsfrei von privat übernommen werden
Wir nehmen nur Anfragen an, welche eine Finanzierungsbestätigung der Bank vorzeigen können.
Lebendig und Erholsam
Die Umgebung zeichnet sich durch eine Vielzahl an feinen Restaurants, stilvollen Cafés und exklusiven Boutiquen sowie renommierten kulturelle Einrichtungen aus.
Die nahegelegene Isar bietet entspannte Rückzugsorte und hochwertige Freizeitmöglichkeiten. Das benachbarte Glockenbachviertel sorgt für ein lebendiges und anspruchsvolles Freizeit- und Gastronomieangebot.
Eine exzellente Anbindung an den öffentlichen Nahverkehr, inklusive U-Bahn-Stationen und Buslinien, ermöglicht schnelle Verbindungen in alle Stadtteile Münchens, der Flughafen München ist mit der S8 in weniger als einer Stunde erreichbar.