Südansicht vom Hof
Südansicht
Nord-West Ansicht
öffentliche Slipanlage
Blick vom Ufer auf See
Sonnenuntergang
Garten
Seezugang + Steg
Blick Richtung Osten
EBK ohne Kühlschrank
EBK-2
EBK-3
Geschirrspühler
Umluft-Dunstabzug
EBK-4
EBK-
Bad mit Badewanne und Dusche
Terrasse
WE 2 - blau hinterlegt

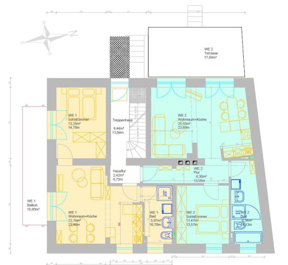
2Zi-Wohnung mit Seezugang, Terrasse, EBK,Garten, neuwertig

Die vollständige Adresse erhalten Sie vom Anbieter
15755 Teupitz – Teupitz
Brandenburg
785 €
Kaltmiete
60 m²
Wohnfläche
2
Zimmer
TraumImmo-ID: DP95T2R
Partner-ID: 432117
Partner-Objekt von: ohne-makler.net
Anbieter:
Privat vom Eigentümer

Anbieter kontaktieren

Information

  • Typ: Etagenwohnung
  • Etage: 0
  • Wohnfläche ca.: 60 m²
  • Bezugsfrei ab: 01.04.2026
  • Zimmer: 2
KellerKüche

  • Baujahr: 1900
  • Zustand: MintCondition
  • Heizart: FloorHeating
  • Brennart: Gas
  • Stockwerke: 2
  • Badezimmer: 1.0
  • Heizkosten in Nebenkosten enthalten: True

Miete & Nebenkosten

Miete785 €
Nebenkosten326 € inkl. Heizkosten
Heizkosten138 €
Kaution2356€

Über dieses Traum-Apartment

Objektbeschreibung

Diese neuwertige 2-Zimmer Wohnung, die im Erdgeschoß liegt, besticht durch eine gehobene Innenausstattung und kann zum 01.04.2026 bezogen werden. Zwei attraktive Zimmer bilden das Apartment. Besonders attraktiv wird das Objekt dadurch, dass es nicht nur eine Terasse gibt, von dem aus Sie einen Blick über den See haben, sondern Sie auch im zugehörigen Garten die frische Luft genießen können.
Bei dem Mehrfamilienhaus handelt es sich um ein Gebäude aus dem Jahr 1900 welches auch als „Kulturhaus Teupitz“ bekannt ist. In den letzten Jahren wurde das Objekt umfangreich umgebaut und saniert. Im Mai 2018 wurden 5 Wohneinheiten (2 und 3 Raumwohnungen) zur Vermietung fertiggestellt.
Das Mehrfamilienhaus liegt am Teupitzer See in zweiter Reihe vom Seeufer. Ein direkter Zugang zum See besteht über einen circa 5 Meter breiten Weg durch den Gemeinschaftsgarten. Auf dem benachbarten Ufergrundstück steht ein Steg von 27 Meter Länge zur Verfügung.
Auf dem Grundstück befinden sich PKW-Stellplätze welche zusätzlich angemietet werden können.
Das Objekt ist komplett unterkellert, hier befinden sich auch Abstellmöglichkeiten für jeden Mieter.


Ausstattung

Die Ausstattung ist gehoben.
Fußbodenheizung in gesamter Wohnung, die Wärme ist direkt zu spüren:
Balkon Richtung Westen. Einbauküche ist vorhanden
Bad mit Dusche, Wanne, Fenster und ausreichend Platz inkl. Waschmascienenanschluss.


Sonstiges

Haustiere sind nicht erwünscht.....keine Hunde und auch keine Katzen.


Lage

Lagebeschreibung

Teupitz liegt etwa 20 Minuten südlich von Schönefeld im Amt Schenkenländchen, umgeben von den Gewässern des Dahme-Seen-Gebietes. Teupitz ist vom Berliner Hauptbahnhof in etwa 40 Autominuten zu erreichen. Zwei Autobahnanbindungen (BAB 13) befinden sich in günstiger Entfernung.
Die Wohnungen liegen wenige Gehminuten vom Teupitzer Zentrum mit seinem Markt entfernt. Direkt vor dem Objekt befindet sich die Busstation der Linie 726, welcher im Stundentakt in 10min nach Groß Köris zum Bahnhof fährt. Von dort aus gelangt man mit den Regionalbahnen nach Berlin etc.
Der Teupitzer See ist an das Bundeswasserstraßennetz angeschlossen. Die Wasserwege sind von Teupitz bis zur Ostsee schiffbar
(Teupitzer See, Schweriner See, Mochgraben, Zemminsee, Köriser Graben, Schulzensee, Großer Moddersee, Klein Köriser See, Hölzerner See, Schmöldesee, Huschtesee mit Mündung in die Dahme). Eine öffentliche Slipanlage befindet sich in unmittelbarer Nachbarschaft.
Die Stadt, in der bereits Theodor Fontane Erholung suchte und fand, ist eine der ältesten in Brandenburg und besticht ganzjährig durch ihren typisch brandenburgischen Charme. Trotz der Nähe zu Berlin lebt es sich in Teupitz ruhig und erholsam. Im Ort finden sich alle Einrichtungen des täglichen Bedarfs (Supermarkt, Restaurants, Apotheke, Bäcker, Friseur, Sparkassenfiliale, Stadtverwaltung sowie zahlreiche touristische Attraktionen, wie eine Bootsvermietung, ein Reiterhof und nicht zuletzt die Heilige-Geist-Kirche, deren Anfänge bis in das Jahr 1346 zurückreichen sollen.

ohne-makler.net
Anbieter:
Privat vom Eigentümer

Anbieter kontaktieren