Villa Heike

Helles Gewerbe, Büro oder Atelier mit 3-9 großen Zi (75-300 Qm)

Freienwalder Str. 17
13055 Berlin – Alt-Hohenschönhausen
Berlin
14 €
Kaltmiete
TraumImmo-ID: DUEDZ6J
Partner-ID: 417808
Partner-Objekt von: ohne-makler.net
Anbieter:
Privat vom Eigentümer

Anbieter kontaktieren

Information

  • Typ: Bürogebäude
  • Etage: 2
  • Bezugsfrei ab: 01.02.2026

  • Baujahr: 1910
  • Zustand: WellKept
  • Heizart: CentralHeating
  • Brennart: Gas
  • Stockwerke: 4

Miete & Nebenkosten

Miete14 €
Provisionkeine Provision für Käufer

Über dieses Traum-Büro

Objektbeschreibung

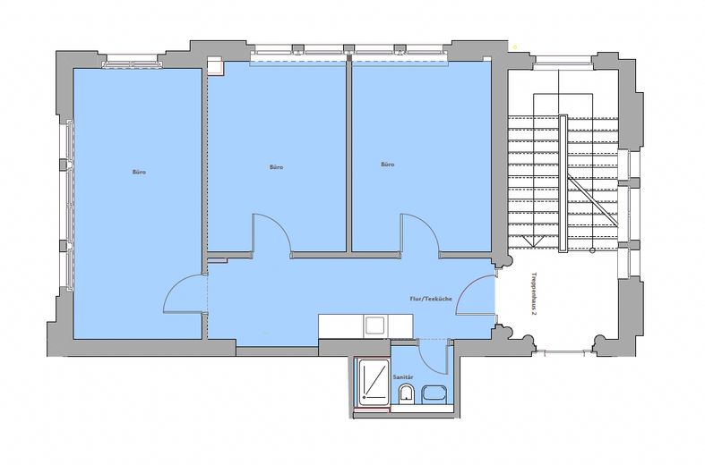
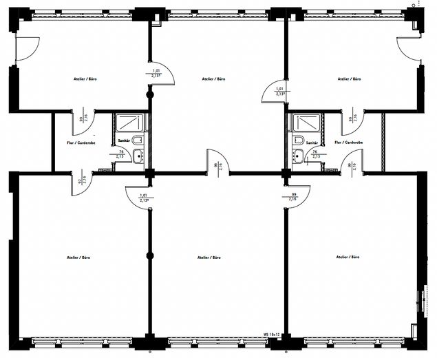
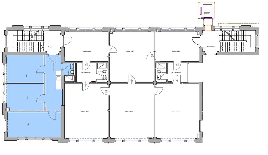
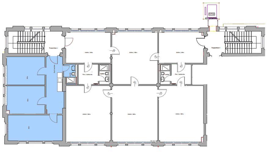
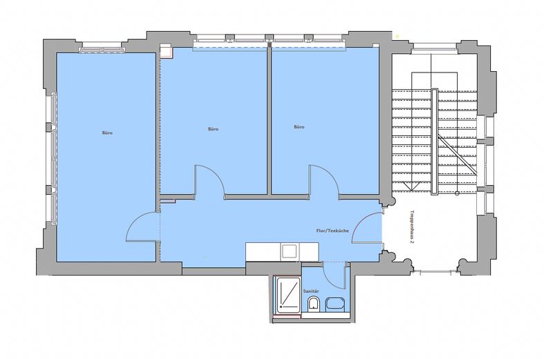
Die Einheit befindet sich in einem historischen Gewerbe-Atelierhaus und kann sowohl als Büro oder Atelier genutzt werden. Die ehemalige Villa Heike wurde 2019 kernsaniert und ist in einem sehr guten Zustand. Es sind verschiedene Einheiten einzeln oder zusammen vermietbar. Alle Einheiten haben moderne Duschbäden. Die Türen und Fenster sind im Original erhalten, der Fussboden ist ein restaurierter, dunkelroter Calziumsulfatestrich. Die übrigen Einheiten in dem Haus sind an Künstler oder an Einzelfirmen und Freischaffende aus der Kreativszene vermietet.

Option 1:
3 Zimmern, Flur, Küche und Bad. Die Einheit hat 75 Qm und kann einzeln angemietet oder mit der großen Einheit verbunden werden.
Miete (3 Zi, Küche, Bad): 1100 Kaltmiete + 250 Euro Nebenkosten-VZ + Umsatzsteuer

Option 2:
Die Einheit hat 4 Zimmer, Flur, Bad und Küchenanschlüsse.
Miete (4Zi, 140 Qm): 1950 Kaltmiete + 450 Euro Nebenkosten-VZ + Umsatzsteuer


Option 3:
Die Einheit hat zwei Eingänge, sechs große Zimmer, sowie zwei moderne Duschbäder. Küchenanschlüsse sind vorhanden.
Miete (6Zi/215 Qm): 3000 Euro Kaltmiete + 600 Euro Nebenkosten-VZ + Umsatzsteuer

Option 4:
9 Zimmer, 3 Eingänge, 3 Bäder + Küche.
Miete (290 Qm): 4100 Euro Kaltmiete + 850 Euro Nebenkosten-VZ + Umsatzsteuer

Falls nur Interesse an einem Zimmer in einer Einheit besteht, können wir gerne den Kontakt zu den Mietern herstellen, die Räume untervermieten.


Ausstattung

Kaution: 3 Kaltmieten
Die Einheit darf nur an umsatzsteuerpflichtige Gewerbe vermietet werden.
Gewerbliches Übernachten ist nicht gestattet.


Sonstiges

Benötigte Unterlagen:
Kopie Personalausweis
Bestätigung Gewerbeanmeldung und Umsatzsteuer-ID
Einkommensnachweis (zB als BWA, Jahresabschluss, Steuerberater,...)
Schufa-Auskunft


Lage

Lagebeschreibung

Die Freienwalder Straße befindet sich in Alt-Hohenschönhausen, ca. 6km vom Alexanderplatz entfernt. In unmittelbarer Nähe befinden sich die ID-Studios sowie die Gedenkstätte Hohenschönhausen. Das Haus befindet sich in der Nähe der Altstadt von Hohenschönhausen mit klassischen Einkaufs- und Freizeitangebote und ist vom Oberseepark mit Oberssee und Orankesee ca. 700m entfernt.

ohne-makler.net
Anbieter:
Privat vom Eigentümer

Anbieter kontaktieren