Grundriss TG und Kellerabteile
Hesselfurt Leben
Ansicht Süd/Ost Haus 5a
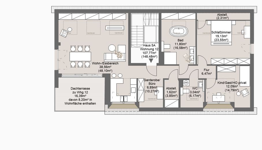
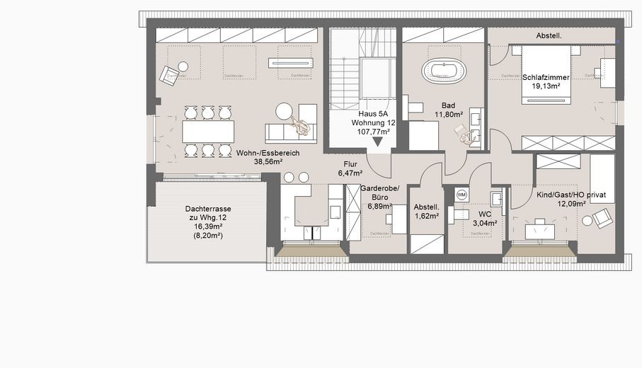
Grundriss Whg. 12

Tolle Penthouse-Wohnung - Top ausgestattet in ruhiger Lage in Grafing b. München

Die vollständige Adresse erhalten Sie vom Anbieter
85567 Grafing bei München – Grafing bei München
Bayern
928.800 €
Kaufpreis
107 m²
Wohnfläche
3,5
Zimmer
TraumImmo-ID: E58S7F9
Partner-ID: 415558
Partner-Objekt von: ohne-makler.net
Anbieter:
Angebot von Elli Riedl

Anbieter kontaktieren

Information

  • Typ: Penthouse
  • Etage: 2
  • Wohnfläche ca.: 107 m²
  • Bezugsfrei ab: 31.10.2027
  • Zimmer: 3,5
KellerBarrierefreiGäste-WC

  • Baujahr: 2026
  • Stockwerke: 3
  • Nutzfläche: 15.0
  • Badezimmer: 1.0

Kaufpreis & Kosten

Kaufpreis928.800 €
Provisionkeine Provision für Käufer

Über dieses Traum-Apartment

Objektbeschreibung

Die beiden Mehrfamilienhäuser mit je 6 Wohnungen überzeugen mit zeitgemäßer Architektur und einem Wohnkonzept für unterschiedlichste Bedürfnisse. Die hellen Wohnungen bieten durchdachte Grundrisse, großzügige Fensterflächen und – je nach Einheit – Balkone oder Terrassen oder Dachterrassen für entspannte Stunden im Freien.

Besonderer Wert wurde auf Energieeffizienz und nachhaltige Bauweise gelegt, sodass Sie hier nicht nur komfortabel, sondern auch zukunftsorientiert wohnen. Für zusätzlichen Komfort sorgen Tiefgaragenstellplätze, Abstellräume und eine moderne Haustechnik, die das Wohnen so angenehm wie möglich macht.


Ausstattung

Die Penthouse-Wohnung hat eine tolle Dachterrasse mit tollem Ausblick, exklusive Badausstattung, u.a. eine freistehende Badewanne und ein zusätzliches Gäste-WC
"Unser Plus+"
Die Dezentrale Lüftungsanlage in allen Wohnung mit Wärmerückgewinnung sorgt für einen kontinuierlichen Luftaustausch und trägt somit zur Verbesserung des Raumklimas sowie zur Energieeffizienz bei.
Zwei Photovoltaikanlagen erzeugen einen Teil des für den Heiz- und
Kühlbetrieb sowie für den allgemeinen Hausstrom benötigten Energiebedarfs.
Raumtemperierung durch Flächenkühlung über die vorhandene Fußbodenheizung und Wärmepumpe die in den Kühlbetrieb schaltet
Barrierefreiheit ist in 10 von 12 Wohnungen gewährleistet.
E-Mobilität und Lademanagement werden durch Zuleitungen für Ladesäulen und Datenleitungen an allen TG-Stellplätzen ermöglicht


Sonstiges

Nähere Informationen und komplettes Exposé unter www.riedl-baukultur.de


Lage

Lagebeschreibung

Die Hesselfurterstraße zeichnet sich durch angenehme Ruhe und geringe Verkehrsbelastung aus. Trotz der Nähe zur Stadtmitte bleibt die Natur allgegenwärtig: Zahlreiche Spazierwege laden zu Ausflügen ins Grüne ein. Gleichzeitig erreichen Sie das Stadtzentrum von Grafing in wenigen Gehminuten – hier finden Sie alles für den täglichen Bedarf. Ein besonderer Vorteil dieser Immobilien ist auch die ausgezeichnete Anbindung an den öffentlichen Nahverkehr: Der Bahnhof Grafing Stadt ist schnell fußläufig erreichbar und bietet Anschluss an die S-Bahn sowie an Busverbindungen in die Region. Der Bahnhof Grafing Bahnhof mit „Park & Ride“, ein überregionaler Verkehrsknotenpunkt mit S-Bahn-, Regional- und Fernverkehr, liegt nur wenige Autominuten entfernt und ermöglicht eine schnelle Verbindung nach München und Rosenheim.

ohne-makler.net
Anbieter:
Angebot von Elli Riedl

Anbieter kontaktieren