Moderne 2-Zimmer-Neubauwohnung im Erstbezug inkl. Loggia, Küche & TG Stellplatz

Hauptstr.4
78224 Singen (Hohentwiel) – Singen (Hohentwiel)
Baden-Württemberg
1020 €
Kaltmiete
60 m²
Wohnfläche
2
Zimmer
TraumImmo-ID: E6WEHYQ
Partner-ID: 434690
Partner-Objekt von: ohne-makler.net
Anbieter:
Privat von Frau Golz-Ehinger

Anbieter kontaktieren

Information

  • Typ: Erdgeschosswohnung
  • Etage: 0
  • Wohnfläche ca.: 60 m²
  • Bezugsfrei ab: 01.04.2026
  • Zimmer: 2
BarrierefreiKücheGarten

  • Baujahr: 2025
  • Zustand: FirstTimeUse
  • Heizart: FloorHeating
  • Badezimmer: 1.0

Miete & Nebenkosten

Miete1020 €
Nebenkosten230 €
Heizkosten150 €
Kaution3060€

Über dieses Traum-Apartment

Objektbeschreibung

Moderne 2-Zimmer-Neubauwohnung im Erstbezug in zentraler Innenstadtlage von Singen (Hohentwiel) – Bahnhof und City in nur 5 Gehminuten erreichbar.

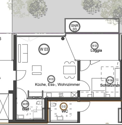
Die ca. 60,66 m² große Wohnung bietet einen großzügigen Wohn-, Ess- und Kochbereich mit Zugang zur Loggia sowie ein separates Schlafzimmer für eine klare Trennung von Wohnen und Ruhen.

Ein modernes Badezimmer, eine Einbauküche, ein Kellerabteil sowie ein Tiefgaragenstellplatz sind bereits inklusive.
Bezugsfrei ab 01.04.2026 (alternativ 15.04.2026) bei einer Warmmiete von 1.350,00 €.

Ideal für Singles oder Paare, die urbanes Wohnen mit modernem Komfort und hochwertiger Ausstattung schätzen.


Zusammenfassung 2 Zimmer Wohnung

1020€
+ 100€ TG
+ 80€ Küche
+ 150€ NK
= 1350 €


Lage

ohne-makler.net
Anbieter:
Privat von Frau Golz-Ehinger

Anbieter kontaktieren