Rückansicht WZ+SZ unten rechts
Schlafzimmer
Blick zur Augustusburg
Wohnzimmer
Bad
Bad
Hofansicht
Sitzplatz + Wäschetrockenplatz

Die Vorzüge von Stadt und Land genießen.

Hauptstraße 2a
09437 Witzschdorf – Witzschdorf
Sachsen
335 €
Kaltmiete
58 m²
Wohnfläche
3
Zimmer
TraumImmo-ID: EHT4RWJ
Partner-ID: 15620
Partner-Objekt von: ohne-makler.net
Anbieter:
Privat von Jens Weber

Anbieter kontaktieren

Information

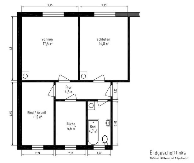
  • Typ: Erdgeschosswohnung
  • Etage: 0
  • Wohnfläche ca.: 58 m²
  • Bezugsfrei ab: 01.11.2025
  • Zimmer: 3
Keller

  • Baujahr: 1965
  • Zustand: Refurbished
  • Heizart: CentralHeating
  • Brennart: Oil
  • Stockwerke: 1
  • Badezimmer: 1.0
  • Heizkosten in Nebenkosten enthalten: True

Miete & Nebenkosten

Miete335 €
Nebenkosten135 € inkl. Heizkosten
Heizkosten50 €
Kaution1005€

Über dieses Traum-Apartment

Objektbeschreibung

Es handelt sich um eine Erdgeschoßwohnung im sanierten 4-Familienhaus am Ortsrand von Witzschdorf mit Blick zur Augustusburg. Die Lage ermöglicht sowohl den direkten Zugang zu Wald und Natur als auch zur Stadt Zschopau. Der Stadtverkehrsbus hält ca. 100m entfernt. Auch ohne eigenes Fahrzeug ist damit die Grundversorgung gesichert. Chemnitz ist über die B174 in nur wenigen Minuten erreichbar. Der 15 m² große Keller mit Stromanschluß und der das Haus umschließende Garten bietet viel Platz für Hobby und Entspannung. Ein Wäschetrockenraum im Haus sowie ein Trockenplatz im Garten stehen ebenfalls zur Verfügung. Ein Glasfaseranschluss ist auch vorhanden. Vor Übergabe der Wohnung werden noch alle Heizkörper erneuert und das Bad neu gefliest.


Ausstattung

Die Wohnung ist unmöbliert. Alle Wände tapeziert und weis gestrichen.


Lage

ohne-makler.net
Anbieter:
Privat von Jens Weber

Anbieter kontaktieren