Ansicht vom Garten aus
Treppenhaus EG Richtung WoZi
Wohnzimmer EG
Treppenhaus EG Richtung EssZi
Bad OG
Kinderzimmer OG mit Balkon
Großes Dachzimmer
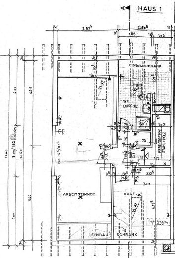
EG
OG
DG
Keller

Familienfreundliche DHH

Die vollständige Adresse erhalten Sie vom Anbieter
76337 Waldbronn – Reichenbach
Baden-Württemberg
465.000 €
Kaufpreis
163 m²
Wohnfläche
7,5
Zimmer
TraumImmo-ID: ENTEQP4
Partner-ID: 435160
Partner-Objekt von: ohne-makler.net
Anbieter:
Privat vom Eigentümer

Anbieter kontaktieren

Information

  • Typ: Doppelhaushälfte
  • Wohnfläche ca.: 163 m²
  • Bezugsfrei ab: Nach Vereinbarung
  • Zimmer: 7,5
KellerGäste-WCKücheBalkonGarten

  • Grundstücksfläche: 361.0
  • Baujahr: 1976
  • Zustand: NeedOfRenovation
  • Heizart: CentralHeating
  • Brennart: Oil
  • Stockwerke: 4
  • Badezimmer: 2.0

Kaufpreis & Kosten

Kaufpreis465.000 €
Provisionkeine Provision für Käufer

Über dieses Traum-Haus

Objektbeschreibung

Die Immobilie besticht durch ihre ruhige und dennoch verkehrsgünstige Lage in einem gewachsenen und gepflegten Wohngebiet des sich durch hohe Lebensqualität auszeichnenden Kurortes Waldbronn. Bei der angebotenen Doppelhaushälfte fällt besonders das durchdachte Wohnkonzept mit überzeugender Raumaufteilung positiv auf.
Das Haus betritt man durch einen Flur, an dem ein Gäste-WC mit Waschbecken sowie ein kleiner Abstellraum angrenzt. Die Tür geradeaus führt in einen offenen Wohnbereich mit Treppenhaus. Zur Südseite öffnet sich ein großzügiges Wohnzimmer mit Kamin sowie Zugang zu Terrasse und ruhigem Hintergarten. Nördlich liegt das Esszimmer, direkt neben der Küche.
Im Untergeschoss befindet sich von einem offenen Flur abgehend ein (Hobby-)Raum mit extra-Zugang über eine Außentreppe, eine Waschküche mit ebenerdiger Dusche sowie ein großer (Vorrats-)Keller mit reichlich Stauraum. Im kleinen Heizkeller (geht vom Hobbyraum ab) befindet sich die Ölheizung, deren Tank (10.000 Liter) unter der Einfahrt vor dem Haus liegt.
Im Obergeschoss befinden sich 3 (Kinder)Zimmer, sowie ein (Eltern)Schlafzimmer, ein Badezimmer mit zwei Waschbecken, Badewanne und Dusche. Die zwei auf der Südseite gelegenen Zimmer haben jeweils einen Zugang auf den Balkon.
Über die vom Keller bis ins Dach geführte Stahl-Holztreppe gelangt man nach oben hin in das Dachgeschoss. Von einem kleinen Flur aus erreicht man ein (Gäste)Bad mit WC und Dusche, ein (Gäste)Zimmer sowie ein großes Dachzimmer mit Ausblick und Klimaanlage.
Zur Immobilie gehört außerdem eine Garage, die nicht nur Platz für ein Auto bietet, sondern auch zusätzlichen Raum für das Abstellen von Fahrrädern und Gartenutensilien.


Ausstattung

• Massive Bauweise
• Tageslicht in allen Zimmern (außer Waschküche und Vorratskeller)
• Klimaanlage im großen Dachzimmer
• Fenster mit 2-fach-Verglasung
• Stahl-Holztreppen
• Kamin im Wohnzimmer
• 2 Tageslicht-Bäder, zusätzlich eine ebenerdige Dusche im Keller, Gäste-WC
• Garage, teilsaniert 2019, mit zusätzlichem Fahrradabteil und elektrischem Garagentor
• Süd-Terrasse
• Süd-Balkon, teilsaniert 2019
• Westfassade 2020 erneuert und gedämmt
• Öl-Zentralheizung, Umwälzpumpe 2024 erneuert
• Viel Staufläche im Keller sowie in mehreren Abseiten/Kniestöcken des Dachgeschosses


Lage

Lagebeschreibung

Die Immobilie befindet sich in sehr ruhiger Lage (keine Durchgangsstraße, nach hinten versetzt) auf einer leichten Anhöhe zwischen den Ortsteilen Reichenbach und Busenbach. Das kinderfreundliche Umfeld zeichnet sich durch mehrere nahgelegene Spielplätze aus.
Verschiedene Einkaufsmöglichkeiten und Restaurants sind bequem fußläufig erreichbar. Kindergarten, Schule, Ärzte und Apotheken befinden sich im nahen Umfeld. Auch Freizeitangebote (u.a. Sportplätze, Tennisplätze, Freibad, Eislaufhalle) und Erholungsmöglichkeiten (z.B. Kurpark mit Minigolf, Albtherme, Nordschwarzwald) liegen nur wenige Gehminuten entfernt.
Eine gute Anbindung an den öffentlichen Nahverkehr ist insbesondere durch die S11 sowohl Richtung Karlsbad als auch Richtung Ettlingen und Karlsruhe gegeben. Zusätzliche Buslinien mit nahegelegenen Haltstellen ergänzen dieses Angebot. Eine schnelle Anbindung ist zudem durch die Autobahn A8 gewährleistet.

ohne-makler.net
Anbieter:
Privat vom Eigentümer

Anbieter kontaktieren