Außenansicht
Wintergarten
Wintergarten
Ansicht Küchenerker
Teich
Wohnzimmer
Wohnzimmer
Wohnzimmer
Blick durch den Erker
Gäste - WC
Kind 1
Kind 1
Wohnzimmer mit Kamin
Küche
Küche
HWR / HAR
Flur im OG
Kind 1
Schlafen/ Büro
Abstellraum Studio
Studio
Studio
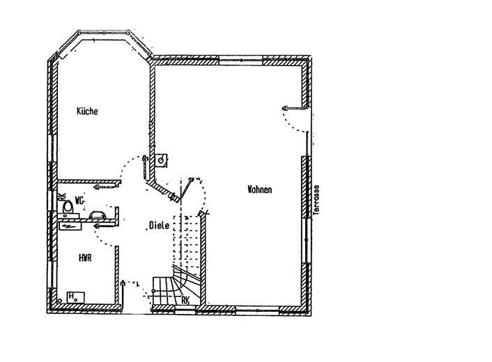
Grundriss Erdgeschoss
Grundriss Obergeschoss
Schlafen/ Büro Treppe Studio
Bad im OG
Kind 2/ Schlafen
Bad im OG
Kind 2/ Schlafen
Diele mit Treppe zum OG
Grundriss Dachboden

Einfamilienhaus in Schönow - von privat

Die vollständige Adresse erhalten Sie vom Anbieter
16321 Bernau – Schönow
Brandenburg
599.000 €
Kaufpreis
146 m²
Wohnfläche
5
Zimmer
TraumImmo-ID: ER6HTX5
Partner-ID: 269009
Partner-Objekt von: ohne-makler.net
Anbieter:
Privat von Fam Schöneberg

Mobil:
01556 0907700

Anbieter kontaktieren

Information

  • Typ: Einfamilienhaus
  • Wohnfläche ca.: 146 m²
  • Bezugsfrei ab: sofort
  • Zimmer: 5
Gäste-WCKücheGarten

  • Grundstücksfläche: 675.0
  • Baujahr: 2003
  • Zustand: WellKept
  • Heizart: FloorHeating
  • Brennart: Gas
  • Stockwerke: 2
  • Nutzfläche: 183.0
  • Badezimmer: 2.0

Kaufpreis & Kosten

Kaufpreis599.000 €
Provisionkeine Provision für Käufer

Über dieses Traum-Haus

Objektbeschreibung

Das hier direkt vom Eigentümer angebotene Einfamilienhaus wurde im Jahr 2003 in massiver Bauweise auf einer Fundamentplatte errichtet. Es verfügt über ein Erdgeschoss sowie ein vollständig ausgebautes Dachgeschoss. Die helle, vorgemauerte Klinkerfassade verleiht dem Haus ein gepflegtes und zeitloses Erscheinungsbild. Besonders hervorzuheben sind der markante Erker an der Südseite sowie der nach Südwesten ausgerichtete, dem Wohnbereich direkt angeschlossene Wintergarten (nicht beheizt), der gemeinsam mit dem Kamin eine behagliche Wohnatmosphäre schafft.
Im gesamten Erdgeschoss sorgt eine Fußbodenheizung für angenehme Wärme, ebenso wie im Hauptbad des Obergeschosses. Alle weiteren Räume werden individuell über Heizkörper beheizt. Der ausgebaute Spitzboden bietet zusätzlichen Raum, der sich ideal als Studio, Arbeitsbereich oder Gästezimmer eignet. Zwei angrenzende Abstellräume schaffen praktischen Stauraum.
Die Raumaufteilung entnehmen Sie bitte den beiliegenden Grundrissen.
Vom großzügigen Dielenbereich im Erdgeschoss gelangt man in das Gäste-WC sowie den Hausanschlussraum. In diesem befindet sich die im März 2023 komplett erneuerte Gastherme sowie ausreichend Platz für Waschmaschine, Trockner und einen zusätzlichen Kühlschrank. Die angrenzende Küche mit Erker bietet einen charmanten Platz für das Frühstück bei Morgensonne – eingerahmt von Rosenblüten. Die im Kaufpreis enthaltene Einbauküche ist stilvoll und funktional gestaltet und lädt zum Kochen und Genießen ein.
Eine geschlossene Holzwangentreppe führt ins Dachgeschoss. Hier befinden sich drei gut geschnittene Zimmer sowie das geräumige Vollbad mit Badewanne, Dusche und clever integrierten Stauräumen in den Dachschrägen. Über eines der Zimmer erreicht man über eine Spartreppe den wohnlich ausgebauten Spitzboden, der durch große Fenster in den Dachschrägen sowie an der Giebelseite mit Tageslicht durchflutet wird. Auf der gegenüberliegenden Seite steht ein separater Raum zur Verfügung, der als Lagerfläche oder Kellerersatz genutzt werden kann.
Das Haus befindet sich auf einem vorderen Grundstücksteil eines geteilten Grundstücks mit befestigter Zufahrt. Die Einfahrt wird gemeinsam mit dem Hinterlieger über ein Geh-, Fahr- und Leitungsrecht genutzt und ist vollständig gepflastert. Dank der cleveren Anordnung mit Garage und Schuppen ist das Vorderliegergrundstück optisch und funktional gut vom hinteren Grundstücksteil abgegrenzt.
Der praktisch angelegte Garten bietet einen hohen Erholungsfaktor: Neben dem Terrassenbereich am Wintergarten laden weitere Sitzplätze zum Verweilen ein. Die abwechslungsreiche Bepflanzung – darunter eine beeindruckende Chilenische Schmucktanne, verschiedene Koniferen, prächtige Rhododendren, üppig blühende Kletterrosen sowie ein ertragreicher Süßkirschenbaum – schafft eine grüne Oase mit hohem Erholungswert. Ein Zierteich rundet das Gesamtbild harmonisch ab.
Zusätzliche Ausstattungsmerkmale:
•Brunnen zur Gartenbewässerung – spart Kosten und schont Ressourcen
•ABUS-Alarmanlage mit App-Benachrichtigungen – erweiterbar um zahlreiche Sicherheitsfunktionen
•Pilzkopfverriegelung an allen Fenstern – nachträglich installiert für erhöhten Einbruchschutz
•Gastherme erneuert (2023) – energieeffizient und zukunftssicher
•Fußbodenheizung im Erdgeschoss und im Hauptbad
•Kamin im Wohnbereich
•Einbauküche im Kaufpreis enthalten
•Wohnlich ausgebauter Spitzboden mit Tageslicht
•Garage, Schuppen, Carport und gepflasterte Zufahrt
•Garten mit Teich und Sitzplätzen in verschiedenen Sonnenlagen


Ausstattung

Das Grundstück ist voll erschlossen. Folgende Medien liegen an:

Erdgas (neue Therme und Warmwasserspeicher im März 2023)

Strom

Frischwasser und Abwasser

DSL-Anschluss (Glasfaser liegt bereits straßenseitig vor dem Grundstück und kann bei Bedarf angeschlossen werden)

Die im Kaufpreis enthaltene Einbauküche ist in einem gepflegten Zustand; Elektrogeräte wurden regelmäßig gewartet bzw. bei Bedarf erneuert und ermöglichen somit einen sofortigen, komfortablen Start im neuen Zuhause.


Lage

Lagebeschreibung

Schönow ist seit der Gemeindegebietsreform 2003 ein Ortsteil der Stadt Bernau bei Berlin und überzeugt durch seine attraktive Lage im direkten Berliner Umland. Die Infrastruktur ist – gemessen an der Ortsgröße – hervorragend ausgebaut und profitiert von der unmittelbaren Nähe zu Berlin, Bernau und Panketal.

Der S-Bahnhof "Zepernick" (Linie S2) ist fußläufig in etwa 15 Minuten erreichbar und bietet eine schnelle Anbindung an die Berliner Innenstadt. Zusätzlich steht eine Busverbindung zur Verfügung.

Das angebotene Objekt befindet sich in einer ruhigen, gewachsenen Siedlungslage nördlich der Berliner Allee – einer der begehrtesten Wohnlagen Schönows. Die Nachbarschaft ist geprägt von gepflegten Einfamilienhäusern und einer angenehmen, familienfreundlichen Atmosphäre. Einkaufsmöglichkeiten, eine Grundschule, eine Kita und weitere Einrichtungen des täglichen Bedarfs sind in nur ca. 5 Gehminuten erreichbar. Weiterführende Schulen, Ärzte, ein Krankenhaus mit spezialisierten Fachabteilungen sowie vielfältige Freizeit- und Kultureinrichtungen finden sich im nahegelegenen Bernau.

Erholungssuchende kommen in der nahen Schönower Heide voll auf ihre Kosten. Dieses beliebte Naturschutzgebiet lädt das ganze Jahr über zu ausgedehnten Spaziergängen, Radtouren oder einfach zum Verweilen in der Natur ein.

Dank der ausgezeichneten Verkehrsanbindung über die Bundesstraße B2 sowie die Autobahnen A114 und A11 ist sowohl das Berliner Stadtzentrum als auch das seen- und waldreiche Brandenburger Umland schnell und bequem erreichbar.

ohne-makler.net
Anbieter:
Privat von Fam Schöneberg

Mobil:
01556 0907700

Anbieter kontaktieren