Hofseite
Vorderansicht
Büro Hofseite
Gäste WC
Büro Hofseite
Flur
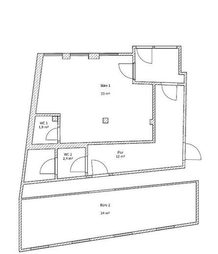
Grundriss

Büro / Lager / Studio - Erdgeschoß in zentraler Lage in Oederan zu vermieten

Kleine Kirchgasse 1
09569 Oederan – Oederan
Sachsen
TraumImmo-ID: FYTNB5J
Partner-ID: 421257
Partner-Objekt von: ohne-makler.net
Anbieter:
Privat vom Eigentümer

Anbieter kontaktieren

Information

  • Typ: Büroetage
  • Etage: 0
  • Bezugsfrei ab: 01.03.2026
Gäste-WC

  • Baujahr: 1900
  • Zustand: MintCondition
  • Heizart: CentralHeating
  • Brennart: Gas
  • Stockwerke: 1

Miete & Nebenkosten

Kaution750€
Provisionkeine Provision für Käufer

Über dieses Traum-Büro

Objektbeschreibung

Vermieten helle Räume im Erdgeschoß eines komplett neu ausgebauten Hauses im Zentrum von Oederan (Kleine Kirchgasse - Fußgängerzone)

Geeignet für Büro, Praxis, Studio oder Lager

Viel Platz zum Realisieren der eigenen Geschäftsidee, für Hobby oder einfach nur als Abstellraum.

Sanitär- und Elektroinstallation neu in 2023
Heizung (Gas-Brennwert) neu in 2024
Glasfaser-Internet

Die Fläche besteht aus 2 Büros
Büro 1 (Straßenseite) - 25 m²
Büro 2 (Hofseite) - 24m² zzgl. Flur nach Abstimmung

jeweils mit separatem WC

Büros haben Tageslicht und sind separat abschließbar

Einzeln oder als Gesamtfläche zu vermieten

Wir freuen uns auf Anfragen.

Verfügbar ab 01.03.2026


Ausstattung

Kompletter Neuausbau in 2022-2025.


Lage

Lagebeschreibung

Reihenhaus im Zentrum von Oederan in Fußgängerzone. Guter Zugang - Erdgeschoß.

Parken kostenfrei (tagsüber teilweise mit Parkuhr) in unmittelbarer Umgebung.

Bushaltestelle in 50m Entfernung.

ohne-makler.net
Anbieter:
Privat vom Eigentümer

Anbieter kontaktieren