| Kaufpreis | 1.450.000 € |
|---|---|
| Provision | keine Provision für Käufer |
Gepflegtes Mehrfamilienhaus aus der Gründerzeit, zentral am Rande der Altstadt. und doch ruhig gelegen.
Das Wohnhaus befindet zwischen der Stauffenbergallee und der Erfurter-Innenstadt, diese, sowie der Bahnhof, sind bequem zu Fuß, Fahrrad oder mit der Straßenbahn erreichbar.
Zum Haus verfügt über keine Stellplätze. Da die Straße nur einseitig bebaut ist und an beiden Straßenrädern geparkt werden darf, sind ausreichend öffentliche Parkmöglichkeiten vorhanden.
Hausverwaltung und Hausmeister sind im Hause und würden das Objekt auch weiterhin betreuen.
Das Objekt wurde 1996/1997 kernsaniert.
Bitte haben Sie Verständnis, dass wir nur Anfragen mit vollständiger Adresse, Telefonnummer und Email-Adresse bearbeiten.
Objekt:
10 Familienhaus, EG, 1. OG – 3. OG, DG, Zweispänner
99084 Erfurt
Krämpferufer 4
Baujahr1906
Sanierung1996/1997
Erstvermietung ab:01.11.1997
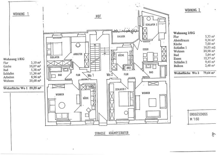
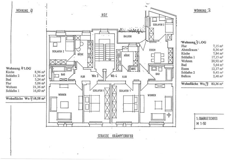
Wohnungen:5 x 3,5 Zimmerwohnungen mit 80 bis 86 m² mit Balkon, EG, 1.OG-DG
1 x 2 Zimmerwohnung mit 60 m², EG
4 x 3 Zimmerwohnung mit 67 bis 71 m², 1. OG - DG
Wohnfläche insgesamt:754 m²
Abgeschlossenheitsbescheinigung für eine WEG -Teilung liegt vor,
erzielte Netto-Kaltmiete in 2025: 67.152 €
(vollvermietet)
entspricht einer Durchschnittsmiete von 7,42 €/m², Bandbreite von 6,40 €/m² bis 8,26 €/m²
Bei der letzten Vermietung zum 01.02.2025 wurden für die 3 ZW ohne Balkon ein Mietpreis von 8,26 €/m² erzielt.
Letzte Mieterhöhungen waren zum 01.10.2024.
Energieverbrauchsausweis vom 20.11.2025, 74,2 kWh/(m².a)
Energieklasse B
Grundstück:280 m²
Gemarkung:Erfurt-Mitte, Flur 127, Flurstück 67
Die Kernsanierung 1996/1997 umfasste folgende Maßnahmen:
•Erneuerung aller Ver- und Entsorgungsleitungen,
•Anbringen einer Wärmedämmung hofseitig 6 cm,
•Neugestaltung der Grundrisse,
•Erneuerung Türen,
•Elektrik,
•neue Gas-Zentralheizung,
•neuer Schornstein,
•Zementestrich im Keller,
•Gussasphalt in den Wohnungen,
•Dachgeschossausbau,
•komplett neuer Dachstuhl errichtet mit neuer Dacheindeckung,
•Dachflächenfenster,
•Holzbalkendecken untersucht und soweit erforderlich partiell ausgetauscht,
•alle Bäder verfügen über ein Wannenbad
•in den Küchen sind Anschlüsse für Waschmaschinen installiert,
•das Treppenhaus wurde mit einem Marmorbelag belegt,
•Sternverkabelung Fernsehkabel liegt vor und wird genutzt,
•Erneuerung der Fenster, Holzfenster mit Isolierverglasung K-Wert 1,3, Schallschutzklasse 2
•Errichtung 5 übereinanderliegenden Balkone,
•Fassade straßenseitig wurde gereinigt und schadhafte Stellen ausgebessert, zum Teil neu verputzt,
•Küchen, Bäder und Wohnungsflure sind gefliest,
•Zur Bemessung der Heizungsanlage und in deren Planung war ein Ingenieurbüro beauftragt.
Neuere Arbeiten
•Wohnungsbeläge in den Wohnungen überwiegend Laminat, in Whg.-Nr. 2 noch Teppichboden,
•Warmwasserspeicher wurde in 2021 erneuert,
•die Warmwasserzirkulationspumpe in 2020
•Speicherladepumpe in 2021
•Whg. Nr. 9 nur 1 DFF, erneuert im Februar 2017
•Whg. Nr. 10 2 DFF, 1 DFF erneuert September 2023