Außenansicht
Ess-/Kochbereich
Küche
Essbereich
Wohnzimmer
Diele/Flur
Diele
Ankleide
Ankleide
Ess-/Kochbereich
Badezimmer
Dusche
Ess-/Kochbereich
Schlafzimmer
Schlafzimmer/Ankleide

Lichtdurchflutete Neubauwohnung mit Einbauküche und großem Balkon in Recklinghausen

Ankerstraße 7
45663 Recklinghausen – Recklinghausen
Nordrhein-Westfalen
635 €
Kaltmiete
53 m²
Wohnfläche
2
Zimmer
TraumImmo-ID: GW8URG6
Partner-ID: 412979
Partner-Objekt von: ohne-makler.net
Anbieter:
Angebot vom Eigentümer

Anbieter kontaktieren

Information

  • Typ: Dachgeschosswohnung
  • Etage: 2
  • Wohnfläche ca.: 53 m²
  • Bezugsfrei ab: 01.03.2026
  • Zimmer: 2
KellerKücheBalkon

  • Baujahr: 2020
  • Zustand: MintCondition
  • Heizart: CentralHeating
  • Badezimmer: 1.0
  • Heizkosten in Nebenkosten enthalten: True

Miete & Nebenkosten

Miete635 €
Nebenkosten215 € inkl. Heizkosten
Kaution1995€

Über dieses Traum-Apartment

Objektbeschreibung

Gönnen Sie sich mehr Komfort und Wohnqualität bei niedrigen Wohnnebenkosten!

Angeboten wird eine stilvolle Mietwohnung in Recklinghausen-Süd.
Die Wohnung kann mit einem funktionalen Grundriss und einer gehobenen Ausstattung inkl. Einbauküche sowie niedrigen Nebenkosten dank hohem Energieeffizienzstandard punkten.
Alle Räume verfügen über Fußbodenheizungen, die einzeln regulierbar sind. Des Weiteren sind sämtliche Rollläden elektrisch zu bedienen.
Die Mietwohnung ist mit einer dezentralen Lüftungsanlage mit Wärmerückgewinnung ausgestattet. Die Lüftungsanlage sorgt für eine Verbesserung der Luftqualität und Energetik.
Diese Dachgeschosswohnung verfügt über einen Balkon, welcher den Wohnraum erweitert und den Wohlfühlfaktor nachhaltig steigert.
Ein hochwertiger Personenaufzug und ein für die Wohneinheit zugeordneter Kellerraum sowie Gemeinschaftsräume runden das Angebot ab.

Diese Wohnung teilt sich wie folgt auf:
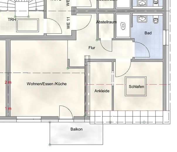
Großzügiger Wohn-/Essbereich mit offener Küche, 1 Schlafzimmer, 1 Ankleidezimmer, Bad mit ebenerdiger Dusche, Abstellraum, Flur mit Garderobe, Balkon


Ausstattung

Hochwertiges und nachhaltiges Wohnen:

•Kontrollierte Wohnraumlüftungsanlage mit Wärmerückgewinnung
•Fußbodenheizung in allen Räumen und elektrische Rollläden
•Einbauküche
•Hochwertige Fliesen und Design-Vinyl
•Niedrige Nebenkosten durch energiesparende Luft-/Wasser-Wärmepumpe
•Lichtdurchflutete Räume und erstklassige Planung
•Tageslichtbad mit ebenerdiger Dusche
•Gehobene Sanitärausstattung
•Markenaufzugsanlage
•Balkon
•Kellerabstell- und Gemeinschaftsräume


Sonstiges

Jeder Mietwohnung steht ein PKW-Stellplatz zur Verfügung. Für den Stellplatz wird eine zusätzliche Miete von monatlich 30,00 EUR berechnet.

Vermietung ohne Makler.

Hinweise:

Die gezeigten Fotos wurden vor dem Erstbezug aufgenommen und stammen aus verschiedenen Dachgeschosswohnungen, allerdings innerhalb desselben Gebäudes.


Lage

Lagebeschreibung

Das Mehrfamilienhaus liegt in ruhiger Lage an der Ankerstraße in Recklinghausen-Süd, in der Nähe des Rhein-Herne-Kanals. Recklinghausen-Süd bietet viele Einkaufsmöglichkeiten, Ärzte, Bildungsstätten, Kindergärten sowie Sport- und Freizeitmöglichkeiten. Zudem liegt das Objekt in der Nähe der Autobahn A43-Auffahrt Recklinghausen Hochlarmark.

ohne-makler.net
Anbieter:
Angebot vom Eigentümer

Anbieter kontaktieren