Lagebeschreibung
Eingang
Wohnzimmer mit Balkon
Wohnzimmer
Balkon
Wohnzimmer zur Küche
Einbauküche
Bad
Weiteres Zimmer
Eingangsbereich
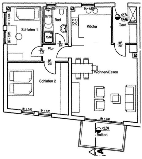
Grundriss
Grundriss

Barrierefreie 3-Z Wohnung im Wohnpark St. Michael, Dürresbachstraße in Hennef (Sieg)

Dürresbachstraße
53773 Hennef – Hennef (Sieg)
Nordrhein-Westfalen
295.000 €
Kaufpreis
82 m²
Wohnfläche
3
Zimmer
TraumImmo-ID: H5XV8GN
Partner-ID: 430287
Partner-Objekt von: ohne-makler.net
Anbieter:
Privat von Tom Gaertig

Anbieter kontaktieren

Information

  • Typ: Terrassenwohnung
  • Etage: 0
  • Wohnfläche ca.: 82 m²
  • Bezugsfrei ab: sofort
  • Zimmer: 3
KellerBarrierefreiGäste-WCKücheBalkon

  • Baujahr: 2005
  • Zustand: MintCondition
  • Heizart: FloorHeating
  • Brennart: Gas

Kaufpreis & Kosten

Kaufpreis295.000 €
Provisionkeine Provision für Käufer

Über dieses Traum-Apartment

Objektbeschreibung

Die angebotene 3-Zimmer-Wohnung steht mit viel Licht und Raum für exklusives Wohnen in
schöner Architektur. 
Charakteristisch sind der barrierefreie Zugang, die Nähe (ca. 100m) zum Zentrum von
Geistingen und eine Lage fern vom Straßenverkehr.
Die lichtdurchflutete Wohnung hat eine Größe von rund 82,00 m². 
Von der Diele aus erreicht man den großzügigen Wohn- Essbereich mit Balkon und angrenzender
offener Küche. 
Von einem Flur gelangen Sie in das großzügige Schlafzimmer, ein kleineres Schlafzimmer und das
Bad.
Vom Balkon kann man mit direktem Blick auf den Kirchturm der Kirche Sankt Michael fast zu jeder
Tageszeit die Sonne genießen. 
Eine moderne Aufteilung, helle und kommunikative Räume, der Südbalkon, sowie die gepflegte
Außenanlage sind die charakterisierenden Attribute dieser Wohnung.
Die Tiefgarage ist ebenfalls barrierefrei über einen Aufzug zu erreichen.


Ausstattung

Beheizt wird die gepflegte Wohnung über eine Gaszentralheizung als Fußbodenheizung. Für die
Böden in den Wohnräumen wurde ein Massiv-Parkett in Bambus, für Eingangsdiele, Bad und Küche
helle Bodenfliesen gewählt.
Bei den Fenstern handelt es sich um weiße Kunststoff-Fenster mit Isolierverglasung, alle Fenster
verfügen über Rollläden. Die Wohnung verfügt zusätzlich über einen elektrischen Türöffner mit
Gegensprechanlage.
Das Badezimmer ist mit hellen Sanitärobjekten ausgestattet, es verfügt über eine Dusche und eine
Badewanne sowie einen Handtuchwärmer und einen individuell angefertigten Spiegelschrank.
Das Haus besitzt einen Aufzug, sodass Sie problemlos und bequem von der Tiefgarage bis zur
Wohnung gelangen können. 
Zu der Wohnung ist ein Tiefgaragenstellplatz zugeordnet. 
Im Kellergeschoss befinden sich neben dem zur Wohnung gehörenden Kellerraum ein Fahrradraum
sowie ein Wasch- und Trockenraum.


Sonstiges

Wohnung kann möbeliert oder leer übernommen werden.


Lage

Lagebeschreibung

Die Wohnung liegt in Hennef im historischen Stadtteil Geistingen. Trotz der Anschrift
Dürresbachstraße, welche eine der Hauptverkehrsstraßen von Geistingen bildet, liegt das Haus
zurückgesetzt von der Straße in unmittelbarer Nähe zum Geistinger Platz und bietet somit einen
ruhigen, idyllischen, aber doch zentralen Standort. Bequem fußläufig zu erreichen sind dort
Geschäfte zur Nahversorgung wie auch Arztpraxen. Zur Innenstadt und zum Hennefer Bahnhof sind
es nur wenige Gehminuten mehr.
Hier wohnt man nicht nur mitten in der Stadt, Natur und Naherholung sind ebenfalls nur wenige
hundert Meter entfernt. Der Kurpark und das anliegende Kurhaus mit samt seinem Angebot an
Gesundheit, Wellness und Kultur und der Geistinger Wald sind schnell erreicht. 
Alle Schuleinrichtungen, Kindergärten sowie weitere Einkaufsmöglichkeiten erreicht man in kurzer
Zeit. Auch Freizeitmöglichkeiten wie z.B. Tennis- und Golfplätze, Reitställe und Wandergebiete
garantieren einen hohen Wohn- und Freizeitwert. 
Selbstverständlich gehören auch Arztpraxen, Ärztehäuser und Apotheken zum Erscheinungsbild der
Stadt Hennef. Durch eine gelungene Mischung aus städtischem Flair und ländlicher Idylle besticht
diese Region. 

In kurzer Zeit erreichen Sie Ihre Ziele durch die optimalen Anbindungen an die Autobahnen in alle
Richtungen und an die drei internationalen Flughäfen (Köln, Düsseldorf und Frankfurt). 
Vom Hennefer Bahnhof erreicht man mit der S-Bahn oder der Regional-Bahn die Städte Köln/Bonn,
Gießen und Siegen sowie die ICE Anbindung Siegburg/Bonn.

ohne-makler.net
Anbieter:
Privat von Tom Gaertig

Anbieter kontaktieren