| Kaufpreis | 486.000 € |
|---|---|
| Provision | keine Provision für Käufer |
Dieses Niedrigenergiehaus liegt idyllisch am Ortsrand mit Blick auf die Lahn und in die Natur. Es wurde von 2020 - 2023 nach ökologischen Gesichtspunkten hochwertig kernsaniert und modernisiert und ist damit auch für Allergiker geeignet. Das Haus ist in 2 voneinander unabhängige Wohneinheiten im EG und OG aufgeteilt, die sich auch problemlos zusammen nutzen lassen. Das EG ist barrierefrei und altersgerecht ausgestattet. Durch die großzügigen Fenster und Türen ist das Haus sehr hell und die hohen Räume sind lichtdurchflutet. Umgeben ist dieses Haus mit einem weitläufigen gepflegten Grundstück von 2316 qm mit Obstbäumen und -sträuchern, eigenem Brunnen und Gartenteich sowie einem mit viel Leidenschaft angelegten Gemüsegarten. Zusätzlich gehört zu diesem Objekt noch eine 1000 qm Lahnwiese, die momentan vom örtlichen Landwirt bewirtschaftet wird.
Genießen Sie von der weitläufigen Terrasse oder dem Balkon den atemberaubenden Ausblick und den Sonnenuntergang.
Die in sich abgeschlossene Wohneinheit mit Balkon im Obergeschoss ist momentan als Ferienwohnung ausgebaut als "kleine-Radoase" in Weilburg-Ahausen.
Im Garten ist ein kleiner Privatcampingplatz eingerichtet mit eigenem WC und Dusche und 3 Stellplätzen für Zelte. Durch die Randlage direkt am Lahnradweg wäre auch die Möglichkeit, hier im Sommer ein Gartencafe zu eröffnen. In dem Werkstattraum und in der Garage gibt es viel Platz für Ihre Hobbies.
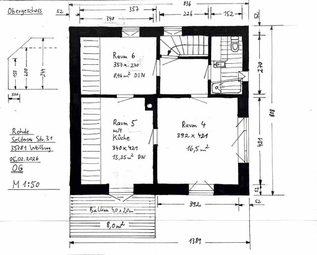
EG:
Treten Sie ein durch die dänische Haustür und lassen sich überraschen. Nach rechts gelangen Sie durch eine extra breite und hohe Tür direkt in die Küche. Hier empfängt Sie eine moderne vom Schreiner angefertigte Einbauküche, in der es sich wunderbar arbeiten lässt. Nach links gelangen Sie durch einen offenen Durchgang in das Esszimmer mit wunderbarem Ausblick in die Lahnaue. Hier steht auch der moderne Holzküchenofen, der zum Kochen und Backen geeignet ist. Durch die beiden 2-flügligen Terrassentüren gelangen Sie direkt auf die beiden großzügigen Terrassen. Nach links durch eine entkernte Fachwerkwand betreten Sie das helle Wohnzimmer, durch eine weitere Tür gelangen Sie wieder zurück in den Flur.
Von der Küche aus geradeaus durch eine Schiebetür betreten Sie einen kleinen Flur, der zu dem behindertengerecht gestaltetem Bad und nach links zu einem Zimmer mit Zugang zur Terrasse führt.
OG:
Die Treppe hoch in das OG betreten Sie durch eine Tür den Flur. Hier gehen drei Türen ab. Eine davon führt nach rechts in einen kleineren Raum, der gut als Büro oder Kinderzimmer geeignet ist. Da das OG als Ferienwohnung konzipiert ist (dies ist jederzeit änderbar), gelangen Sie durch eine weitere Tür in die große Wohnküche. Hier ist auch der Zugang zum Balkon mit einzigartiger Aussicht. Nach links öffnet sich durch die nächste Tür das große Schlafzimmer, von dem Sie wieder in den Flur und von dort zum Bad gelangen.
Keller:
Vom Flur im EG führt eine Treppe herab in 2 Räume, den Technikraum und den Vorratskeller.
Von der Gartenseite her zugänglich gibt es 2 weitere voneinander getrennte Räume. Einer wird als Sanitärraum mit Dusche, WC und Spüle für die Campinggäste genutzt. Der andere Raum ist momentan das Lager für alles, was mit dem Garten zu tun hat, Geräte und Vorräte.
Unter dem Anbau befindet sich ein ca. 22 qm großer Raum mit 2 Türen mit Zugang zum Garten und zum Hof. Hier war eine Töpferwerkstatt eingerichtet.
Dieses besondere Haus von 1914 wurde 2020 bis 2023 kernsaniert und auf den KfW-55-Energieeffizienzhaus-Standard gebracht. Es wurden nur ökologische Baustoffe verbaut und hat damit ein hervorragendes Raumklima. Der Lehmputz und die durch eine Wärmepumpe beheizte Deckenheizung tragen besonders dazu bei. Erneuert wurde praktisch alles: Fenster, Türen, Fußböden, Dämmung, komplette Elektro- und Sanitärinstallation, die Heizanlage und die Dachdeckung auf dem Haus und der Garage. Es ist eine PV-Balkonkraftwerk und eine Wasserenthärtungsanlage installiert.
Das EG ist barrierefrei mit besonders breiten Türen und Schiebetüren. Im Bad gibt es eine bodengleiche Dusche mit Reling. Auch das Waschbecken und WC sind vorbereitet für Haltegriffe. Die Waschmaschine könnte auch in dem kleinen Flur vor dem Bad stehen, sodass das Bad rollstuhlgerecht benutzt werden kann.
Der große Bauerngarten ist liebevoll angelegt mit Beeten, Hochbeeten und Beerensträuchern. Hier können Sie sich den Traum vom eigenen Gemüsegarten verwirklichen.
Auf einen Blick:
2 voneinander getrennte Wohneinheiten im EG und OG
Küche mit hochwertiger Einbauküche
2 Bäder, im EG rollstuhlgerecht
Wärmepumpe von Panasonic, extra flüsterleise
Decken- und Wandheizung, im Sommer auf Kühlung umstellbar
Holzküchenofen mit externer Frischluftzufuhr
komplett neue Elektroinstallation
Netzwerksleitungen in allen Räumen
vorbereitet für Glasfaseranschluss
380 V in Werkstatt und Garage
komplett neue Sanitärinstallation
Wasserenthärtungsanlage
Holz- und Fliesenfußböden
Lärchenholzfenster und -türen, teilweise auswärts öffnend
Innendämmung mit Hanf und Heraklith
Lehmputz
neue Dachdeckung und Dämmung
2 Terrassen EG
Pergola mit Beschattung
direkter Gartenzugang aus dem EG über eine Wendeltreppe
1 Balkon OG
terrassierter Bauerngarten mit Bruchsteinmauern
Gewächshaus
umzäunter Gartenteich
eigener Brunnen im Garten
Streuobstwiese mit einheimischen Gehölzen
Garage
Werkstattraum
Dieses schöne Haus liegt in Weilburg-Ahausen direkt am Lahnradweg und der Lahn, einem beliebten Kanuwanderfluss.
Durch die Randlage vom Dorf mitten in der Natur genießen Sie die weite Aussicht durch das Lahntal. Das Haus liegt unter der Vogelzuglinie der Kraniche, einem für Naturfreunde besonderem Erlebnis.
Der ÖNV ist sehr gut ausgebaut. Die Bushaltestelle in Ahausen ist ca. 400 m entfernt. Ca. 1,5 km entfernt befindet sich der Bahnhof Weilburg, wo Züge Richtung Limburg, Koblenz und Gießen zu erreichen sind. Der ICE-Bahnhof Limburg-Süd ist ca 30 km und 26 Autominuten entfernt mit Anschluss z.B. zum Frankfurt Flughafen 19min, nach Frankfurt Hbf 34min und nach Köln 44min. Die Mobilität auch im Alter garantiert die RufBus-Linie LM-50. Sie bietet die Möglichkeit, Geschäfte, Arztpraxen und das Krankenhaus zu erreichen.
Weilburg ist das Zentrum für die Schulen und Kindergärten in der Umgebung und bietet eine sehr gute Ärzteversorgung und ein Krankenhaus.
Alle Einkaufsmöglichkeiten sind vor Ort.
Weilburg ist ein staatlich anerkannter Luftkurort und bietet jede Menge Sport- und Erholungsmöglichkeiten. Ob Wandern, Radfahren, Kanufahren auf der Lahn, Golf in Braunfels, der Taunus und Westerwald bieten wunderbare Freizeitmöglichkeiten. Das Oberlahnbad direkt an der Lahn hat ganzjährig geöffnet mit einem angenehmen Wellnessbereich mit Saunalandschaft. Die bekannte Emser Therme ist ca. 50 Autominuten entfernt
Kulturell hat Weilburg auch Einiges zu bieten. Überregional bekannt ist die kleine Residenzstadt durch die Schlosskonzerte im Sommer. Die Kultur- und Kleinkunstbühne LindenCult bietet Musik und Kleinkunstveranstaltungen. Das Delphi Filmtheater ist das örtliche Kino und veranstaltet auch im Sommer Open-Air-Vorführungen. Im Winter gibt es viele Konzerte wie die „Alte Musik“ in der Schlosskirche. Das Rosenhang Museum für moderne Kunst ist berühmt für ihre hochkarätigen Kunstausststellungen. Die Kubacher Kristallhöhle fasziniert mit Höhlenführungen in 70 mTiefe.
Durch den Tourismus hält Weilburg eine hervorragende internationale Gastronomie bereit.