Lager-/Produktionshalle mit optimaler Erreichbarkeit (Kreuz B428/B65)

Meißener Dorfstraße 35
32423 Minden
Nordrhein-Westfalen
TraumImmo-ID: HCKD2PE
Partner-ID: 400585
Partner-Objekt von: ohne-makler.net
Anbieter:
Angebot von Enterprise Investing GmbH

Anbieter kontaktieren

Information

  • Typ: Halle
  • Etage: 0
  • Bezugsfrei ab: Nach Vereinbarung

  • Zustand: WellKept
  • Heizart: CentralHeating
  • Stockwerke: 1

Miete & Nebenkosten

Provisionkeine Provision für Käufer

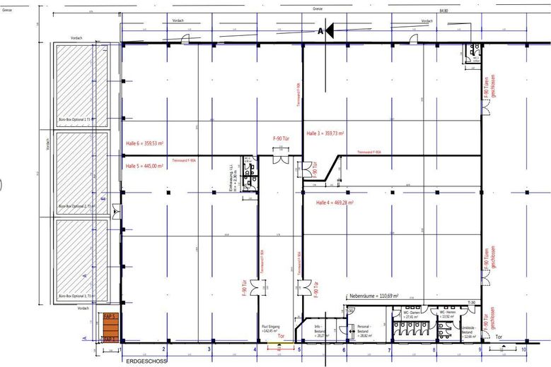
Über dieses Traum-Industrieobjekt

Objektbeschreibung

Zur Vermietung steht ein vielseitig nutzbares Gewerbeobjekt in attraktiver Lage von Minden.
Die Liegenschaft eignet sich ideal für produzierendes Gewerbe, Lagerung, Handwerksbetriebe oder als Logistikstandort.


Ausstattung

Aktuell stehen vier Hallenabschnitte zur Vermietung mit folgender Ausstattung:

- 370-500 m²
- Sanitäranlagen
- Büroräume
- Sektionaltor
- ausreichend Parkplätze vor Ort


Sonstiges

Bei weiteren Fragen und einem Besichtigungstermin stehen wir Ihnen gerne unter folgender Telefonnummer zur Verfügung: 015735440988


Lage

Lagebeschreibung

Die Immobilie befindet sich in der Meißener Dorfstraße 35, in einem gut angebundenen Gewerbegebiet am Stadtrand von Minden. Das Objekt liegt direkt an der Kreuzung der B 65 und B 482, und hat dadurch eine exzellente Anbindung nach Minden (3 Minuten), Porta Westfalica (8 Minuten), Bad Oeynhausen (18 Minuten), Bückeburg (10 Minuten). Durch die nähe zur Autobahn A2 (10 Minuten) und A30 (14 Minuten) haben Sie hier auch eine schnelle Anbindung an das überregionale Verkehrsnetz.

Auch der Anschluss an den öffentlichen Nahverkehr ist gegeben, wodurch Mitarbeiter und Kunden die Immobilie gut erreichen können.

ohne-makler.net
Anbieter:
Angebot von Enterprise Investing GmbH

Anbieter kontaktieren