Grundriss Ladenflächen 01
Grundriss Ladenflächen 01
Grundriss Ladenflächen 02
Hauptstraße
Gebäudeecke Einkaufsstraße
Innenraum
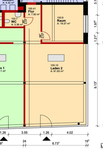
Grundriss Ladenflächen 02
Innenraum
Hauptstraße Ladenfront

Verkauf- und Ladenfläche an Einkaufsstraße, Eckgebäude, Hauptstraße 49509 Recke

Hauptstraße 3-5
49509 Recke – Recke
Nordrhein-Westfalen
750 €
Kaltmiete
TraumImmo-ID: HFCCEUS
Partner-ID: 418562
Partner-Objekt von: ohne-makler.net
Anbieter:
Privat von Malte Flatau

Anbieter kontaktieren

Information

  • Typ: Laden
  • Etage: 0
  • Bezugsfrei ab: sofort
KellerBarrierefreiGäste-WC

  • Baujahr: 2007
  • Zustand: Refurbished
  • Heizart: CentralHeating
  • Brennart: Gas
  • Stockwerke: 1

Miete & Nebenkosten

Miete750 €
Nebenkosten200 €
Heizkosten100 €
Kaution2200€
Provisionkeine Provision für Käufer

Über diesen Traum-Laden

Objektbeschreibung

Die Verkaufsfläche befindet sich im Erdgeschoss direkt an der Hauptstraße in Recke. Die Fensterfront der Verkaufsfläche liegt auf der Gebäudeecke entlang der Verkaufsstraße. Der Haupteingang ebenfalls.

Im hinteren Bereich befinden sich Nebenräume für Personal, WC-Anlage und Anschlüsse für eine Küchenzeile.

Ideal für eine neue Büro-, Verkaufs-, oder Praxisfläche.

Eine Verbindung, Zusammenlegung mit der benachbarten Ladenflächen möglich.


Ausstattung

Die Verkaufsfläche ist frei von Innenwänden und öffnet sich mit einer Glasfassade zur Verkaufsstraße.
Die Räume sind Tageslicht hell und im Farbton weiß gestrichen. Die Nebenräume ebenfalls.

Im Keller befindet sich ein zusätzlicher Lagerraum.


Lage

Lagebeschreibung

Direkt an der Einkaufsstraße im Zentrum von Recke.
In direkter Nachbarschaft befinden sich weitere Verkaufsläden.

ohne-makler.net
Anbieter:
Privat von Malte Flatau

Anbieter kontaktieren