Außen Ansicht
Außen Ansicht
Wohnzimmer OG
Bad OG
Küche OG
Zimmer DG
Wohn/Esszimmer DG
Küche DG
Bad-EG
Flus-EG
Küche-EG
Zimmer-EG

3-Familienhaus mit 6 % Rendite & Denkmal-AfA

Die vollständige Adresse erhalten Sie vom Anbieter
74585 Rot am See – Rot am See
Baden-Württemberg
330.000 €
Kaufpreis
206 m²
Wohnfläche
9
Zimmer
TraumImmo-ID: HVFSXHT
Partner-ID: 432997
Partner-Objekt von: ohne-makler.net
Anbieter:
Privat von Mario Dambacher

Anbieter kontaktieren

Information

  • Typ: Mehrfamilienhaus
  • Wohnfläche ca.: 206 m²
  • Bezugsfrei ab: Nach Vereinbarung
  • Zimmer: 9
KellerKücheGarten

  • Grundstücksfläche: 564.0
  • Baujahr: 1747
  • Zustand: WellKept
  • Heizart: CentralHeating
  • Brennart: Oil
  • Stockwerke: 3
  • Nutzfläche: 55.0
  • Badezimmer: 3.0

Kaufpreis & Kosten

Kaufpreis330.000 €
Provisionkeine Provision für Käufer

Über dieses Traum-Haus

Objektbeschreibung

Historisches 3-Familienhaus mit Denkmal-AfA
Ehemaliges Pfarrhaus | 74585 Rot am See
Eine Kapitalanlage mit Geschichte – und Substanz

Zum Verkauf steht eines der prägendsten Gebäude von Rot am See:
ein denkmalgeschütztes ehemaliges Pfarrhaus aus dem Jahr 1747.

Solche Objekte kommen selten auf den Markt.

Das Haus wurde 2002 umfassend und hochwertig saniert und in drei separate Wohneinheiten umgebaut. Es verbindet historischen Charakter mit modernisiertem Wohnstandard – und bietet gleichzeitig erhebliche steuerliche Vorteile durch den Denkmalschutz.

Eine Immobilie für Investoren, die nicht nur Quadratmeter kaufen, sondern Substanz.

Die Eckdaten auf einen Blick

Baujahr: ca. 1747

Kernsanierung: 2002

Wohnfläche gesamt: ca. 206 m²

Grundstück: ca. 564 m²

3 abgeschlossene Wohneinheiten

3 Außenstellplätze

Ölzentralheizung (Brenner 2012 erneuert)

Gewölbekeller

Denkmalgeschütztes Gebäude (keine Energieausweispflicht)

Voll vermietet

Aktuelle Mieteinnahmen

Die aktuelle Kaltmiete beträgt:

1.700 € monatlich
= 20.400 € jährlich

Das Objekt ist langfristig vermietet und bietet sofort laufenden Cashflow.

Wohnungsaufteilung
Erdgeschoss – ca. 80 m²

Wohnküche, Wohnzimmer, 2 Schlafzimmer, Bad, Terrasse

Obergeschoss – ca. 75 m²

Küche, Wohnzimmer, 2 Schlafzimmer, Bad

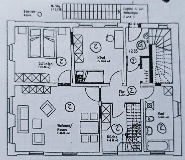
Dachgeschoss – ca. 51 m²

Küche, Wohnzimmer, 2 Schlafzimmer, Bad

Die Einheiten sind funktional geschnitten und gut vermietbar.
Durch die Aufteilung eignet sich das Objekt sowohl als klassische Kapitalanlage als auch perspektivisch für Eigennutzer mit Teilvermietung.
Sanierungsstand – Substanz, die überzeugt

Im Rahmen der Kernsanierung 2002 wurden u. a.:

Elektrik erneuert

Wasser- und Abwasserleitungen neu verlegt

Dach gedämmt

Fenster in Abstimmung mit dem Denkmalschutz erneuert

Heizungsanlage modernisiert

Bäder erneuert

Bodenaufbauten mit Trittschalldämmung erstellt

Fassade überarbeitet

Verwendet wurden hochwertige Materialien wie Echtholzparkett, Steinfliesen und massive Holzelemente.

Die Immobilie präsentiert sich gepflegt und technisch solide.

Der entscheidende Vorteil: Denkmal-AfA

Für Kapitalanleger liegt der eigentliche Hebel in der steuerlichen Struktur.

Bei denkmalgeschützten Immobilien können anerkannte Sanierungskosten gemäß § 7i EStG abgeschrieben werden:

8 Jahre jeweils 9 %

4 Jahre jeweils 7 %

insgesamt 100 % der anerkannten Sanierungskosten über 12 Jahre

Zusätzlich zur linearen Gebäude-AfA.

Gerade für Investoren mit hohem Steuersatz entsteht hier ein erheblicher steuerlicher Vorteil – insbesondere in den ersten 12 Jahren.


Lage

Zentrale Lage in Rot am See
Süd-West-Ausrichtung
Gewachsene Wohnstruktur
Solide Vermietbarkeit

Ein ruhiger Standort mit langfristiger Perspektive.


Ausstattung

Ausstattung & Dokumentation

Das Gebäude wurde im Jahr 2002 umfassend kernsaniert und verbindet historischen Charme mit zeitgemäßem Wohnkomfort.

Die Ausstattung umfasst unter anderem:

Echtholzparkett in Wohn- und Schlafräumen

Steinfliesen im Küchenbereich

Drei Einbauküchen (im Kaufpreis enthalten)

Modernisierte Bäder mit Dusche und Badewanne

Doppelisolierverglaste Holzfenster

Gedämmtes Dach

Erneuerte Elektrik sowie Wasser- und Abwasserleitungen

Ölzentralheizung (Brenner 2012 erneuert)

Gewölbekeller mit zusätzlicher Nutzfläche

Drei Außenstellplätze

Die Immobilie präsentiert sich gepflegt und technisch solide.

Zusätzlich liegt ein umfassender Sanierungsfahrplan inklusive Dokumentation der durchgeführten Maßnahmen vor. Dieser bietet Transparenz über den Modernisierungsstand und schafft Planungssicherheit für zukünftige Eigentümer.


Lage

Lagebeschreibung

Die Immobilie befindet sich in zentraler Lage von Rot am See, einer gewachsenen Gemeinde im Landkreis Schwäbisch Hall.

Durch die zentrale Position in der Hauptstraße sind Einkaufsmöglichkeiten des täglichen Bedarfs, Bäcker, Banken, Gastronomie sowie ärztliche Versorgung bequem erreichbar. Kindergärten und eine Gemeinschaftsschule befinden sich ebenfalls direkt im Ort – ein klarer Vorteil für die Vermietbarkeit.

Rot am See verfügt über einen eigenen Bahnhof mit Anbindung Richtung Crailsheim und Schwäbisch Hall. Über die B290 besteht eine gute regionale Verkehrsanbindung, wodurch auch Pendler den Standort schätzen.

Die Umgebung ist geprägt von ländlicher Ruhe, gewachsener Nachbarschaft und naturnaher Lebensqualität – gleichzeitig mit solider Grundinfrastruktur.

Diese Kombination aus funktionierender Nahversorgung, verkehrlicher Anbindung und überschaubarer Gemeindestruktur sorgt für eine stabile Nachfrage am Mietmarkt.

ohne-makler.net
Anbieter:
Privat von Mario Dambacher

Anbieter kontaktieren