3 Zi.Whg. mit EBK und Terrasse am Rande des Dorfkerns Alt Marzahn

Die vollständige Adresse erhalten Sie vom Anbieter
12685 Berlin – Marzahn
Berlin
1300 €
Kaltmiete
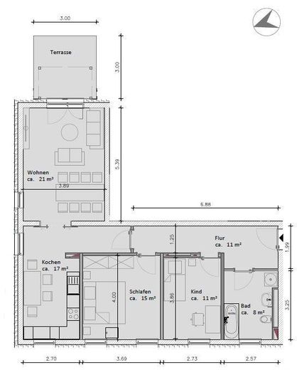
86 m²
Wohnfläche
3
Zimmer
TraumImmo-ID: J67QA7W
Partner-ID: 426034
Partner-Objekt von: ohne-makler.net
Anbieter:
Angebot von D.Hoffmann

Anbieter kontaktieren

Information

  • Typ: Erdgeschosswohnung
  • Etage: 0
  • Wohnfläche ca.: 86 m²
  • Bezugsfrei ab: 01.05.2026
  • Zimmer: 3
KellerBarrierefreiGäste-WCKüche

  • Baujahr: 2023
  • Zustand: WellKept
  • Heizart: CentralHeating
  • Brennart: Geothermal
  • Stockwerke: 3
  • Badezimmer: 1.0
  • Heizkosten in Nebenkosten enthalten: True

Miete & Nebenkosten

Miete1300 €
Nebenkosten300 € inkl. Heizkosten
Heizkosten150 €
Kaution3900€

Über dieses Traum-Apartment

Objektbeschreibung

Das moderne Mehrfamilienhaus bietet viel Platz für die ganze Familie. Alle Etagen, auch der Keller, sind per Aufzug erreichbar. Zu der Wohnung gehört ein Keller. Auf dem Innenhof und im Keller befinden sich Fahrradstellplätze. Das Wohnumfeld ist aufwendig gestaltet mit einem Spielplatz und Erholungsmöglichkeiten, sowie großzügigen Grünflächen.


Ausstattung

- Lage im Erdgeschoss, aber nicht ganz tief
- Aufzug
- Elektrische Rollläden in allen Zimmern
- Wärmepumpe (Energie aus Erdreich m. Strom betrieben)
- Fußbodenheizung
- Einzelraumregler
- Videosprechanlage
- Komfort Fußbodenbelag in Wohnräume und Küche
- Badezimmer (Badewanne und Dusche getrennt) mit Fenster, Boden- und Wandfliesen und Waschmaschinenanschluss
- Handtuchheizkörper zusätzlich zur FB-Heizung
- Wände und Decken geputzt, weiß
- Küche: Einbauküche mit Spüle, Marken-Einbauherd, Cerankochfeld, Dunstabzug
- Mieterkeller mit Steckdose
- Fahrradkeller


Sonstiges

Die Wohnung kann frühestens ab Mai 2026 vermietet werden. Die genaue Anschrift wird erst zu einem späteren Zeitpunkt veröffentlicht.

Alle Angaben in diesem Exposé beruhen auf Angaben des Eigentümers und sind ohne Gewähr.
Sie dienen ausschließlich als Information und Nachweis für das beschriebene Objekt.
Es wird keine Gewähr für die Richtigkeit, Vollständigkeit, Aktualität und Grundrissangaben gemacht.
Vorbehalten sind Irrtum und Zwischenvermietung.
Bewerbungen bitte mit beiliegender Mieterselbstauskunft.

Bischoff Grundbesitz
GmbH & Co KG
Niebergallstr. 4
12557 Berlin

Sitz: Berlin
Amtsgericht:
Berlin-Charlottenburg
HRB 50326 A

Steuer-Nr.: 37/142/02058

Persönlich haftende Gesellschafterin:
Bischoff Grundbesitz
Geschäftsführungs GmbH
Amtsgericht:
Berlin-Charlottenburg
HRB 163444 B
Geschäftsführer:
Dipl.-Wi.Jur. (FH) André Bischoff


Lage

Lagebeschreibung

Das Wohnobjekt liegt am Rande des alten Dorfkerns Marzahn und ist fußläufig an den öffentlichen Nahverkehr erreichbar.

ohne-makler.net
Anbieter:
Angebot von D.Hoffmann

Anbieter kontaktieren