Wunderschöne DHH in Müllheim als großes EFH oder als 2 FMH zu nutzen.

Die vollständige Adresse erhalten Sie vom Anbieter
79379 Müllheim – Müllheim im Markgräflerland
Baden-Württemberg
995.000 €
Kaufpreis
172 m²
Wohnfläche
6
Zimmer
TraumImmo-ID: J8W79HN
Partner-ID: 429764
Partner-Objekt von: ohne-makler.net
Anbieter:
Privat von Henning Schriefer

Anbieter kontaktieren

Information

  • Typ: Doppelhaushälfte
  • Wohnfläche ca.: 172 m²
  • Bezugsfrei ab: sofort
  • Zimmer: 6
KellerGäste-WCKücheBalkonGarten

  • Grundstücksfläche: 404.0
  • Baujahr: 1905
  • Zustand: FullyRenovated
  • Heizart: CentralHeating
  • Brennart: Gas
  • Stockwerke: 3
  • Nutzfläche: 160.0
  • Badezimmer: 2.0

Kaufpreis & Kosten

Kaufpreis995.000 €
Provisionkeine Provision für Käufer

Über dieses Traum-Haus

Objektbeschreibung

Hier verkaufen wir eine frisch renovierte Doppelhaushälfte mit 2 wunderschönen hellen 3 Zimmer Wohnungen. Diese können separat als auch als eine große Wohnung genutzt werden. Sind also für Freiberuflicher und oder 2 Generationswohnen optimal geeignet.
Beide Wohnungen sind neu renoviert und bieten eine Raumhöhe von 2,93 Meter. Die Bäder sind mit Dusche und Badewanne sowie mit neuen W-LAN Spiegeln ausgestattet.
Zudem befinden sich halbgeschossig je ein Gäste WC. Von der oberen Wohnung erreicht man das Dachgeschoss, welches komplett gedämmt und renoviert worden ist. Diese Ebene bietet Ihnen einen wunderschönen Blick ins Grüne und ist als Nutzfläche deklariert. Alles wurde neu abgeschliffen und in Weiß Seidenmatt in bis zu 8 Gängen neu lackiert. Ebenfalls wurde ein neuer Laminatboden in jedes Zimmer und in das Dachgeschoss gelegt. Strom, Wasser, Heizkörper und Leitungen wurden zwischen 2007 und 2009 bereits ausgetauscht das Dachgeschoss wurde ebenfalls in diesem Zeitraum komplett neu aufgebaut.
Die Treppen vom Hochparterre zum ersten Stockwerk sowie vom ersten Stock zum Dachgeschoss sind mit LED-Stripes ausgestattet.
Im Kellergeschoss befindet sich ein Fitnessraum, eine Waschküche, ein Heizungskeller sowie 2 Kellerräume.
Der gesamte Keller ist gefliest und hat eine große Menge an Regalen und Schränke zum Einlagern.
Das Grundstück ist 404 m2 groß und sehr gut geschnitten. So das hier jeder seinen Platz findet und zu Ruhe kommen kann.
Im 2 geschössigen Schöpf befinden sich folgende Räumlichkeiten:
Gartenraum, Werkstatt, Überdachte Terrasse, Mülltonnenraum. Zudem ist der gesamte erste Stock voll als Lagerfläche zu nutzen.
Der sehr schön angelegte Garten mit den vielen schönen Rosen ist ein Glanzstück. Alle Dachrinnen sind letztes Jahr gereinigt worden. Alles ist in einem ordentlichen Zustand so dass man auch draußen genießen kann als arbeiten zu müssen.
Wer ein besonderes, sofort verfügbares Haus in Müllheim sucht, dem wird hier sicherlich das richtige Objekt angeboten. Wir verkaufen von Privat und ohne Immobilienmakler.
Die Wohnflächenberechnung sowie der Energieausweis liegen vor.
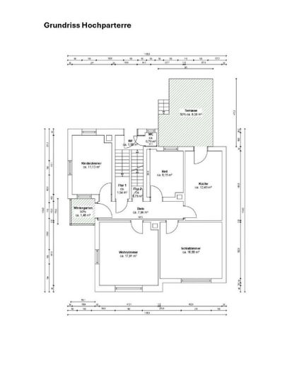
Die Wohnung im Hochparterre ist 91,57 m2 groß .
Die Wohnung im Obergeschoss , ist ohne Dachgeschoss, 79,66 m2 groß.
Das Kellergeschoss ist 72,84m2 groß
Das Dachgeschoss ist 57,19 m2 groß
Gesamt kalkuliert haben wir circa 172 m2 Wohnfläche und über 160m2 Nutzfläche.


Ausstattung

Das Haus wurde für den Verkauf frisch renoviert. Die Immobilie ist hochwertig ausgestattet und sicherlich so in Müllheim nicht wieder zu kaufen.


Lage

Lagebeschreibung

Das Haus steht in der Hebelstrasse in Müllheim. Schulen, Aldi, Bushaltestellen und die Fußgängerzone sind in wenigen Minuten, zu Fuß, zu erreichen.

ohne-makler.net
Anbieter:
Privat von Henning Schriefer

Anbieter kontaktieren