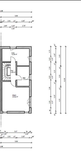
EG
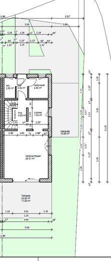
OG
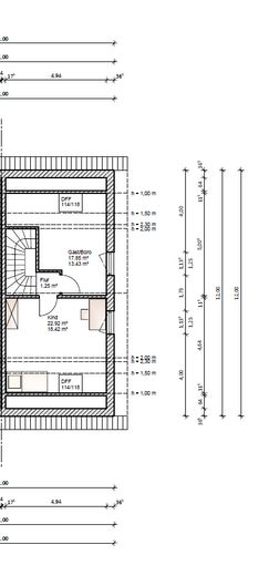
DG

✨ Modern, energieeffizient, einziehen & wohlfühlen: Doppelhaushälfte mit Garten ✨

Talstraße 1
57539 Roth – Oettershagen
Rheinland-Pfalz
1500 €
Kaltmiete
140 m²
Wohnfläche
5
Zimmer
TraumImmo-ID: JM4NU4W
Partner-ID: 390260
Partner-Objekt von: ohne-makler.net
Anbieter:
Angebot von Hauszeit Immobiliendienstleistung

Mobil:
0172 8786986

Anbieter kontaktieren

Information

  • Typ: Doppelhaushälfte
  • Wohnfläche ca.: 140 m²
  • Bezugsfrei ab: 01.12.2025
  • Zimmer: 5
Gäste-WCGarten

  • Grundstücksfläche: 300.0
  • Baujahr: 2025
  • Zustand: MintCondition
  • Heizart: CentralHeating
  • Brennart: Electricity
  • Stockwerke: 3
  • Badezimmer: 2.0
  • Heizkosten in Nebenkosten enthalten: True

Miete & Nebenkosten

Miete1500 €
Nebenkosten180 € inkl. Heizkosten
Kaution3000€

Über dieses Traum-Haus

Objektbeschreibung

Willkommen in Ihrem neuen Zuhause in Roth/Wissen – einer modernen Doppelhaushälfte aus dem Baujahr 2024, die höchsten Ansprüchen an Komfort, Design und Energieeffizienz gerecht wird.

Das Haus beeindruckt bereits beim Betreten durch seine lichtdurchfluteten Räume, die dank großzügiger Fensterflächen ein besonders freundliches Wohnambiente schaffen.

Der offen gestaltete Wohn- und Essbereich bildet das Herzstück der Immobilie und bietet direkten Zugang in den privaten Garten auf zwei Ebenen – ideal für entspannte Stunden im Freien oder gesellige Abende mit Familie und Freunden.

Für zusätzlichen Komfort sorgen ein separates Gäste-WC im Erdgeschoss sowie ein stilvolles Badezimmer mit bodentiefer Walk-In-Dusche und moderner Ausstattung im Obergeschoss.

Auch technisch ist die Immobilie auf dem neuesten Stand: Eine Luft-Wärmepumpe in Kombination mit Fußbodenheizung garantiert effizientes Heizen, während elektrische Rollläden höchsten Bedienkomfort und Sicherheit bieten.

Abgerundet wird dieses attraktive Angebot durch zwei Stellplätze direkt am Haus sowie eine hochwertige Gesamtausstattung, die modernes Wohnen perfekt widerspiegelt.

Wir freuen uns auf Ihre Anfrage und darauf, Ihnen dieses besondere Zuhause persönlich vorzustellen.


Ausstattung

🏡 Neubau
🌱 Energieeffiziente Bauweise nach modernsten Standards
🔥 Luft-Wärmepumpe mit Fußbodenheizung
⚡ Elektrische Rollläden in allen Wohnräumen
🌞 Helle Räume durch große Fensterflächen
🚻 Gäste-WC im Erdgeschoss
🌿 Garten auf zwei Ebenen mit Terrasse
🅿️ Zwei Stellplätze direkt am Haus
🪵 Hochwertige Bodenbeläge in zeitloser Optik
📐 Moderne Grundrissgestaltung mit klarer Raumaufteilung


Sonstiges

Besichtigungstermine werden ausschließlich nach vorheriger Ausfüllung einer Mieterselbstauskunft terminiert. Dieser Schutzmechanismus dient dazu, Ihnen eine angenehme und sichere Besichtigung zu gewährleisten.

Wir möchten darauf hinweisen, dass trotz sorgfältiger Überprüfung und größter Genauigkeit bei der Erstellung dieser Beschreibung, Tippfehler oder irrtümliche Informationen nicht ausgeschlossen werden können.

Für die Richtigkeit und Vollständigkeit der Angaben übernehmen wir keine Gewähr.

https://www.hauszeit-immobiliendienstleistung.de/impressum


Lage

Lagebeschreibung

Die Doppelhaushälfte befindet sich in Roth, einem Ortsteil der Verbandsgemeinde Hamm/Sieg im Landkreis Altenkirchen. Roth liegt nur ca. 3 km von der Stadt Wissen entfernt und verbindet die Vorzüge einer ruhigen Wohnlage im Grünen mit der Nähe zu einer ausgezeichneten Infrastruktur.

Über die Bundesstraßen B 256 und B 62 bestehen sehr gute Verkehrsanbindungen in Richtung Koblenz, Siegen und ins Thüringer Land. Besonders hervorzuheben ist der Bahnhof in Wissen, der nur wenige Minuten entfernt liegt und direkte Zugverbindungen in Richtung Köln, Bonn, Siegen und Au (Sieg) bietet. Damit ist die Immobilie auch für Berufspendler äußerst attraktiv.

In Wissen finden sich zudem vielfältige Einkaufsmöglichkeiten, Kindergärten, Schulen, Ärzte, Gastronomie und Freizeitangebote, sodass alle Dinge des täglichen Bedarfs in unmittelbarer Nähe abgedeckt sind.

Die naturnahe Umgebung rund um Roth lädt zu Spaziergängen, Radtouren und Outdoor-Aktivitäten ein – ideal für alle, die ruhiges Wohnen und Naturverbundenheit schätzen, ohne auf urbane Annehmlichkeiten verzichten zu müssen.

ohne-makler.net
Anbieter:
Angebot von Hauszeit Immobiliendienstleistung

Mobil:
0172 8786986

Anbieter kontaktieren