Nähe Kurgebiet:Gepflegtes 1-Zimmer- Appartment - Erdgeschoss

Bad Füssinger Str. 22
94148 Kirchham – Kirchham
Bayern
77.000 €
Kaufpreis
32 m²
Wohnfläche
1
Zimmer
TraumImmo-ID: KHJERYG
Partner-ID: 412501
Partner-Objekt von: ohne-makler.net
Anbieter:
Privat von Peter Vitzthum

Anbieter kontaktieren

Information

  • Typ: Erdgeschosswohnung
  • Wohnfläche ca.: 32 m²
  • Bezugsfrei ab: Nach Vereinbarung
  • Zimmer: 1
Küche

  • Baujahr: 1985
  • Zustand: WellKept
  • Heizart: CentralHeating
  • Brennart: Gas

Kaufpreis & Kosten

Kaufpreis77.000 €
Provisionkeine Provision für Käufer

Über dieses Traum-Apartment

Objektbeschreibung

In toller Lage: Vollmöbiliertes 1-Zimmer-
Appartment Aktuell gut vermietet:
- Baujahr Gebäude: 1984
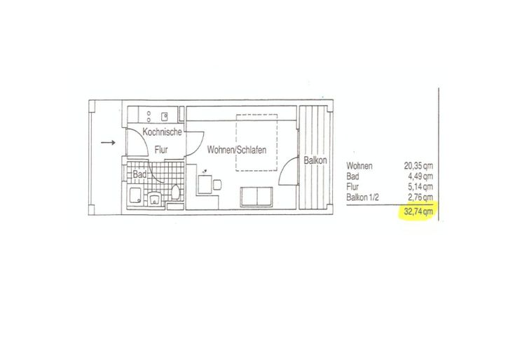
- Wfl. ca. 32,74 m²
- Baujahr Heizung: 1984
- Gaszentralheizung
- Aufteilung: Diele/Küche, Wohnen/Schlafen/Essen,
Badezimmer, Balkon
- neuwertige Einbauküche
- gesamtes Inventar ist im Kaufpreis includiert
- Einzel-Schrankbett
- 1 kleines Abstellabteil im Dachboden
- 1 Tiefgaragenstellplatz
- 1 Fahrradabstellraum sowie 1 Waschraum steht
der Wohngemeinschaft gesamt zur Verfügung


Lage

ohne-makler.net
Anbieter:
Privat von Peter Vitzthum

Anbieter kontaktieren