Visualiserungsmöglichkeit
Visualiserungsmöglichkeit
Visualiserungsmöglichkeit
Visualiserungsmöglichkeit

Flughafen­nahes Gewerbegrundstück mit B-Plan – provisionsfrei – im Share Deal 65 €/m²

Wellerstrasse 18
04435 Schkeudtiz – Freiroda
Sachsen
1.300.000 €
Kaufpreis
TraumImmo-ID: KJP2S6W
Partner-ID: 429743
Partner-Objekt von: ohne-makler.net
Anbieter:
Angebot vom Eigentümer

Mobil:
0163 5152057

Anbieter kontaktieren

Information

    • Bezugsfrei ab: Nach Vereinbarung

    • Grundstücksfläche: 20000.0
    • Gewerblicher Verwendungstyp: Trade

    Kaufpreis & Kosten

    Kaufpreis1.300.000 €
    Provisionkeine Provision für Käufer

    Über dieses Traum-Gewerbegrundstück

    Objektbeschreibung

    Direkt vom Eigentümer wird ein ca. 20.000 m² großes Gewerbegrundstück mit B-Plan und sehr guter Verkehrsanbindung nahe dem Flughafen Leipzig/Halle und Autobahndrehkreuz angeboten.

    Das Grundstück liegt in einem gewerblich geprägten Umfeld und eignet sich für unterschiedliche Nutzungen mit Bezug zu Logistik, Dienstleistung oder Beherbergung.

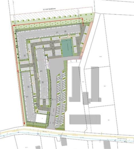
    Ein rechtskräftiger Bebauungsplan liegt vor und ermöglicht eine zeitnahe bauliche Umsetzung. Gemäß den Festsetzungen des Bebauungsplans ist eine Bebauung mit einer Bruttogrundfläche (BGF) von bis zu ca. 20.000 m² zulässig. Die Grundflächenzahl (GRZ) beträgt 0,8. Die zulässige Gebäudehöhe liegt – abhängig von der konkreten Planung – zwischen 13 und 15 Metern.

    Gemäß § 8 Abs. 1 der Baunutzungsverordnung (BauNVO) sind unter anderem folgende Nutzungen zulässig:

    Gewerbebetriebe aller Art

    - Lagerhäuser und Lagerplätze
    - Geschäfts-, Büro- und Verwaltungsgebäude
    - Öffentliche Betriebe
    - Tankstellen sowie Sporteinrichtungen
    - Hotel und Boardinghaus, vergleichbare Beherbergungskonzepte

    Etwai­ge beigefügte Visualisierungen dienen ausschließlich der Darstellung möglicher Bebauungsvarianten und stellen keine verbindliche Planung dar.

    Der Verkauf erfolgt im Rahmen eines Share Deals. Der Kaufpreis beträgt 65 €/m².

    Für weiterführende Informationen oder zur Abstimmung eines Besichtigungstermins stehen wir Ihnen gerne zur Verfügung.


    Sonstiges

    Für alle Fragen oder weitere Informationen stehe ich Ihnen gerne zur Verfügung. Sie können mich von Montag bis Freitag zwischen 9:00 Uhr und 18:00 Uhr telefonisch erreichen. Wenn es Ihnen lieber ist, können Sie mir auch gerne per WhatsApp eine Nachricht senden. Meine Nummer lautet 0163-5152057.
    Alternativ können Sie mir auch eine E-Mail an hildebrand@gpm.immobi­­­­­­­li­­­­­­­­­­­­en schreiben.

    Falls Sie direkt mit dem Eigentümer sprechen möchten zum Beispiel Kaufpreisverhandlungen, können Sie direkt mit dem Eigentümer Herrn Peter Jugl unter folgender Telefonnummer 01709848571 erreichen oder eine Whatsapp senden.

    Impressum

    G­­­­­­­­P­­­­­­­­­­­­M GmbH
    Hafenstraße 12
    04416 Markkleeberg

    Vertre­t­e­n­ durch:
    Peter Jugl

    Registereintrag:
    Eing­­­­­­­­­­­­­­­­­­­­etragen im Handelsregister.
    Registergeri­­­­­­­­­­­­­­­­­­­­cht: Amtsgericht Leipzig
    Registernummer: HRB 21518

    Verantwortlich für den Inhalt (gem. § 55 Abs. 2 RStV):
    Peter Jugl


    Lage

    Lagebeschreibung

    Der Standort liegt in einem etablierten Gewerbeumfeld mit unmittelbarer Nähe zu einem internationalen Verkehrsflughafen (ca. 2 km). Zwei überregionale Autobahnachsen sind in ca. 300 m erreichbar; ergänzend besteht Anbindung an eine Bundesstraße. Sehr gute Schienenanbindung über nahe Fernverkehrsknoten mit ICE- und IC-Verbindungen. Die Lage bietet hohe Drittverwendungsfähigkeit und nachhaltiges Nachfragepotenzial für Hotel-, Boardinghouse-, Logistik- und gewerbliche Nutzungen.

    ohne-makler.net
    Anbieter:
    Angebot vom Eigentümer

    Mobil:
    0163 5152057

    Anbieter kontaktieren