Das Anwesen - Vogelperspektive
Vogelperspektive von Nordost
Ansicht Haupthaus von Osten
Haupthaus+Terrasse von Westen
Remise / Lagerflächen
parkähnliche Gartenanlage
Wohnbereich EG
Anwesen mit ca. 7000 m² Grund
Wohneinheit Wirtehaus
Originaltüre von 1793
Willkommen, Flur im EG
Wohnbereich im EG
Schlafzimmer im EG
Duschbad EG
Bad im EG
Wohnbereich OG-Wohnung
Küche der OG Wohnung
Jugendzimmer im OG
Bad der OG Wohnung
Wohnbereich Wirtehaus
Schlafbereich Wirtehaus
Lagerraum Remise
Garage in der Remise
Dachstuhl als Stauraum
Grundriss Erdgeschoß
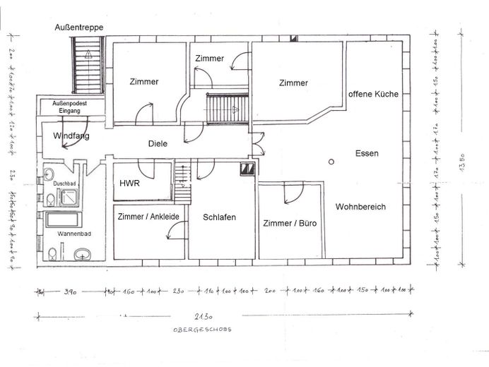
Grundriss Obergeschoß
Grundriss Keller
Grundriss Remise
Wohnküche im EG
Wohnen / Essen OG-Wohnung
Schlafzimmer mit Ankleide
Wohnbereich Wirtehaus
Küche Wirtehaus
Tenne in der Remise
Pferdehaltung wieder möglich

Einmalig u. prov.frei ! Wohn-/lifestyle Anwesen, 3 WE, ca. 480m² Wfl., 800m² Lagerfl., 7000 m² Gr.

Die vollständige Adresse erhalten Sie vom Anbieter
82281 Egenhofen – Weyhern
Bayern
2.650.000 €
Kaufpreis
480 m²
Wohnfläche
15
Zimmer
TraumImmo-ID: KQ6PGP8
Partner-ID: 424071
Partner-Objekt von: ohne-makler.net
Anbieter:
Privat von Hans-Jürgen Steg

Anbieter kontaktieren

Information

  • Typ: Bauernhaus
  • Wohnfläche ca.: 480 m²
  • Bezugsfrei ab: Nach Vereinbarung
  • Zimmer: 15
KellerGäste-WCKücheGarten

  • Grundstücksfläche: 6939.0
  • Baujahr: 1793
  • Zustand: Modernized
  • Heizart: CentralHeating
  • Brennart: Oil
  • Stockwerke: 2
  • Nutzfläche: 800.0
  • Badezimmer: 5.0

Kaufpreis & Kosten

Kaufpreis2.650.000 €
Provisionkeine Provision für Käufer

Über dieses Traum-Haus

Objektbeschreibung

Hier erwartet Sie das Besondere ....

Historie trifft Moderne:
Das Gebäudeensemble stammt aus dem Jahr 1793 und galt als Kleinod des bayerischen Barocks. Das Baujahr dieses Denkmals ist in die gut erhaltene Eingangstüre geschnitzt. Der nordseitige Anbau wurde ca. 1976 ausgeführt. Die ehemalige Schloßgaststätte samt den zwei dazugehörigen Wohn- und Wirtschaftsgebäuden liegt direkt gegenüber dem Schloß Weyhern.
Im Jahr 2006 endeten die 400 Jahre Geschichte der Schloßgaststätte. Das Bauwerk drohte zu verfallen.
In 2012 fand sich ein privater Käufer, der das Anwesen in ein Wohngebäude umwidmen ließ und mit höchstem persönlichen und technischen Aufwand, sowie entsprechender Kreativität nach strengen Denkmalschutz-Auflagen in ein traumhaftes Wohnanwesen verwandelte.

Der Bau:
Es handelt sich um einen massiven Mauerwerksbau mit einem Dachstuhl in zimmermannsmäßiger Konstruktion und Biberschwanzeindeckung. Das teilunterkellerte Gebäude steht auf einem umlaufend komplett isolierten Sockel und hat zwei vollwertige Stockwerke sowie einen doppelgeschoßigen Dachstuhl.

Ausstattung / Nutzung:
Das Anwesen umfaßt drei gemauerte Gebäude sowie mehrere Holz(an-)bauten.
Das Hauptgebäude misst alleine ca. 23 m x 13,5 m. Die historische restaurierte Eingangstüre wurde erhalten, wird aber nicht als Eingang genutzt. Dahinter erschließt sich der lange Flur mit Zugang zu den Zimmern und Bädern. Die historischen Türen wurden geschmackvoll restauriert, ebenso wie die innenliegende Holztreppe ins Obergeschoß. Die ehemalige Gaststube wurde zum Wohnbereich mit einem gemauerten Kaminofen, die Schänke, Küche und Lagerräume wurden zu Essbereich, Hauswirtschaftsraum und einer offenen modernen Einbauküche mit Kochinsel und allen elektrischen Geräten. Die früheren Gäste-Toiletten wurden zu geräumigen attraktiven Bädern. Der überdachte Hauptzugang befindet sich nun auf der Ostseite mit Diele und Garderobe.

Das Obergeschoß wurde als komplett eigene Wohneinheit konzipiert, sowohl über die innen liegende Treppe wie auch von außen über eine Holztreppe mit separatem Eingang zu begehen. Auch hier findet man hochwertige geschmackvolle Gestaltung und Ausstattung. Der "riesige" Wohnbereich mit offener Küche, sowie 5-6 Zimmer, Hauswirtschaftsraum und 2 Bäder bieten Platz für eine große Familie.

Der gewaltige Dachstuhl ist nicht ausgebaut, bietet aber als Nutzfläche jede Menge Platz. Er wurde im Rahmen der Sanierung komplett restauriert und neu eingedeckt.

Der frühere westseitige Biergarten wurde umfunktioniert in eine wunderbare mehrflächige Steinterrasse. Die ehemalige Kegelbahn wurde großteils erhalten und dient heute als urgemütliches Gartenhaus und Geräte-Aufbewahrung.

Das große Nebengebäude, die Remise, bietet vielfältig nutzbare größzügige Nutz- und Lagerflächen, Garagen, Werkstatt und der ehem. Pferdestall, im Giebel eine durchgehende Tenne. Eine ideale Konstellation für z.B. Handwerksbetriebe mit Bedarf an großen indoor-Lagerflächen oder/und für (Groß-)tierhaltung.

Ein zweites kleines Nebenhaus, das ehemalige Wirte-Wohnhaus, ist liebevoll ausgebaut und gestaltet und als eigene kleine Wohneinheit nutzbar, mit einem Wohnraum, interner Holztreppe in den zweigeteilten Dachgiebel für Schlaf- und Kinderzimmer, kleinem Bad und Küche.

Dies alles wird umringt von einem ca. 7000 m² großen „Park“. Das ermöglicht Tier-/Pferdehaltung auf eigener Koppel, sowie viele KFZ-Stellplätze.
Das Hauptgebäude ist eingezäunt. ("ausbruchssicher" -perfekt für z.B. Hundehaltung); die weiteren Flächen sind mit Weidezäunen eingefriedet / eingezäunt.

Aufgrund anderweitiger Orientierung der Eigentümer wird das Anwesen komplett und nach Absprache bezugsfertig an einen neuen Liebhaber verkauft. Auf Wunsch mit (Teil-) Möblierung. Küchen inklusive.


Ausstattung

Es ist unschwer zu erkennen daß dieses Anwesen in seiner Lage, Art und Ausstattung einzigartig ist und sich einen neuen Eigentümer wünscht, der dieses Niveau zu schätzen weiß.

Es ist als Familienhaus, Generationen-Objekt oder work-life Domizil gleichermaßen geeignet.
Die Qualität der Sanierung und verwendeten Baustoffe, die hochwertige Ausstattung und Einrichtung entsprechen aufgrund der Komplettsanierung und Modernisierung einem hohen Gebäudestandard und dem hohen Eigenanspruch der jetzigen Bewohner.


Sonstiges

Bei ernsthaftem Interesse und gegen Finanzierungsnachweis laden wir Sie herzlich ein, sich dieses einmalige Anwesen anzusehen. Das Objekt wird im Auftrag des Verkäufers exklusiv und für Käufer provisionsfrei angeboten von Hans-Jürgen Steg (zertifizierter Sachverständiger für Immobilienbewertung, ZIS Sprengnetter Zert (S), web: steg-projekte.de). Eine Käuferprovision fällt nicht an!
Bitte keine Makleranfragen ! Danke.


Lage

Lagebeschreibung

Weyhern / Egenhofen – grüne Idylle ca. 30km vor den westl. Toren Münchens

Dieses Kleinod bayerischer Geschichte und heute einzigartig saniertes und modernisiertes Anwesen ist vom westlichen Münchner Stadtrand in nur ca. 30 Minuten mit dem Auto über die A8 – Ausfahrt Odelzhausen zu erreichen.

Direkt gegenüber dem komplett renovierten und sanierten Schloß Weyhern befindet sich dieses Anwesen, die ehemalige historische Schloßgaststätte aus dem Jahr 1793. Idyllisch am Lauf der Glonn gelegen, war die Traditionsgaststätte mit Biergarten bis vor ca. 15 Jahren beliebtes und weit über die Landkreisgrenzen hinaus bekanntes Ausflugsziel mit gastronomischem Erlebnischarakter.

Mit dem Auto sind es nur ca. 7 Min. bis zur Autobahn A8 in Odelzhausen, wo sich die meisten Einrichtungen des täglichen Lebens finden, ebenso wie in den umliegenden Gemeinden Egenhofen, Mammendorf, Maisach oder in Fürstenfeldbruck.
Auch „öffentlich“ erreicht man bequem per Bus 871 (direkt vor der Haustüre) die S-Bahn in Maisach.

Das Erholungsangebot läßt kaum Wünsche offen ! Neben den umliegenden Wiesen und Wäldern mit endlosen Rad-, Reit- und Wandermöglichkeiten laden zwei Golfanlagen und zahlreiche Sportvereine mit modernen Sportanlagen zu allerlei Freizeitaktivitäten ein. Abgerundet wird das Freizeitangebot durch viele attraktive Lokale unterschiedlicher Ausrichtung, „griabige“ Biergärten und die zahlreiche kulturelle Veranstaltungen in den Gemeinden und dem Kulturzentrum um das Fürstenfelder Schloß.

ohne-makler.net
Anbieter:
Privat von Hans-Jürgen Steg

Anbieter kontaktieren