| Kaufpreis | 895.000 € |
|---|---|
| Provision | keine Provision für Käufer |
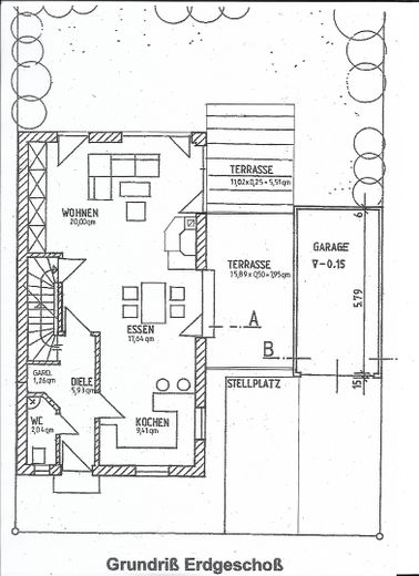
Gepflegtes, vollunterkellertes Einfamilienhaus mit Garten, überdachter Terrasse mit Markise und Gartenhaus. Vor der Garage mit elektrischem Rolltor sind zwei weitere Stellplätze.
Im Erdgeschoß befindet sich eine Einbauküche mit Theke und großzügigem Wohn- und Essbereich sowie ein Gäste-WC mit Tageslichtfenster.
Über die Treppe im Flur gelangt man in das erste Obergeschoß mit einem Kinderzimmer, einem Büroraum bzw. zweitem Schlafzimmer sowie einem Schlafraum mit Zugang zu der Dachterrasse. Das Badezimmer im Obergeschoss ist mit einer Eckbadewanne, Dusche, WC, Badmöbeln sowie einem Tageslichtfenster ausgestattet. Das Badezimmer verfügt über eine Fußbodenheizung sowie einem Handtuchheizkörper.
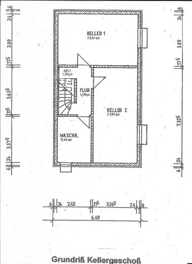
Das Untergeschoß besteht aus einer Waschküche und zwei weiteren großen Räumen, die allesamt mit Tageslichtfenstern sowie Heizkörpern ausgestattet sind.
Beheizt wird das Einfamilienhaus mit einer Gas-Brennwert-Therme.
- Gebrauchte Einbauküche mit Ceran-Kochfeld, Umluft-Backofen, Spülmaschine und
Kühl-/Gefrierkombination ist im Kaufpreis enthalten
- Hochwertige Daitem Alarmanlage
- Kachelofen im Wohn-/Esszimmer
- Böden in Feinsteinzeug, Laminat
- Fußbodenheizung in Küche und im Hauptbad
- Elektrische Rollläden im Wohn-/Essbereich im EG, Obergeschoß manuell
- Plissees im gesamten Wohn- und Schlafbereich
- Gartenhaus
- Überdachte Terrasse mit manueller Sonnenmarkise und Schiebetür zur Garage
- Einzelgarage mit elektrischem Toröffner und zwei Stellplätzen vor der Garage
- Großer Hobbyraum im Untergeschoß mit Korkboden und Tageslichtfenster.
- SAT-Fernsehen
- Zwei Kleiderschränke von now! by hülsta beziehungsweise Jutzler in den
Zimmern im Obergeschoß sind im Kaufpreis enthalten
- Garage/Stellplatzkaufpreis: 15.000,00 €
- PV-Anlage (Installierte Leistung: 4,0 kW/p; Inbetriebnahme im Jahr 2009) auf dem
Dach verbaut. Derzeitige Einspeisevergütung liegt bei ca. 1.000,00 € pro Jahr
- Das Haus ist seit März 2024 unbefristet an eine freundliche, kleine Familie
vermietet (Expatriate)
- Besichtigung nur mit Kapitalnachweis/Finanzierungsnachweis der Bank
- Alle Angaben in diesem Exposé wurden nach bestem Wissen und Gewissen erstellt und
beruhen auf den vorliegenden Informationen. Eine Haftung für die Richtigkeit,
Vollständigkeit und Aktualität der Angaben wird ausgeschlossen.
Die aufstrebende Gemeinde Neufahrn (ca. 19.500 Einwohner) liegt nahe den wunderschönen Isarauen.
Das Schulzentrum in Neufahrn verfügt über zwei Grundschulen, eine Mittelschule sowie ein Gymnasium und eine Volkshochschule, sowie mehrere Kindergärten, 2 Krippen und einem Hort. Sport- und Erholungssuchenden stehen vielfältige Möglichkeiten zur Verfügung.
Ein Schwimmbad mit hervorragendem Kinderbereich, Sportanlagen und -vereine, ein Fitnesscenter und natürlich die herrliche Landschaft bieten etwas für jeden Geschmack.
Das nahegelegene Cineplex Kinocenter mit Cafe, Restaurants und Bar erfreut sich großer Beliebtheit.
Ärzte, Apotheken und sämtliche Geschäfte des täglichen Bedarfs sind selbstverständlich genauso in Neufahrn vertreten, wie gute gastronomische Einrichtungen.
Verkehrsanbindungen: Autobahn A9 München - Nürnberg und A92 München - Deggendorf, S-Bahn-Anbindung: S1 Richtung München und Freising oder Flughafen, hervorragende Verkehrsanbindung nach München oder zum außerhalb gelegenen Flughafen über die A92 oder über öffentliche Verkehrsmittel. Außerdem besteht eine direkte Busverbindung nach Garching zur U-Bahnhaltestelle U6.