Charmante 2,5 Zimmer Wohnung in begehrter Wohnlage inkl. Balkon und TG-Stellplatz

Die vollständige Adresse erhalten Sie vom Anbieter
78054 Villingen-Schwenningen – Schwenningen
Baden-Württemberg
780 €
Kaltmiete
58 m²
Wohnfläche
2,5
Zimmer
TraumImmo-ID: M58SYBN
Partner-ID: 417267
Partner-Objekt von: ohne-makler.net
Anbieter:
Privat von Jan D.

Anbieter kontaktieren

Information

  • Typ: Etagenwohnung
  • Etage: 2
  • Wohnfläche ca.: 58 m²
  • Bezugsfrei ab: Nach Vereinbarung
  • Zimmer: 2,5
KellerKücheBalkon

  • Baujahr: 1983
  • Zustand: WellKept
  • Heizart: SelfContainedCentralHeating
  • Brennart: Gas
  • Stockwerke: 4
  • Badezimmer: 1.0

Miete & Nebenkosten

Miete780 €

Über dieses Traum-Apartment

Objektbeschreibung

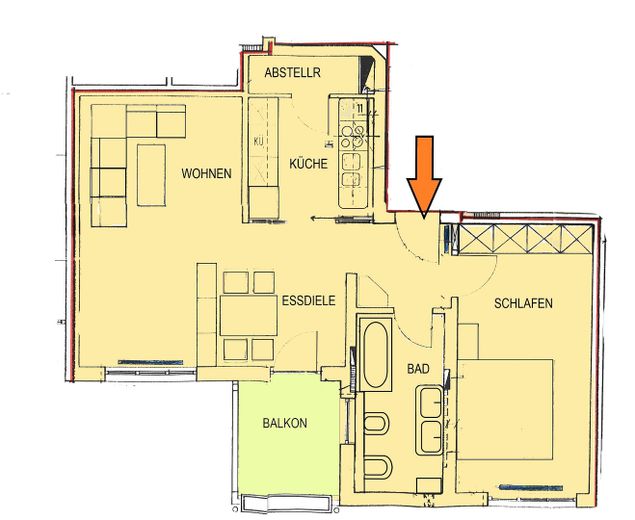
Diese gepflegte 2,5-Zimmer-Wohnung befindet sich im 2. Obergeschoss eines ruhigen Mehrfamilienhauses mit nur 11 Wohneinheiten in beliebter Wohnlage von Villingen-Schwenningen.

Die Wohnung ist vollständig zur Gartenseite ausgerichtet und überzeugt durch helle, freundliche Räume sowie einen durchdachten Grundriss. Der großzügige, überdachte Balkon (Süd-West-Ausrichtung) mit Blick ins Grüne bietet viel Sonne und lädt zum Entspannen ein.


Ausstattung

Die Einbauküche ist funktional und ästhetisch ansprechend gestaltet. Mit einer Schiebetür vom Wohn-Essbereich abgetrennt, lädt sie zum Kochen und Verweilen ein.
Der zusätzliche praktische Abstellraum sorgt für Ordnung und bietet ausreichend Platz für Vorräte, Haushaltsgeräte oder saisonale Gegenstände.

Tiefgaragen-Stellplatz: Ihr eigener Stellplatz in der Tiefgarage schützt Ihr Fahrzeug zuverlässig vor Witterungseinflüssen.

Heizung und Warmwasser: Die Versorgung erfolgt über eine eigenständige
Gasetagenheizung im Badezimmer. Die Kosten für Warmwasser und Heizung werden direkt mit dem Versorgungsträger abgerechnet.


Lage

Lagebeschreibung

Die Lage zeichnet sich durch eine hervorragende Verkehrsanbindung aus. In unmittelbarer Nachbarschaft befinden sich zwei Bushaltestellen, die eine bequeme Nutzung des öffentlichen Nahverkehrs ermöglichen.

Der Bahnhof Schwenningen ist ebenfalls in der Nähe und in etwa 10 bis 15 Minuten zu Fuß erreichbar, was schnelle Verbindungen in umliegende Städte und Regionen gewährleistet.

Das Stadtzentrum von Schwenningen sowie der Busbahnhof sind ebenso gut zu Fuß erreichbar und bieten vielfältige Einkaufsmöglichkeiten, darunter Supermärkte, Fachgeschäfte, Wochenmärkte sowie Cafés und Restaurants, sodass Sie alles für den täglichen Bedarf bequem vor Ort haben.

Für Autofahrer ist die Autobahn A81 optimal zugänglich. Sie verläuft südlich von VillingenSchwenningen und bietet direkte Verbindungen nach Stuttgart im Osten sowie ins Schweizer Grenzgebiet im Westen. Zudem sorgen die Bundesstraßen B33 und B27 für eine gute Anbindung an wichtige Orte in der Region, darunter Donaueschingen, Singen, Freiburg und Tuttlingen.

Auch die medizinische Versorgung ist in der Nähe gut abgedeckt. Mehrere Arztpraxen sind in der Umgebung ansässig und gewährleisten eine umfassende Betreuung. Das Schwarzwald-BaarKlinikum befindet sich ebenfalls in der Nähe und bietet eine umfangreiche medizinische Versorgung für alle Bedürfnisse.

Villingen-Schwenningen ist die große Kreisstadt und zugleich das Oberzentrum der Region Schwarzwald-Baar-Heuberg. Die Stadt liegt im Südwesten Deutschlands, am Rande des „Mittleren Schwarzwaldes“, im Quellgebiet von Neckar und Donau. Sie gilt als zentraler Standort im Dreiländereck Deutschland-Frankreich-Schweiz. Von hier aus sind Ausflüge im Schwarzwald, in die nahegelegene Schweiz, an den Bodensee oder ins Elsass als Tagesausflüge gut möglich.

ohne-makler.net
Anbieter:
Privat von Jan D.

Anbieter kontaktieren