| Kaufpreis | 1.845.000 € |
|---|---|
| Provision | keine Provision für Käufer |
Jede Einheit überzeugt mit einer großzügigen Gartenfläche, die nach Süden ausgerichtet ist und somit ganztägig von der Sonne profitiert. Je nach Lage genießen die Gärten zusätzlich die Morgensonne im Osten oder die Abendsonne im Westen, wodurch besonders angenehme Lichtstimmungen entstehen. Durch die durchdachte Anordnung der Häuser entsteht ein hoher Grad an Privatsphäre, sodass die Gärten individuell genutzt werden können. Die massiv gemauerte Garage trennt die Häuser voneinander und sorgt gleichzeitig für eine klare Struktur. Auf den großzügigen Grundstücksflächen finden Stellplätze für (Lasten-)Fahrräder oder Kinderwägen bequem Platz. Die bepflasterten Terrassen fügen sich harmonisch in die Gärten ein und laden zum Verweilen ein, wobei sie je nach Haus sowohl die Sonne am Mittag als auch das Licht am Morgen oder Abend einfangen.
Erdgeschoss:
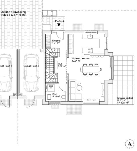
Die Häuser 1 & 2 zeichnen sich dadurch aus, dass sie direkt über die Franz-Wüllner-Straße erschlossen werden. Der Eingangsbereich wird durch eine großzügige Garderobe und ein Gäste-WC vervollständigt. Die Küche öffnet sich zum Wohnbereich und wird dadurch zum zentralen Treffpunkt des Erdgeschosses. Große Hebeschiebetüren bringen viel Licht ins Erdgeschoss und ermöglichen den direkten Zugang auf die sonnigen, nach Süden ausgerichteten Terrassen. Die Deckenhöhe von 2,60 m verstärkt das offene Raumgefühl und verleiht diesem Geschoss eine angenehme Weite.
In den Häusern 3 & 4 bietet der Eingangsbereich neben einer Garderobe ausreichend Platz für eine Sitzbank und wird durch ein weitläufiges Gäste-WC ergänzt. Die großzügige Festverglasung im Wohnraum bringt viel Licht ins Erdgeschoss und lässt den Raum freundlich und großzügig wirken. Der offene Grundriss vereint den Küchenbereich mit dem Wohn- und Essraum, aus dem man direkt auf die Terrassen gelangt. Große Schiebetüren öffnen den Wohnraum zum Außenbereich und lassen ihn weitläufiger wirken. Auch in den Häusern 3 & 4 trägt die Deckenhöhe von 2,60 m zu einer luftigen und harmonischen Atmosphäre bei und unterstreicht die besondere Wohnqualität.
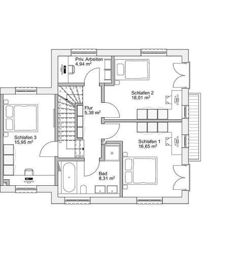
Obergeschoss:
Das Obergeschoss der Häuser bietet eine flexible Nutzung der Räume. Einerseits besteht die Möglichkeit, die Kinder auf einer Etage unterzubringen, die über ein eigenes Kinderbad verfügt, sodass der Elternschlafbereich privat im Dachgeschoss verbleibt. Für junge Familien bietet sich die Option, gemeinsam mit den Kindern auf einer Etage zu schlafen, wodurch die Wege kurz bleiben und die Räume dennoch eigenständig nutzbar sind. Bei Haus 3 & 4 bietet das Treppenauge auf allen Etagen die Möglichkeit, durch einen Einbauschrank zusätzlichen Stauraum zu schaffen. Neben insgesamt drei großzügigen Schlafzimmern wird das Obergeschoss durch ein Home-Office ergänzt.
Dachgeschoss:
Das Dachgeschoss verfügt über ein geschosseigenes Vollbad und lässt sich je nach Wunsch entweder mit einem großen Schlafraum samt großzügiger Ankleide oder mit zwei separaten Zimmern planen, die als Kinderzimmer, Home-Office oder Gästezimmer genutzt werden können. So kann der Bereich flexibel an die jeweilige Familienkonstellation angepasst werden. Die Raumhöhe von bis zu 3,40 m, klassische Gauben und großzügige Dachliegefenster sorgen für ein helles, luftiges Raumgefühl.
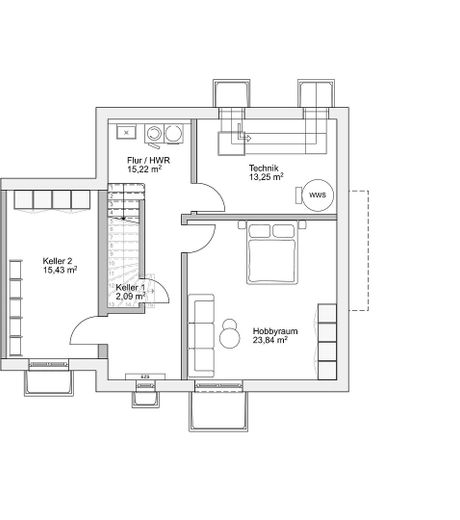
Untergeschoss:
Im Untergeschoss befindet sich neben einem Technikraum ein geräumiger Abstellraum, welcher perfekt als Hauswirtschaftsraum genutzt werden kann. Mittelpunkt des Untergeschosses ist der geräumige Hobbyraum. Durch einen großen Lichtschacht, Fußbodenheizung und einem Holzdielenboden bekommt der Hobbyraum einen hohen Grad an Wohnraumqualität und kann als Wellnessbereich, Fitness- oder Gästezimmer genutzt werden.
Das Haus besticht durch eine robuste Massivbauweise mit 36,5 cm starkem Ziegelmauerwerk für die Außenwände. Tragende Innenwände werden mit einem 17,5 cm Ziegelmauerwerk errichtet. Nichttragende Innenwände werden als 11,5 cm Ziegelmauerwerk oder als Trockenbauwand ausgebildet. Große, 3-fach verglaste Kunststoff-Alu-Fenster sorgen für eine hervorragende Energieeffizienz und lichtdurchflutete Räume, insbesondere im Wohn- und Essbereich durch eine hochwertige Hebe- Schiebetüre.
Eine moderne Luft-Wasser-Wärmepumpe im Inneren gewährleistet eine effiziente Wärmeversorgung. Elektrische Rollläden bieten zusätzlichen Sonnenschutz, während moderne Sanitäreinrichtungen im Badezimmer für höchsten Komfort sorgen. Die Bodenbeläge bestehen aus Landhausdielen und zeitgemäßen Fliesenformaten, welche durch eine Fußbodenheizung ergänzt werden.
Das Grundstück ist real geteilt und verfügt über eine eigene Flurnummer. Für jedes Haus wird eine eigene Garage errichtet. Der Bau erfolgt schlüsselfertig zum Festpreis und wird termingerecht vom Generalunternehmer abgeschlossen.
Alle Häuser werden unabhängig voneinander mit einer eigenen Luft-Wasser-Wärmepumpe betrieben. Diese befindet sich nicht wie üblich im Außenbereich, sondern innenliegend im Technikraum im Untergeschoss. Sämtliche Technikinstallationen im Haus, sowie die Beantragung und Ausführung im Außenbereich für Schmutz- und Regenwasser sind im Festpreis enthalten. Lediglich die Kosten für Wasser, Strom und Internet sind vom Bauherrn selbst zu tragen. Das Bauunternehmen unterstützt Sie bei den entsprechenden Anträgen und Ausführungen und steht Ihnen beratend zur Seite.
Makleranfragen sind unerwünscht, wir bleiben bei unserem Prinzip der direkten Kommunikation vom Architekten zum Kunden. Gerne können Sie mich jederzeit anschreiben oder auch anrufen - 0176 / 21 65 74 23
Die Straße:
In der Franz-Wüllner-Straße wohnen Sie direkt am Obermenzinger Durchblick, der in diesem Viertel besonders geschätzt wird. Schulen unterschiedlicher Jahrgangsstufen sowie Kindergärten liegen in angenehmer Nähe und sind für Kinder gut erreichbar. Die Anbindung an den öffentlichen Nahverkehr ist ebenfalls komfortabel, sodass sich Arbeitswege verkürzen und die Innenstadt schnell und unkompliziert erreichbar ist.
Das Viertel:
Obermenzing ist ein grünes, gehobenes Wohnviertel im Münchner Westen mit hohem Anteil an Einfamilienhäusern und ruhigen Seitenstraßen. Familien schätzen die Nähe zu Schulen, Kitas und Sportvereinen, ebenso wie die schnellen Wege zum Nymphenburger Schlosspark und zur Würm. Einkaufsmöglichkeiten für den täglichen Bedarf, Cafés und lokale Angebote sind gut erreichbar. Dank S-Bahn und Busanbindung gelangt man zügig in die Innenstadt, ohne auf die entspannte Wohnqualität des Viertels zu verzichten.