Projektansicht
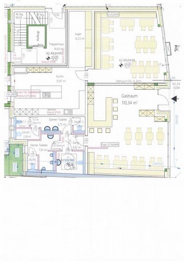
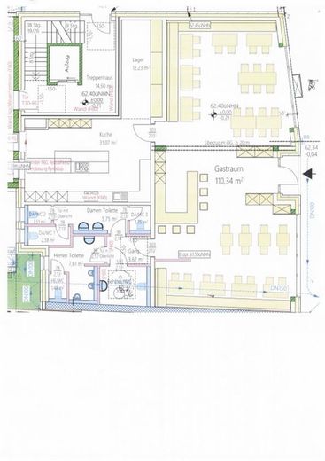
Exemplarischer Grundriss
Ansicht Vorderseite
Ansicht Rückseite

Neubau - Gewerbefläche am Marktplatz Drensteinfurt | flexibel nutzbar | Fertigstellung 2026

Mühlenstraße 5
48317 Drensteinfurt – Drensteinfurt
Nordrhein-Westfalen
7
Zimmer
TraumImmo-ID: N7ZERK3
Partner-ID: 432924
Partner-Objekt von: ohne-makler.net
Anbieter:
Angebot von Im Herzen Drensteinfurts GmbH & Co. eGbR

Anbieter kontaktieren

Information

  • Typ: Restaurant
  • Etage: 0
  • Bezugsfrei ab: Nach Vereinbarung
  • Zimmer: 7
KellerBarrierefrei

  • Baujahr: 2025
  • Zustand: FirstTimeUse
  • Heizart: FloorHeating

Miete & Nebenkosten

Provisionkeine Provision für Käufer

Über dieses Traum-Gastronomieobjekt

Objektbeschreibung

Im Herzen von Drensteinfurt entsteht bis Ende 2026 ein hochwertiges Wohn- und Geschäftshaus mit 9 Wohneinheiten und einer großzügigen Gewerbefläche im Erdgeschoss.

Die ca. 178 m² große Einheit liegt direkt am neu gestalteten Marktplatz und bietet hervorragende Sichtbarkeit sowie eine repräsentative Lage.

Die Fläche ist aktuell als Gastronomie geplant (exemplarischer Grundriss anbei), kann jedoch flexibel an Ihre Nutzung angepasst werden. Grundriss und Ausbau erfolgen in Abstimmung mit dem zukünftigen Mieter.


Ausstattung

Energieeffizienter Neubau

Wärmepumpe

Dreifachverglasung

Glasfaseranschluss

Hochwertige Fassadengestaltung

Moderne, repräsentative Architektur

Fertigstellung Ende 2026 – frühzeitige Planungssicherheit.


Sonstiges

Die Gewerbefläche befindet sich in einem modernen Wohn- und Geschäftshaus im Herzen von Drensteinfurt mit insgesamt 9 hochwertigen Wohneinheiten.

Der Ausbau der Fläche erfolgt in enger Abstimmung mit dem zukünftigen Mieter. Dadurch können Grundriss, Technikanschlüsse sowie Ausstattungsdetails individuell geplant und auf Ihr Nutzungskonzept abgestimmt werden.

Die Fertigstellung ist für Ende 2026 vorgesehen. Eine frühzeitige Abstimmung bietet Planungssicherheit und optimale Umsetzungsmöglichkeiten.

Die Fläche eignet sich ideal für langfristig orientierte Betreiber, die einen modernen Neubau in zentraler Marktplatzlage suchen und Wert auf nachhaltige Bauweise, hochwertige Architektur und ein kaufkräftiges Umfeld legen.

Preis auf Anfrage.
Seriöse Anfragen mit Nutzungskonzept sind willkommen.


Lage

Lagebeschreibung

Drensteinfurt ist eine attraktive Pendlerstadt, der Standort des Gewerbes ist zentral im historischen Stadtkern – direkt am Marktplatz gelegen. Eine hohe Kaufkraft der Einwohner, starke Eigentümerquote und gewachsene Innenstadtstruktur bieten beste Voraussetzungen für nachhaltigen Geschäftserfolg.

Eine sehr gute Anbindung des Standorts ist gegeben:

Bahnhof Drensteinfurt fußläufig erreichbar

Mehrfach stündliche Zugverbindung nach Münster und Hamm

Schnelle Erreichbarkeit der A1 und A2

ohne-makler.net
Anbieter:
Angebot von Im Herzen Drensteinfurts GmbH & Co. eGbR

Anbieter kontaktieren