Flur
Flur
Wohnungstür
Wohnzimmer
Arbeitszimmer
Bad
Bad
Küche
Küche
Balkon
Treppenhaus
Eingangsbereich
Innenhof
Fassade

Denkmalgeschützte 3-Zimmer-Wohnung mit Süd-Balkon

Alramstr. 15
81371 München – Sendling
Bayern
899.000 €
Kaufpreis
86 m²
Wohnfläche
3
Zimmer
TraumImmo-ID: NP49X25
Partner-ID: 431897
Partner-Objekt von: ohne-makler.net
Anbieter:
Privat von Philipp Kübler

Anbieter kontaktieren

Information

  • Typ: Etagenwohnung
  • Etage: 3
  • Wohnfläche ca.: 86 m²
  • Bezugsfrei ab: Nach Vereinbarung
  • Zimmer: 3
KellerBalkon

  • Baujahr: 1911
  • Zustand: WellKept
  • Heizart: SelfContainedCentralHeating
  • Brennart: Gas
  • Stockwerke: 5
  • Badezimmer: 1.0

Kaufpreis & Kosten

Kaufpreis899.000 €
Provisionkeine Provision für Käufer

Über dieses Traum-Apartment

Objektbeschreibung

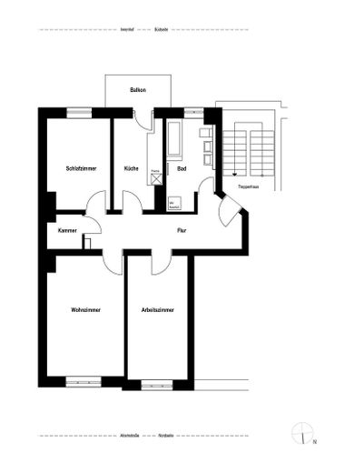
Sehr schöne 3-Zimmer-Wohnung in einem gepflegten, denkmalgeschützten Altbau in München-Sendling.

Wichtige Details:
- 3. OG
- 86,17 qm
- 3 Zimmer, Küche, Bad, Abstellkammer
- großer Südbalkon
- denkmalgeschützter Altbau
- Kellerabteil
- kein Aufzug
- ca. 150 m zur U-Bahn Implerstraße (U3/U6)
- ca. 1 km zur S-Bahn Harras (S7 / BRB)

Die Wohnung ist seit 01.12.2024 vermietet. Die monatliche Kaltmiete beträgt € 2.100.

Aus Rücksicht auf die Mieter werden Fotos der Wohnung im leeren Zustand veröffentlicht.


Ausstattung

- Parkettboden in den 3 Zimmern und im Flur
- Fliesenboden in Bad und Küche
- großes Bad mit 2 Waschbecken, Badewanne und Handtuchheizkörper


Lage

Lagebeschreibung

Die Wohnung liegt in München-Sendling. In Laufnähe befinden sich verschiedene Restaurants, Supermärkte, Bäckereien, Cafés, Ärzte sowie Schulen und Kindergärten.

Die U-Bahn-Station Implerstraße (U3/U6) ist lediglich ca. 150 m entfernt. Zur S-Bahn-Station Harras (S7 / BRB) ist es ca. 1 km.

ohne-makler.net
Anbieter:
Privat von Philipp Kübler

Anbieter kontaktieren