| Kaufpreis | 335.500 € |
|---|---|
| Provision | keine Provision für Käufer |
Wohnung 7 – großzügiges Wohnen für Paare, Familien und Senioren
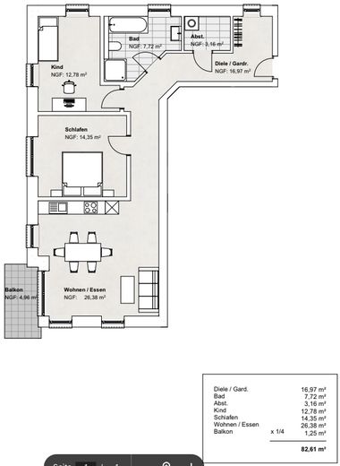
Das Neubauprojekt bietet modernen Wohnraum mit hoher Aufenthaltsqualität. Jede Wohnung verfügt über einen offenen Wohn- und Essbereich mit angrenzender Küche, ein modernes Bad mit Dusche oder Badewanne sowie ein bis zwei lichtdurchflutete Schlafzimmer. Zusätzlich steht Ihnen ein praktischer Abstellraum innerhalb der Wohnung zur Verfügung – ein echtes Plus für Alltag und Ordnung.
Die Wohnungen liegen im 1. und 2. Obergeschoss und verfügen über großzügige Balkone, die nach Südwesten ausgerichtet sind – ideal zum Entspannen im Grünen. Die Wohnungen im Erdgeschoss verfügen über Terrassen, die zum Verweilen einladen.
Dank der barrierearmen Gestaltung, des Aufzugs im Haus und der schwellenarmen Zugänge eignet sich das Objekt auch ideal für ältere Menschen oder Menschen mit eingeschränkter Mobilität. Die Ausstattung ist modern, pflegeleicht und auf ein angenehmes Wohnklima ausgerichtet.
Im Außenbereich sorgen gepflegte Wege, überwiegend überdachte Stellplätze mit einer vorbereiteten Infrastruktur für E-Mobilität für zusätzlichen Komfort und Nachhaltigkeit.
Helle Räume mit modernen Grundrissen
Barrierearme Zugänge und Aufzug im Haus
Modernes Bad mit Dusche oder Wanne
Abstellraum innerhalb der Wohnung
Erstbezug, hochwertige Boden- und Wandbeläge
Fußbodenheizung
Interessiert? Wir senden Ihnen gern ein ausführliches Exposé mit allen Informationen zu Wohnung, Grundriss und Kaufkonditionen zu – schreiben Sie uns einfach eine kurze Nachricht.
Fümmelse liegt nur wenige Fahrminuten vom Zentrum Wolfenbüttels entfernt und bietet gleichzeitig alle Vorteile eines ruhigen Wohnumfelds. Der Ort ist geprägt von Einfamilienhäusern, kleinen Mehrfamilienhäusern und einer freundlichen Nachbarschaft – optimal für Familien mit Kindern und für Menschen, die ihren Ruhestand in angenehmer Atmosphäre verbringen möchten.
Alle wichtigen Einrichtungen befinden sich in unmittelbarer Umgebung:
- Eine Grundschule ist in wenigen Gehminuten erreichbar
- Kindergarten und eine Tagespflegeeinrichtung des ASB befinden sich direkt in der Nachbarschaft
- Ein Spielplatz liegt gegenüber der Immobilie – perfekt für junge Familien
-Einkaufsmöglichkeiten, Ärzte und weitere Dienstleister sind schnell erreichbar
- Sehr gute Anbindung an die Innenstadt Wolfenbüttels und die B79
In Fümmelse finden Sie eine ruhige Wohnlage mit allen Vorzügen der Nähe zur Stadt – eingebettet in eine grüne Umgebung mit viel Lebensqualität.