Gewerberäume, Gewerbeflächen, Praxis, Büroräume, Geschäftsräume

Waldershoferstr. 49/51
95615 Bayern - Marktredwitz – Marktredwitz
Bayern
TraumImmo-ID: P8MVPBV
Partner-ID: 414846
Partner-Objekt von: ohne-makler.net
Anbieter:
Privat von Anton Hauptmann

Anbieter kontaktieren

Information

  • Typ: Büroetage
  • Etage: 0
  • Bezugsfrei ab: 01.07.2026
Küche

  • Baujahr: 1971
  • Zustand: WellKept
  • Heizart: CentralHeating
  • Brennart: Oil

Miete & Nebenkosten

Provisionkeine Provision für Käufer

Über dieses Traum-Büro

Objektbeschreibung

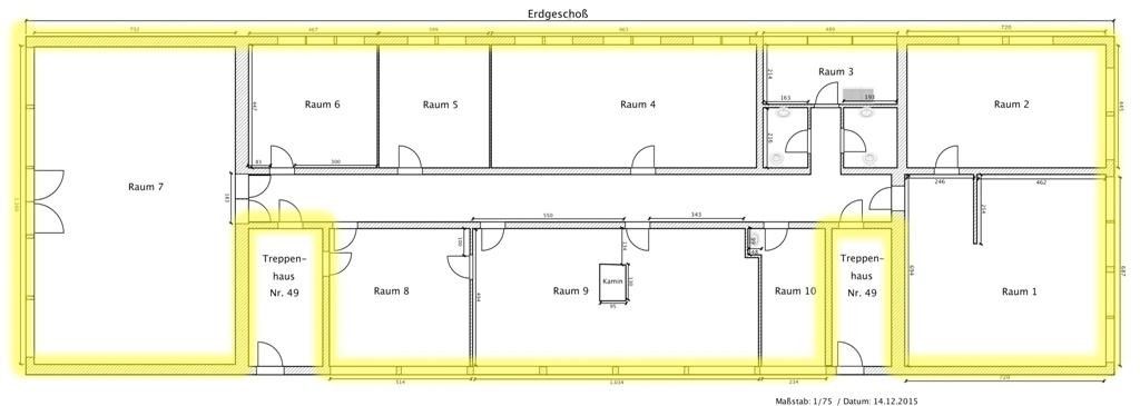
Gebäude/Räumlichkeiten:

• Die Gewerbeflächen befinden sich im EG,
im gesamten von 393 qm,
welche auch aufteilbar ist!
in einem bereits Energetisch saniertem, Optisch gut ansprechendem Gebäude.
• Ruhiges, sauberes, gepflegtes Haus
o Aufgeteilt in Besprechungsraum, Serverraum, Küche, Da/He Toiletten, 6 unterschiedlich großen weiteren Räumen, Lager oder Registratur mit großer Doppeltüre nach Außen, zur Anlieferung oder dergleichen.
o Und die größte Kostenersparnis vorhandenes Netzwerk zu allen Arbeitsplätzen.
o Eigener Serverraum
o Kupfer sowie Glasfaseranschluss bis zum Server vorhanden.

• In Massivbauweise erstelltes Wohn- und Geschäftshaus mit Licht
durchfluteten Räumen.
• Die Aufteilung der Räume ist variabel und kann nach Absprache den
jeweiligen Nutzeranforderungen angepasst werden, vielseitige
Verwendung möglich.

• ausreichend Werbefläche an und neben dem Gebäude vorhanden.

• große Fensterfront als auch Schaufenster nutzbar.

• Parkflächen für mehrere Pkw, Mitarbeiter/Kunden vorhanden,
bis zu 14 Stück.
Im benachbarten Straßenraum besteht ein zusätzliches Angebot an
Parkplätzen.

• Ölzentralheizung

• getrennte Damen/Herren WC auf dieser Etage
• mehrere Zugangsmöglichkeiten ins Gebäude vorhanden

Sonstiges:

• Energieausweis (Energieverbrauchskennwert 89 kWh/m²a)

• Makler- und Provisionsfrei

• Frei ab voraussichtlich 7. 2026, bzw. nach Vereinbarung.

• weitere Informationen erhalten Sie gerne auf Anfrage


Ausstattung

die Gewerbeflächen befinden sich in einem bereits Energetisch
saniertem, Optisch gut ansprechendem Gebäude.
• Ruhiges, sauberes, gepflegtes Haus
o Aufgeteilt in Besprechungsraum, Serverraum, Küche, Da/He Toiletten,
6 unterschiedlich großen weiteren Räumen, Lager oder Registratur mit
großer Doppeltüre nach Außen, zur Anlieferung oder dergleichen.
o Und die größte Kostenersparnis vorhandenes Netzwerk zu allen
Arbeitsplätzen.
o Eigener Serverraum
o Kupfer sowie Glasfaseranschluss bis zum Server vorhanden.

• In Massivbauweise erstelltes Wohn- und Geschäftshaus mit hellen
Licht durchfluteten Räumen.
• Die Aufteilung der Räume ist variabel und kann nach Absprache den
jeweiligen Nutzeranforderungen angepasst werden, vielseitige
Verwendung möglich.

• ausreichend Werbefläche an und neben dem Gebäude vorhanden.

• große Fensterfront als Schaufenster nutzbar.

• Parkflächen für mehrere Pkw, Mitarbeiter/Kunden vorhanden,
bis zu 14 Stück.
Im benachbarten Straßenraum besteht ein zusätzliches Angebot an
Parkplätzen.

• Ölzentralheizung

• getrennte Damen/Herren WC auf dieser Etage
• mehrere Zugangsmöglichkeiten ins Gebäude vorhanden

Sonstiges:

• Energieausweis (Energieverbrauchskennwert 89 kWh/m²a)

• Makler- und Provisionsfrei

• Frei ab voraussichtlich 7. 2026, bzw. nach Vereinbarung.

• weitere Informationen erhalten Sie gerne auf Anfrage
.


Lage

Lagebeschreibung

• das Gebäude liegt am Ortseingang, an der Staatsstraße 2177, der Haupteinfallstraße von Waldershof nach Marktredwitz. In unmittelbarer Nähe der Firmen Cube, Scherdel, ABM Greiffenberger, Sievert, (Mischgebiet) Das Gebäude ist Zentral gelegen, gerademal 500m zum Stadtzentrum.

• Es besteht eine optimale Verkehrsanbindung, mit geringer Entfernung
zur A93. und B303

• Bushaltestelle an der Grundstücksgrenze, sowie Bahnanbindung in
wenigen Gehminuten erreichbar.

• Die Zufahrt zum Gebäude ist großzügig geschnitten und eignet sich
auch zur LKW Anlieferung. Laderampe vorhanden.

• In unmittelbarer Nähe (100m) befindet sich ein Supermarkt, mit
Metzgerei und Warmer Theke zur täglichen Versorgung der Mitarbeiter.

ohne-makler.net
Anbieter:
Privat von Anton Hauptmann

Anbieter kontaktieren