| Kaufpreis | 148.000 € |
|---|---|
| Provision | keine Provision für Käufer |
!!! Bitte keine Makleranfragen !!!
Keine Provision, da direkt vom Eigentümer
Kleinbauernstelle mit Wohn- und Stallteil unter einem Dach aus zweischaligem Mauerwerk Baujahr ca. 1921/22/58, teilunterkellert, Erdgeschoss ohne Stufen mit ca. 120m2 Wohnfläche, Dachgeschoss ist nicht ausgebaut
Scheunenteil Baujahr ca. 1949/1950 in Mauerwerksmassivbauweise
Zwischenbau und Schuppen Baujahr ca. 1974, seit 1993 in Massivbauweise Umnutzung zu Garagengebäude und Werkstatt
In der Vergangenheit wurden 3 der Garagen zu Pferdeställen umgenutzt und ein Teil des Grundstücks als Weideland
Ehemaliges Stallgebäude Bj. ca. 1939 und 1967 in Massivbauweise, seit 1993 Umnutzung Garagengebäude
Schuppen ca. Ende der 50er Jahre in Massivbauweise als Garage mit 2 Stellplätzen und Abstellraum
Hühnerstall Bj. ca. 1929 Massivbauweise
Im Erdgeschoss des Wohnhauses befindet sich die große Wohndiele mit Kaminofenanschluss, die große Küche, vier Schlafzimmer und das Bad im Rohbauzustand.
Das Dachgeschoss ist nicht ausgebaut
Ausgestattet ist das Wohnhaus mit Holzfenstern mit Doppelverglasung
Zentrale Gasbrennwertheizung mit Warmwasserspeicher, dazugehöriger Flüssiggastank befindet sich oberirdisch im Garten
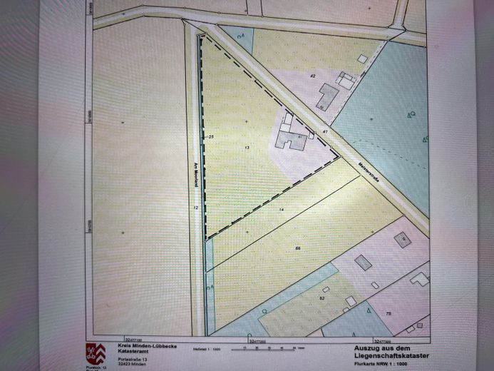
Das Eigenlandgrundstück ist idyllisch ruhig gelegen
Es hat eine Größe von 10.761 m2
Der sonnige Garten ist nicht einsehbar
Der Resthof liegt im Ortsteil Wehe der Stadt Rahden
Das Stadtzentrum von Rahden ist ca. 4 km entfernt
In Wehe befindet sich ein Kindergarten
Die Adresse lautet:
32369 Rahden, Meisterstraße 61
Weitere Informationen oder einen Besichtigungstermin bitte unter folgender Telefonnummer erfragen:
Ehlebracht 05261-72720, 0173-9524379
Nicole Sawatzky und Jens Ehlebracht GbR
Grundstückshandel
32657 Lemgo, Flörkenkamp 6
TEL. 05261-72720
Finanzamt Lemgo
Steuernummer 329/5830/2071
Alle Angaben sind ohne Gewähr
Maßangaben sind ungefähre Angaben
Angaben sind von Vorbesitzern oder von Dritten
