Wohnzimmer
Wohnzimmer
Dusch/WC
Schlafzimmer
Schlafzimmer
Küche
Küche
Wohnzimmer
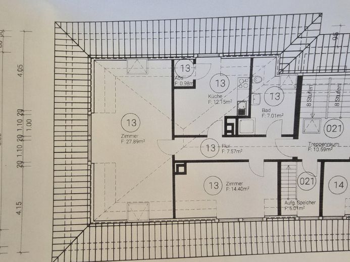
Wohnungsplan
Küche
Flur
Küche
Küche

Schöne 2-Zimmerwohnung,für Single/Paar ab Februar/März zu vermieten

Die vollständige Adresse erhalten Sie vom Anbieter
66482 Zweibrücken – Zweibrücken
Rheinland-Pfalz
450 €
Kaltmiete
74 m²
Wohnfläche
2
Zimmer
TraumImmo-ID: PSPYSGP
Partner-ID: 418233
Partner-Objekt von: ohne-makler.net
Anbieter:
Angebot vom Eigentümer

Anbieter kontaktieren

Information

  • Typ: Dachgeschosswohnung
  • Etage: 3
  • Wohnfläche ca.: 74 m²
  • Bezugsfrei ab: Nach Vereinbarung
  • Zimmer: 2
KellerKüche

  • Baujahr: 1960
  • Zustand: WellKept
  • Heizart: CentralHeating
  • Brennart: Gas
  • Stockwerke: 3
  • Badezimmer: 1.0
  • Heizkosten in Nebenkosten enthalten: True

Miete & Nebenkosten

Miete450 €
Nebenkosten205 € inkl. Heizkosten
Kaution1440€

Über dieses Traum-Apartment

Objektbeschreibung

Schöne 2-Zimmerwohnung, Nähe Rosengarten und Rennwiese, ab Februar/März/April 2026 neu zu vermieten. Blick ins Grüne.

3. OG, KEIN Aufzug. Die Wohnung hat keinen Balkon, aber Sitzmöglichkeit hinter dem Gebäude. Auch Grillen ist dort gerne möglich. Außerdem ist der Rosengarten schnell fußläufig erreicht.

Das große Wohnzimmer könnte man mit einem Raumteiler oder Regal zu einem 3. Zimmer für z.B. einen Home Office-Bereich abgrenzen.
Der Rosengarten, Bahnhaltepunkt Rosengarten, dm, Aldi und Edeka sind schnell zu Fuß erreicht.

Die Wohnung ist einem gepflegten Zustand. Komplettsanierung war vor ca. 8 Jahren.
Helle Laminatböden, neue Fenster, weißes Dusch/WC mit Fenster. Abstellplatz für die Waschmaschine ist im Dusch/WC.

Die Wohnung hat ca. 74 m² und kostet 450,00 Euro Kaltmiete. Stellplatz: 30,00 Euro, Nebenkosten: 205,00 Euro (1 Person) und 215,00 Euro (2 Personen).
In den Nebenkosten ist enthalten: Heizung, Wasser, Hausmeister, -reinigung, Abfall, Grundsteuer, Versicherungen.
Extra geht: Wohnungsstrom, Internet, Telefon, GEZ.
Kabel Deutschland liegt im Haus. Glasfaser ist beantragt.

Die Wohnung hat neuwertige Fenster und ist gut gedämmt, daher sind die Heizkosten sehr niedrig. Auch die Hitze im Sommer ist dadurch gut erträglich.
Aktuell wird auch noch das Dach komplett erneuert und ist bis März fertiggestellt.

Eigener Kellerraum, Fahrradraum, Hausmeisterservice und Winterdienst sind vorhanden.

Es werden langfristige Mieter gesucht, daher Mindestmietzeit von 2 Jahren.

Energieausweis: 123,0 kWh. Gaszentralheizung.

Bei Interesse kann die Einbauküche vom aktuellen Mieter kostenlos übernommen werden. (ohne Elektrogeräte). Kleine Abstellkammer in der Küche vorhanden.

Die Wohnung ist nur für Single oder Paar. Maximal für 2 Personen.
Haustiere auf Anfrage.

Bitte geben Sie in Ihrer Anfrage folgende Informationen vorab an:
- Anzahl der Personen
- Berufe
- gewünschter Einzugstermin
- Haustier
- Positive Schufa liegt vor?


Ausstattung

Laminatböden
weißes Dusch/WC mit Fenster
neuwertige Fenster und Dämmung
ruhiges Haus, nette und anständige Nachbarschaft
Hausmeister, -reinigung und Winterdienst sind vorhanden
eigener Kellerraum und Abstellkammer in der Küche
1-2 Stellplätze sind möglich. Eine zusätzliche Garage ist auf Anfrage möglich


Lage

Lagebeschreibung

Nähe Rosengarten
Nähe Bahnhaltepunkt Zweibrücken-Rosengarten
dm, Edeka und Aldi sind fußläufig schnell erreichbar

ohne-makler.net
Anbieter:
Angebot vom Eigentümer

Anbieter kontaktieren