| Kaufpreis | 378.000 € |
|---|---|
| Provision | keine Provision für Käufer |
*** Courtagefrei und Bezugsfertig: Ihr neues Zuhause in St. Lorenz Nord! ***
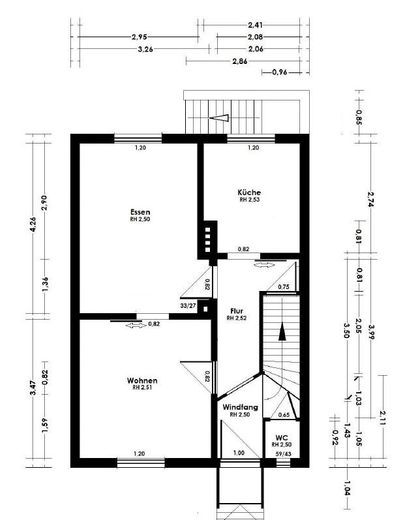
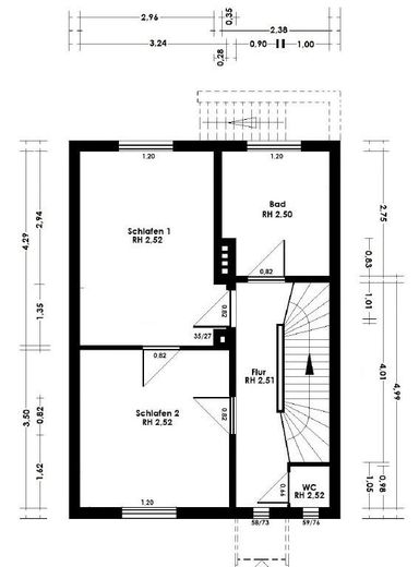
Nach kürzlich erfolgter, umfassender Modernisierung heißt Sie dieses perfekt geschnittene, familienfreundliche Reihenhaus willkommen: Vom Flur gelangen Sie in das helle Wohn-Esszimmer mit Zugang zum sonnigen Südwestgarten. Auch von der Küche haben Sie Ihre Lieben dort bestens im Blick. Über die antike Holztreppe mit Zugang zum Gäste-WC gelangen Sie in zwei gut dimensionierte Schlafzimmer im 1. OG sowie das moderne Duschbad.
Im Dachgeschoss befinden sich zwei weitere Zimmer.
Ein Vollkeller mit Waschküche rundet das Angebot ab.
Freuen Sie sich auf modernen Wohnkomfort in bewährtem Gewand:
- Neue Fenster
- Einblasdämmung von Fassade und Obergeschoss
- Neue Leitungen
- Neue Elektrik
- Neue Wärmepumpe (wird in Kürze eingebaut)
Die Bilder zeigen den echten Zustand aller Räume dieses Schmuckstückes!
*** Erstbezug nach Vollrenovierung und -modernisierung
*** Ruhiger, sonniger Südwestgarten mit großer Terrasse
*** Courtagefreier Verkauf direkt vom Eigentümer!
Der aktuelle Energieausweis nach energetischer Ertüchtigung befindet sich derzeit in Erstellung und wird vsl. eine Energieklasse E ausweisen.
Ihr neues Zuhause befindet sich in einer ruhigen und zugleich hervorragend angebundenen Wohnlage (Westhoffstraße) des beliebten Lübecker Stadtteils St. Lorenz Nord. Von hier erreichen Sie schnell sämtliche Einrichtungen des täglichen Bedarfs, KiTas & Schulen. Zum Bahnhof gelangen Sie mit dem Fahhrad in 5, auf die Altstadtinsel in 7 Minuten.
Die Autobahn ist in weniger als 5 Minuten erreichbar.