Ansicht West
Ansicht Süd
Übersichtsplan
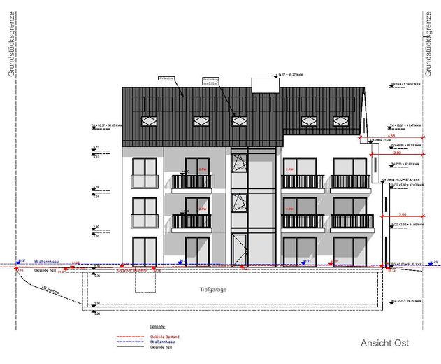
Ansicht Ost
Ansicht Nord

Grundstück mit Bauvoranfrage für Wohnen oder Gewerbe Büro/Praxen in begehrter Siegburger Lage!

Die vollständige Adresse erhalten Sie vom Anbieter
53721 Siegburg – Siegburg
Nordrhein-Westfalen
980.000 €
Kaufpreis
TraumImmo-ID: R4FH7S7
Partner-ID: 410643
Partner-Objekt von: ohne-makler.net
Anbieter:
Privat vom Eigentümer

Anbieter kontaktieren

Information

    • Bezugsfrei ab: sofort

    • Grundstücksfläche: 1024.0

    Kaufpreis & Kosten

    Kaufpreis980.000 €
    Provisionkeine Provision für Käufer

    Über dieses Traum-Wohngrundstück

    Objektbeschreibung

    Das Grundstück ist bereits projektiert und verfügt über eine bereits genehmigte Bauvoranfrage für ein 3 1/2 Geschossiges Gebäude welches es auch eine ungefähre Wohnfläche von 875m² bringt. Das Gebäude kann entweder zum Wohnen, Wohnen und Gewerbe ( Büros/Praxen ) oder reines Gewerbe genutzt werden.

    Für weiteren Informationen melden Sie sich gerne.


    Lage

    Lagebeschreibung

    Das Objekt liegt in einer begehrten Lage von Siegburg. Die Straße befindet sich in einem gepflegten Wohngebiet und bietet eine ausgezeichnete Anbindung an den öffentlichen Nahverkehr sowie an wichtige Verkehrsstraßen. Die Innenstadt von Siegburg ist nur wenige Minuten entfernt und bietet eine Vielzahl von Einkaufsmöglichkeiten, Restaurants und Cafés.

    Für Pendler ist die Lage besonders attraktiv, da der Siegburger Bahnhof in unmittelbarer Nähe liegt und eine gute Verbindung zum Köln-Bonner Raum sowie ins Umland bietet. Die Autobahnen A3 und A560 sind ebenfalls schnell erreichbar, was eine hervorragende Erreichbarkeit der Region garantiert.

    Die Umgebung ist von einer angenehmen Mischung aus Wohn- und Grünflächen geprägt, was eine hohe Lebensqualität und ein angenehmes Wohnumfeld ausmacht. Für Familien gibt es in der Nähe verschiedene Schulen und Kindergärten, und auch Freizeitmöglichkeiten wie Sportvereine und das direkt anliegende Waldgebiet in der Umgebung sorgen für eine gute Balance zwischen städtischer Nähe und Natur.

    ohne-makler.net
    Anbieter:
    Privat vom Eigentümer

    Anbieter kontaktieren