| Kaufpreis | 495.000 € |
|---|---|
| Provision | keine Provision für Käufer |
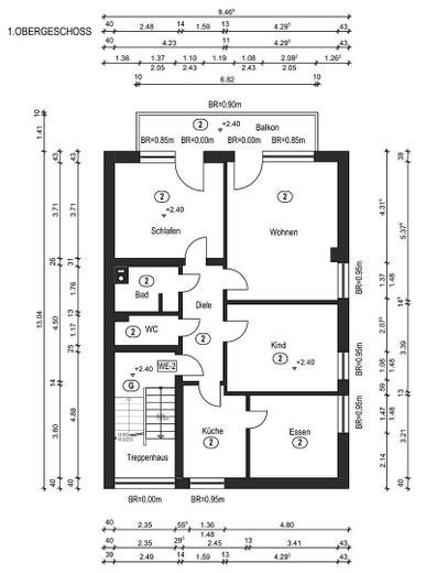
Diese hochwertig sanierte 4-Zimmer-Wohnung befindet sich in einem Mehrfamilienhaus aus dem Baujahr 1970, das 2026 umfassend kernsaniert wurde. Die Wohnung überzeugt durch einen durchdachten Grundriss, zeitgemäße Ausstattung und ein angenehmes Wohnambiente.
Highlights auf einen Blick:
4 Zimmer
2 moderne Bäder
Balkon
Fußbodenheizung in allen Wohnräumen
Hochwertiger Parkettboden
Energetisch saniertes Gebäude
Moderne Haustechnik
Im Rahmen der Sanierung wurden unter anderem die Gebäudehülle energetisch optimiert, Fenster erneuert sowie die Heizungs- und Elektrotechnik modernisiert. Die Kombination aus Fußbodenheizung und Parkett sorgt für ein behagliches Wohnklima und hohen Wohnkomfort.
Ideal geeignet für Familien, Paare oder anspruchsvolle Mieter, die modernes Wohnen in einem vollständig modernisierten Gebäude schätzen.
Die Sanierungsarbeiten am Objekt befinden sich derzeit kurz vor der Fertigstellung. Der geplante Bezugstermin ist der 01.04.2026.
Besichtigungen können bereits vor Abschluss der Arbeiten nach vorheriger Terminvereinbarung durchgeführt werden.
Bei den in der Anzeige verwendeten Bildern handelt es sich um Visualisierungen, die den geplanten Ausstattungsstandard darstellen. Die Wohnungen stehen aktuell leer und sind ab dem 01.04.2026 bezugsbereit.
LA 5 Real Estate GmbH
Speditionstraße 2
40221 Düsseldorf
Deutschland
Registereintrag:
Eingetragen im Handelsregister
Registergericht: Amtsgericht Düsseldorf
Registernummer: HRB 94908
Umsatzsteuer-ID:
Umsatzsteuer-Identifikationsnummer gemäß §27a UStG: DE354786356
Erlaubnis nach § 34c GewO:
Erteilt durch die Landeshauptstadt Düsseldorf
Die Wohnung befindet sich in Düsseldorf-Derendorf, Baumstraße 1 (40468), einem zentral gelegenen und stark nachgefragten Stadtteil im Norden der Landeshauptstadt. Derendorf verbindet urbanes Wohnen mit kurzen Wegen zu Wirtschaft, Messe, Flughafen und Innenstadt.
Die wichtigsten Ziele sind schnell erreichbar:
Flughafen Düsseldorf: ca. 5 km
Messe Düsseldorf: ca. 3 km
Merkur Spiel‑Arena: ca. 3 km
Düsseldorfer Altstadt: ca. 4 km
Königsallee: ca. 4,5 km
Düsseldorf Hauptbahnhof: ca. 3,5 km
Der Stadtteil bietet eine sehr gute Anbindung an den öffentlichen Nahverkehr sowie schnelle Verbindungen zu den Autobahnen A44, A52 und A57. Einkaufsmöglichkeiten, Schulen, Kitas, Ärzte und gastronomische Angebote befinden sich in unmittelbarer Nähe. Grünflächen und Naherholungsgebiete sind ebenfalls schnell erreichbar.