| Kaufpreis | 990.000 € |
|---|---|
| Provision | keine Provision für Käufer |
Provisionsfrei, direkt vom Eigentümer!
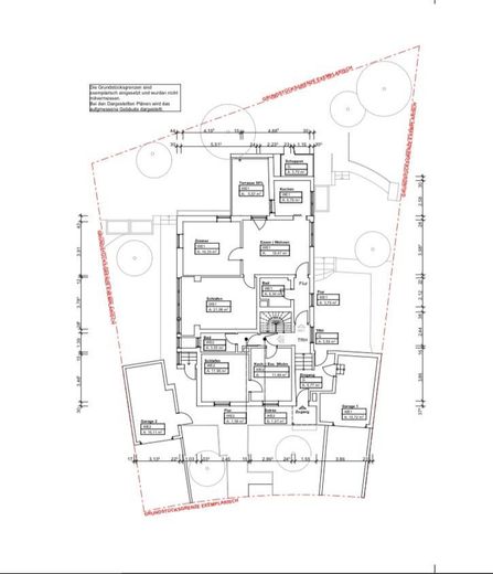
Im naturnahen Westen Münchens, im Stadtteil Aubing‑Süd, liegt dieses große und freistehende Wohnhaus mit 2 Garagen auf einem rund 582 m² großen Grundstück.
Das Haus steht bereits leer steht und ist nicht vermietet. Es verfügt über 2 Wohneinheiten, hat einen Balkon, ist unterkellert, das Dachgeschoss ist teilweise ausgebaut und hat zwei separate Garagen.
Ursprünglich wurde das Haus 1937 in massiver Bauweise errichtet. Es wurde jedoch mehrfach umgebaut und zuletzt 1983 erweitert, sodass es den Eindruck eines Hauses aus den 1980er Jahren vermittelt.
Das Haus kann als großes Einfamilienhaus, Zweifamilienhaus, Dreifamilienhaus oder zur WG-Vermietung genutzt werden.
Die Beheizung erfolgt über eine Öl-Zentralheizung, welche aus dem Jahr 2015 ist.
Dieses Objekt vereint die Ruhe eines gewachsenen Wohngebietes mit einer hervorragenden Anbindung und vielseitigen Entwicklungsmöglichkeiten.
Für einen Besichtigungstermin vereinbaren Sie bitte einen Termin unter +49176‑55981390.
Die Wildenfelser Straße befindet sich in einem gewachsenen Wohngebiet zwischen Freiham und Pasing. Der S‑Bahnhof Neuaubing ist nur etwa 500 Meter entfernt und bietet direkte Verbindungen in die Münchener Innenstadt.
Geschäfte des täglichen Bedarfs, Ärzte und Apotheken befinden sich entlang der Bodensee‑, Limes‑ und Brunhamstraße, weitere Einkaufsmöglichkeiten bietet das Zentrum von Pasing. Schulen und Kindergärten sind in der Nähe, und die Wohngegend ist geprägt von Ein‑ und Zweifamilienhäusern sowie viel Grün. Für Freizeit und Erholung liegen die Waldgebiete Aubinger Lohe und Kreuzlinger Forst nur wenige Minuten entfernt; auch die ausgedehnten Wiesen- und Waldflächen sowie die Langwieder Seenplatte bieten attraktive Ausflugsziele.