Außenansicht
Straßenzug
Luftbild 1
Luftbild 2
Begrünter Innenhof 1
Begrünter Innenhof 3
Begrünter Innenhof 2
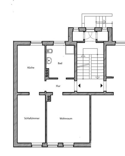
Grundriss

Altbau im Phoenixviertel – frisch renoviertes 2-Zimmer-Zuhause mit grünem Rückzugsort

Eddelbüttel Str. 25
21073 Hamburg – Harburg
Hamburg
700 €
Kaltmiete
50 m²
Wohnfläche
2
Zimmer
TraumImmo-ID: RRVAHA4
Partner-ID: 432125
Partner-Objekt von: ohne-makler.net
Anbieter:
Privat von Michaela Hop

Anbieter kontaktieren

Information

  • Typ: Etagenwohnung
  • Etage: 2
  • Wohnfläche ca.: 50 m²
  • Bezugsfrei ab: 15.03.2026
  • Zimmer: 2
KücheGarten

  • Baujahr: 1890
  • Zustand: FullyRenovated
  • Heizart: CentralHeating
  • Brennart: Gas
  • Stockwerke: 4
  • Badezimmer: 1.0
  • Heizkosten in Nebenkosten enthalten: True

Miete & Nebenkosten

Miete700 €
Nebenkosten250 € inkl. Heizkosten
Heizkosten135 €
Kaution2100€

Über dieses Traum-Apartment

Objektbeschreibung

2-ZIMMER-ALTBAUWOHNUNG – FRISCH RENOVIERT & MIT GRÜNEM INNENHOF

Diese charmante 2-Zimmer-Wohnung im Herzen des beliebten Phoenixviertels befindet sich im 2. Obergeschoss eines gepflegten Altbaus aus dem Jahr 1890.
Das Haus umfasst insgesamt acht Wohneinheiten.

Die ca. 50 m² große Wohnung wird frisch renoviert übergeben und verfügt über eine praktische Einbauküche, die im Mietpreis enthalten ist.

Die Miete setzt sich wie folgt zusammen:
Kaltmiete: 700 €
Betriebskosten: 115 €
Heizkosten: 135 € (inkl. Kaltwasser)
Warmwasser über Strom (vom Mieter selbst zu wählen)

Kaution: 2.100 € (3 monatliche Kaltmieten)


Ausstattung

+ 2-Zimmer, ca. 50 m²
+ Einbauküche inklusive
+ frisch renoviert
+ großer Gemeinschaftsgarten / begrünter Innenhof
+ Altbaucharme aus 1890
+ zentrale Lage mit guter Infrastruktur


Sonstiges

IMPRESSUM

HAFERKAMP GMBH
Strandallee 11
23683 Scharbeutz (Haffkrug)
Telefon: 04563 / 423998-0
Fax: 04563 / 423998-9
E-Mail: info(at)haferkamp-grundbesitz.de

Geschäftsführer: Jens-Hendrik Haferkamp

Amtsgericht Lübeck HRB 23030 HL
Ust-IdNr.: DE304113136

Erlaubnispflichtige Tätigkeit nach § 34c Abs. 1 der Gewerbeordnung

Aufsichtsbehörde:
Gemeinde Scharbeutz (Gewerbeamt) · Am Bürgerhaus 2, 23683 Scharbeutz

Haferkamp Grundbesitz ist eine Geschäftsbezeichnung der Haferkamp GmbH

Inhaltlich Verantwortlicher gemäß § 6 MDStV:
Jens-Hendrik Haferkamp


Lage

Lagebeschreibung

Das Haus liegt zentral im lebendigen Phoenixviertel, das für seine Gründerzeitbauten und seinen nostalgischen Charme bekannt ist.
Die S-Bahnstation Harburg sowie das Naherholungsgebiet Außenmühlenteich sind fußläufig erreichbar.

ohne-makler.net
Anbieter:
Privat von Michaela Hop

Anbieter kontaktieren