Spielplatz auf Wiese
4 Raum mit Balkon
4 Raum
2 Raum
4 Raum
3 Raum

Wohnjuwel in der Brunnenstraße – Ihr neues Zuhause mit Herz & Aussicht

Brunnenstraße 16
04849 Bad Düben – Bad Düben
Sachsen
494 €
Kaltmiete
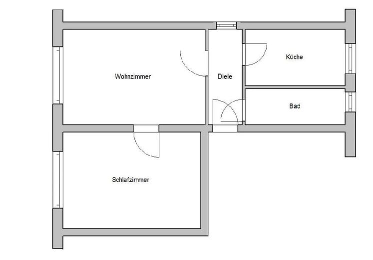
70 m²
Wohnfläche
4
Zimmer
TraumImmo-ID: RWYVTPQ
Partner-ID: 424619
Partner-Objekt von: ohne-makler.net
Anbieter:
Privat vom Eigentümer

Anbieter kontaktieren

Information

  • Typ: Etagenwohnung
  • Wohnfläche ca.: 70 m²
  • Bezugsfrei ab: Nach Vereinbarung
  • Zimmer: 4
Balkon

  • Baujahr: 1980
  • Zustand: FirstTimeUseAfterRefurbishment
  • Heizart: CentralHeating
  • Brennart: Gas
  • Stockwerke: 1
  • Badezimmer: 1.0
  • Heizkosten in Nebenkosten enthalten: True

Miete & Nebenkosten

Miete494 €
Nebenkosten215 € inkl. Heizkosten
Heizkosten140 €
Kaution980€

Über dieses Traum-Apartment

Objektbeschreibung

Erleben Sie entspanntes Wohnen in Bad Düben mit einem Rundum-Sorglos-Paket. Inmitten der Anlage erwartet Sie eine großzügige grüne Mitte, die zusammen mit dem hauseigenen Spielplatz einen perfekten Rückzugsort für Groß und Klein bietet.
​Unsere Vision & Neuheiten ab dem 01.01.2026:
Mit dem Wechsel zur neuen Verwaltung beginnt ein neues Kapitel: Wir werden dieses Areal in den nächsten Jahren zu einem exklusiven Wohn-Ensemble in Bad Düben entwickeln. Unser Ziel ist ein Ort, an dem die Menschen langfristig zufrieden sind und sich rundum wohlfühlen.
​Genießen Sie bereits jetzt erstklassige hauseigene Services: Ein zuverlässiger Hausmeisterdienst, der Winterdienst sowie schnelle, fachgerechte Hilfe bei allen baulichen Anliegen sind garantiert. Zudem legen wir Wert auf Flexibilität – Mietverträge werden bei uns individuell angepasst, um optimal auf Ihre Bedürfnisse einzugehen.
​Ihre Vorteile auf einen Blick:
​Vielfältiges Wohnangebot: Wir bieten attraktive 2-, 3- und 4-Raum-Wohnungen an – ideal für Singles, Paare oder Familien.
​Wahlfreiheit: Entscheiden Sie sich ganz nach Wunsch für eine Wohnung mit oder ohne Balkon.
​Malerischer Ausblick: Genießen Sie die Weite direkt aus Ihrem Fenster.
​Eigene Parkplätze: Bequem direkt vor Ort anmietbar – Schluss mit der Parkplatzsuche.
​Sichere Kellerabteile: Jede Wohnung verfügt über zusätzlichen Stauraum im eigenen Keller.
​Bestens organisiert: Gepflegte Müllplätze und großzügige Flächen zum Wäschetrocknen im Freien.
​Grüne Oase: Viel Platz auf der zentralen Wiese und ein sicherer Spielbereich für Kinder.
​Preisbeispiel:
Unsere großzügigen 4-Raum-Wohnungen (ca. 70,7 m²) erhalten Sie bereits ab einer Kaltmiete von 494,– €.
​Ein Ort, an dem Ordnung auf Idylle trifft und Service großgeschrieben wird. Werden Sie Teil unserer neuen Wohngemeinschaft!


Ausstattung

Modernisierter Standard für Ihren Komfort
​Wir legen Wert auf Qualität und eine solide Basis, damit Sie sich in Ihren vier Wänden von Anfang an wohlfühlen. Jede Wohnung wird in einem gepflegten, teilmodernisierten Zustand übergeben:
​Frische Optik: In den Wohnräumen wurde hochwertiges Laminat neu verlegt, das für ein modernes und gemütliches Ambiente sorgt.
​Küche mit System: Alle notwendigen Anschlüsse sind vorhanden, inklusive installierter Eckventile. Ein klassischer Fliesenspiegel schützt die Wände und ist bereit für Ihre Traumküche.
​Technik auf Stand: Die Elektrik ist fachgerecht vorbereitet – Sie müssen sich keine Sorgen um überlastete Leitungen oder fehlende Anschlüsse machen.
​Details mit Charme: Die Innentüren erhalten einen frischen Lackanstrich, was der Wohnung zusätzliche Helligkeit und Sauberkeit verleiht.
​Wände: Die Wände sind geweißt und können noch individuell Gestaltet werden.


Sonstiges

ImmoNatic GmbH
Georg-Schumann-Str. 294
04159 Leipzig
Geschäftsführer:
Christoph Kaubitzsch
Tobias Richter
Steuer Nr: 232/111/09327


Lage

Lagebeschreibung

Im Herzen von Bad Düben – Alles vor der Haustür
​Die Brunnenstraße besticht durch ihre zentrale Bestlage. Hier wohnen Sie genau in der Mitte von Bad Düben, was Ihnen kurze Wege und eine erstklassige Infrastruktur garantiert:
​Einkaufen & Alltag: In nur wenigen Gehminuten erreichen Sie Supermärkte, Bäckereien und Geschäfte des täglichen Bedarfs.
​Gesundheit & Kur: Die renommierte HELIOS Klinik sowie die weitläufigen Kuranlagen und das HEIDE SPA sind fast in Sichtweite – ideal für Spaziergänge oder zum Entspannen.
​Natur & Freizeit: Die Dübener Heide beginnt praktisch direkt hinter der Anlage. Ob Wandern, Radfahren oder Joggen – die Natur ist Ihr direkter Nachbar.
​Familie: Schulen und Kindergärten befinden sich im direkten Umkreis, was die Wohnlage besonders für Familien attraktiv macht.
​Anbindung: Durch die zentrale Lage sind Sie schnell auf den Bundesstraßen Richtung Leipzig, Bitterfeld oder Torgau.
​Hier wohnen Sie dort, wo andere Urlaub machen – zentral, grün und bestens angebunden.

ohne-makler.net
Anbieter:
Privat vom Eigentümer

Anbieter kontaktieren