Außenansicht
Küche
Ess- Wohnbereich
Büro/ Kinderzimmer
Bad
Schlafzimmer
Gäste- WC
Büro/ Kinderzimmer
Ess- Wohnbereich
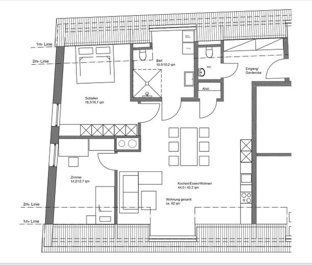
Grundriss

Zentral und barrierefrei: Neuwertige 3 ZKB in Lauingen

Herzog- Georg- Straße 16
89415 Lauingen – Lauingen (Donau)
Bayern
975 €
Kaltmiete
92 m²
Wohnfläche
3,5
Zimmer
TraumImmo-ID: S4S7T27
Partner-ID: 431590
Partner-Objekt von: ohne-makler.net
Anbieter:
Privat vom Eigentümer

Anbieter kontaktieren

Information

  • Typ: Dachgeschosswohnung
  • Wohnfläche ca.: 92 m²
  • Bezugsfrei ab: sofort
  • Zimmer: 3,5
KellerBarrierefreiGäste-WCKüche

  • Baujahr: 2021
  • Zustand: MintCondition
  • Heizart: CentralHeating
  • Brennart: Gas
  • Stockwerke: 3
  • Nutzfläche: 6.0
  • Badezimmer: 1.0
  • Heizkosten in Nebenkosten enthalten: True

Miete & Nebenkosten

Miete975 €
Nebenkosten250 € inkl. Heizkosten
Heizkosten125 €
Kaution2925€

Über dieses Traum-Apartment

Objektbeschreibung

Diese schöne DG-Wohnung wurde barrierefrei ausgebaut und 2021 erstmals bezogen, weshalb sich das Objekt in einem makellosen Zustand befindet. Das Gebäude, in dem sich die Wohnung befindet, wurde ebenfalls komplett saniert.

Zu dem Apartment zählen neben dem großzügigen Koch-/Ess-/Wohnbereich mit neuer, hochwertiger Küche zwei geräumige abgeschlossene Zimmer, ein Badezimmer mit viel Tageslicht inkl. schreinergefertigtem Spiegelschrank und Waschtisch, sowie ein separates Gäste-WC und ein kleiner Abstellraum. Fußbodenheizung in allen Räumen, barrierefreie große Dusche, Waschmaschine und Trockner im Badezimmer möglich, zentrale Wohnraumlüftung;

Die Wohnung ist über einen modernen Fahrstuhl bequem zu erreichen. Außerdem überzeugt der großzügige, auch für gehbehinderte Bewohner bestens geeignete Schnitt. Ihnen steht außerdem ein großer Kellerraum als zusätzlicher Stauraum zur Verfügung.

Genießen Sie die zentrale Lage mit tollem und interessantem Ausblick. Alle Geschäfte und Dienstleistungen der Innenstadt sind fußläufig zu erreichen.


Ausstattung

Eine große, hochwertige Einbauküche und schreinergefertigte Badmöbel sind in der Kaltmiete enthalten.


Sonstiges

Geeignet für ältere, ggf. gehbehinderte Einzelpersonen oder Paare, aber auch für junge Paare mit max. 1 Kind (insgesamt max. 3 Personen);
- Weitestgehend für Rollstuhl geeignet;
- Mieter mit eigenem Einkommen werden bevorzugt (kein Jobcenter!)
- Parken mit für Mieter erhältlichem Anwohnerparkplatz problemlos vor der Tür


Lage

Lagebeschreibung

Absolut zentral und trotzdem ruhig, an bester Stelle für einen unterhaltsamen Ausblick den ganzen Tag.

ohne-makler.net
Anbieter:
Privat vom Eigentümer

Anbieter kontaktieren