2OG
1OG
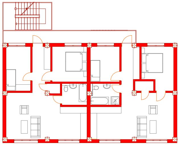
EG

✅20% bereits verkauft✅NEUBAU Zw. 33m² - 64m² WOHNUNGEN✅VOM EIGENTÜMER

Die vollständige Adresse erhalten Sie vom Anbieter
16833 Fehrbellin – Fehrbellin
Brandenburg
97.911 €
Kaufpreis
33 m²
Wohnfläche
3
Zimmer
TraumImmo-ID: S78RKFZ
Partner-ID: 419879
Partner-Objekt von: ohne-makler.net
Anbieter:
Privat von Alexander Vainstein

Anbieter kontaktieren

Information

  • Typ: Etagenwohnung
  • Etage: 1
  • Wohnfläche ca.: 33 m²
  • Bezugsfrei ab: Nach Vereinbarung
  • Zimmer: 3

  • Baujahr: 2025
  • Zustand: FirstTimeUse
  • Heizart: FloorHeating
  • Stockwerke: 3
  • Nutzfläche: 1.0
  • Badezimmer: 1.0

Kaufpreis & Kosten

Kaufpreis97.911 €
Provisionkeine Provision für Käufer

Über dieses Traum-Apartment

Objektbeschreibung

In unserem modernen Neubauensemble stehen insgesamt 7 Wohneinheiten zum Verkauf, mit Wohnflächen von ca. 33 m² bis 64 m². Die Wohnungen überzeugen durch durchdachte Grundrisse und eine hochwertige Ausführung. Deckenhöhen von bis zu 3,60 m schaffen ein großzügiges, luftiges Wohngefühl.

Eine der Einheiten verfügt über eine eigene Terrasse. Bodentiefe Fenster mit 3-fach-Verglasung sorgen für helle Räume, optimale Energieeffizienz und zugleich für Privatsphäre dank integrierter Spiegel- bzw. Verdunkelungselemente. Die gehobene Ausstattung bietet eine hochwertige Basis und lässt Raum für individuelle Gestaltungsmöglichkeiten.


Sonstiges

Zusätzlich stehen in diesem Neubau weitere Wohneinheiten in unterschiedlichen Größen zum Verkauf. Bei Interesse stellen wir Ihnen gerne eine Übersicht der verfügbaren Einheiten zur Verfügung und beraten Sie persönlich zu den verschiedenen Optionen.


Lage

Lagebeschreibung

Fehrbellin, gelegen im gleichnamigen Ortsteil, bietet eine ruhige und dennoch gut angebundene Wohnlage. Die Infrastruktur umfasst die notwendigen Einkaufsmöglichkeiten für den täglichen Bedarf sowie ärztliche Versorgung. Die Anbindung an das überregionale Verkehrsnetz ist gut, was Pendler schätzen werden. Zahlreiche Grünflächen und die umliegende Natur laden zu Freizeitaktivitäten im Freien ein.

ohne-makler.net
Anbieter:
Privat von Alexander Vainstein

Anbieter kontaktieren